Kurzbeschreibung
Aufsehen erregende Büros
Objekt
Vom ehemaligen internationalen Flughafen zum gefragten Messe- und Geschäftsstandort: Riem hat den Sprung mit moderner Architektur und einem gelungenen Branchenmix geschafft. Belebt wird der Standort durch ein großes Einkaufszentrum mit Plaza, einem Hotel und vielen Messebesuchern. Die attraktiven Büros erreicht man über individuell gestaltete Eingangsbereiche. Die Büros werden nach Mieterwunsch gestaltet und ausgebaut, von Großraumlösungen bis zu Einzelbüros ist hier alles möglich.
Merkmale
Bezug: nach Vereinbarung
Barrierefrei
Personenaufzug
Einbauküche
Keller
Raumaufteilung flexibel
- Bodenbelag nach Mietwunsch - arbeitsplatzgerechte Beleuchtung - Teeküche nach Absprache - Hohlraumböden für die IT-Verkabelung - Personenlift in jedem Eingangsbereich - schöne Raumhöhe - außen liegender Sonnenschutz
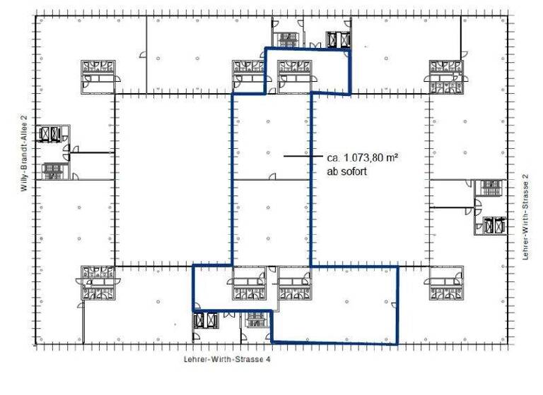
Grundrisse
Grundrisse
1 / 1
Realisiere Dein Projekt
Bausubstanz und Energie
Energieausweis
Endenergiebedarf (Wärme)
Endenergiebedarf (Strom)
Baujahr2003
Zustand der Immobilieneuwertig
HeizungsartZentralheizung
EnergieträgerFernwärme
Mietkosten
Monatliche Miete
19,50 €/m²
Nebenkosten
3,20 €
Provision für Mieter
provisionsfrei
Kaution
keine Angabe
Lage
Trudering-Riem, München (81825)
Der Anbieter hat die genaue Adresse nicht freigegeben
- am neuen Standort Riem, an der A 94 und Wasserburger Landstraße - U-Bahn Messestadt West - ca. 2 Gehminuten bis zum Einkaufszentrum Riemarcaden mit zahlreichen Geschäften - Restaurants, Cafés und viele Snackbars befinden sich ebenfalls in den Riem Arcaden
Weitere Informationen
Sonstiges
- Stellplätze können in der großen Tiefgarage angemietet werden (à € 100,00 bis € 116,80 zzgl. ges. MwSt.) - Elektro-Ladesäule für alle Kurz- und Dauerparker frei zugänglich - Lagerflächen (à € 10,00/m² zzgl. ges. MwSt.) - Gewerbesteuerhebesatz 490% - die dargestellten Impressionen zeigen Ausbaubeispiele aus dem Gebäude - ein Energiebedarfsausweis (gültig bis 11. Dezember 2029) liegt vor, der Endenergiebedarf für Wärme beträgt 85,6 kWh/(m²*a) und für Strom 48,8 kWh/(m²*a), wesentlicher Energieträger für die Heizung des Gebäudes ist Fernwärme
Stichworte
Gesamtfläche: 1.074,00 m²