Version: 8.24.0Navigation überspringen
1.857 €
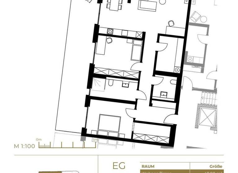
3,5 Zimmer  •  132,6 m²  •  EG  •  frei ab 01.08.2026
Immowelt logo

Wohnung zur Miete - Erstbezug
1.857 €
3,5 Zimmer  •  132,6 m²  •  EG  •  frei ab 01.08.2026

Moderne Wohnung mit exquisiter Ausstattung in Sehnde - Exklusives Wohnen im Grünen!

Das QUIN ist modern, komfortabel und nachhaltig konzipiert! Hier decken erneuerbare Energien mehr als 50 % des Energiebedarfes.
Die Vorteile einer Wohnung im QUIN sind:

- barrierefreier Zugang zu allen Etagen und der Tiefgarage über einen Aufzug
- großzügig geschnittene Wohnungen zwischen 60 und 133 m²
- alle Wohnungen mit Loggia, Terrasse oder Dachterrasse (Penthouse)
- Energieeffizienz KfW 40 NH nach neuestem Standard mit Nachhaltigkeitszertifikat
- zentrale Wärmeversorgung durch Luftwärmepumpe
- Photovoltaikanlagen erzeugen den Allgemeinstrom
- Fußbodenheizung mit eigenen Heizkreisen in allen Wohnräumen
- Tiefgarage mit Pkw- und Motorrad-Stellplätzen
- Fahrradstellplätze im Innen- und Außenbereich

Fertigstellung vom QUIN in 2026

Merkmale

  • frei ab 01.08.2026
  • Erdgeschoss
  • Einbauküche
  • Personenaufzug
  • 2 Stellplätze: 2 Tiefgaragenstellplätze
  • Gäste-WC
  • Balkon

Grundrisse

Grundrisse
1 / 1

Realisiere Dein Projekt

Bausubstanz und Energie

Der Anbieter hat keine Informationen zum Energieverbrauch bereit gestellt.
  • Zustand der ImmobilieErstbezug
  • HeizungsartFußbodenheizung
  • EnergieträgerLuft-/Wasser-Wärmepumpe
Immowelt logo

Mietkosten

Warmmiete
2.281,24 €
Kaltmiete
14 €/m²
1.856,82 €
Nebenkosten
424,42 €
Heizkosten
in Warmmiete enthalten
Zusätzliche Kosten
Miete pro Stellplatz
75 €
Kaution
3 MKM
Weitere Preisinformationen
2 Tiefgaragenstellplätze, Miete je: 75,00 EUR

Lage

address-icon
Sehnde (31319)
Der Anbieter hat die genaue Adresse nicht freigegeben
S = Stadt: Sehnde hat mehr als 25.000 Einwohner. Was nach städtischem Gewusel klingt, ist die Ruhe selbst. Sehndes Vorzüge verteilen sich auf 15 Ortsteile. Der ländliche Charme der Stadt wird durch das QUIN elegant ergänzt.
E = Erlebnis: In Sehnde und seinen Ortsteilen gibt es viel zu erleben. Sehnde ist eine attraktive Familienstadt. Der Bedarf nach modernem Wohnraum steigt. Die Lust am Leben im Windschatten der Großstadt Hannover wächst.
H = Hinkommen: "Ganz nah draußen" - Der Slogan, der für Sehnde wirbt, ist ein Volltreffer! Soll Hannover als Metropole ruhig pulsieren. 20 km weiter geben Sehnde und das QUIN den Vorteilen von Stadt und Land eine schöne Heimat.
N = Nahverkehr: Ob mit dem Bus, der S-Bahn oder dem Regional Express, ab und nach Sehnde gibt es viele Möglichkeiten. Der Anschluss an den öffentlichen Nahverkehr ist vorbildlich - in der Hauptverkehrszeit per Bus sogar im 15-Minuten-Takt.
D = Du: Nimm einfach Dein Fahrrad und radele am Ufer des Mittellandkanals oder zum idyllischen Waldbad von Sehnde. Oder zum Straßenbahnmuseum im Ortsteil Wehmingen. Du wirst schnell merken: Sehnde verwöhnt dich mit Naherholungsmöglichkeiten für etwas Me-Time!
E = Einkaufen: Im Verwaltungsdeutsch ist Sehnde ein "Grundzentrum". In Wirklichkeit ist Sehnde eine Stadt voller Möglichkeiten. Mit einer lebendigen Restaurantauswahl, vielfältigen Einkaufsmöglichkeiten, Ruhe und Gelassenheit.

Weitere Informationen

Sonstiges Alle Anfragen werden automatisch beantwortet, schauen Sie deshalb bitte auch in Ihrem Spam-Ordner nach. Energiepass Energieausweis wird bei Besichtigung vorgelegt. Stichworte Tiefgarage vorhanden, Anzahl der Schlafzimmer: 2, Anzahl der Badezimmer: 2, Anzahl Balkone: 1, Bundesland: Niedersachsen, 4 Etagen

Weitere Services

Lust auf eine Besichtigung?
Eine Frage zur Immobilie?
Nachricht hinzufügen
Mit der Nutzung der oben angegebenen Telefonnummer oder durch Klicken auf „Kontaktieren“ akzeptierst Du die Allgemeinen Nutzungsbedingungen, denen Du jederzeit widersprechen kannst. Weitere Informationen zum Datenschutz

Über den Anbieter

ImmoBest GmbH
ImmoBest GmbHMaklerbüro
Mittelstraße 4, 31319 Sehnde
partner badge
Partnerschaft
Frau Denise Roth
Frau Denise RothDein Kontakt
Online-ID: 2nlq25k
Referenznummer: 793/Haus4/WE49(03)
ImmoBest GmbH
title
ImmoBest GmbH
Bewertung: 4,9 von 5 Sternen
Nachricht hinzufügen
Mit der Nutzung der oben angegebenen Telefonnummer oder durch Klicken auf „Kontaktieren“ akzeptierst Du die Allgemeinen Nutzungsbedingungen, denen Du jederzeit widersprechen kannst. Weitere Informationen zum Datenschutz
Wie zufrieden bist du mit dieser Seite (nicht mit der Immobilie selbst)?