Version: 8.26.0Navigation überspringen
RE/MAX Professionals Esslingen
330.000 €
125,4 m² Bürofläche

Praxisfläche zum Kauf - Erstbezug
330000 €
125,4 m² Bürofläche

JETZT REDUZIERT! Top-Gewerbeeinheit am Marktplatz - Lage, die überzeugt

Diese moderne Gastronomieimmobilie, erbaut im Jahr 2024, bietet eine hervorragende Gelegenheit für Investoren und Betreiber. Mit der Energieeffizienzklasse A+ ist das Objekt nicht nur umweltfreundlich, sondern auch besonders kosteneffizient im Betrieb.
Beim Betreten erwartet Sie ein einladender Eingangsbereich, der direkt zu den großzügigen Gewerbeflächen führt. Diese bieten viel Platz für ein individuelles Gastronomiekonzept - ideal etwa für ein Restaurant oder Café.
Das Objekt befindet sich direkt am Marktplatz im Ortszentrum von Beinstein, einer lebendigen und stark frequentierten Lage, die ideale Voraussetzungen für Gastronomie bietet.
Die Immobilie lässt sich flexibel nach Ihren eigenen Vorstellungen gestalten. Zusätzlich steht Ihnen ein großzügiger Keller- und Lagerbereich im Untergeschoss zur Verfügung, der vielfältige Nutzungsmöglichkeiten eröffnet.
Ein besonderes Highlight ist die Möglichkeit einer Außenbewirtung, die zusätzlichen Raum für Gäste schafft und den Standort im Herzen des Ortes noch attraktiver macht.
Darüber hinaus wurden alle relevanten Brandschutzvorschriften erfüllt - inklusive moderner Brandschutztüren - sodass ein reibungsloser und sicherer Betrieb gewährleistet ist. Zwei moderne WC-Bereiche, darunter ein barrierefreies WC, stellen höchsten Komfort für Ihre Gäste sicher.
Zum Objekt gehört zudem ein praktischer Außenstellplatz, der den Komfort sowohl für Betreiber als auch für Gäste zusätzlich erhöht.
Zum Kaufpreis von 349.000 € erwerben Sie eine exklusive Gastronomieimmobilie in zentraler Lage - eine ausgezeichnete Investition mit großem Potenzial.

Merkmale

  • frei ab sofort
  • Personenaufzug
  • Gäste-WC
  • Außen-Stellplatz
  • Waschraum
- Neubau aus dem Jahr 2024
- Energieeffizienzklasse A+
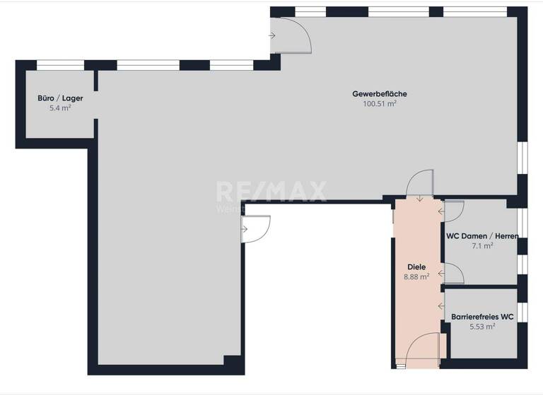
- Gewerbefläche von 100,51 m²
- Büro/Lager mit 5,4 m²
- Damen/Herren WC mit 7,1 m²
- Barrierefreies WC mit 5,53 m²
- Diele mit 8,88 m²
- Aufzug im Treppenhaus
- separater Raum für Mülltonnen
- Waschraum mit Anschlüssen für Waschmaschinen
- Keller- und Abstellräume für zusätzlichen Stauraum
- Moderne Anschlüsse und Sicherungskasten

Grundrisse

Grundrisse
1 / 1

Bausubstanz und Energie

Energieausweis

Endenergiebedarf (Wärme)

  • Baujahr2024
  • Zustand der ImmobilieErstbezug
  • HeizungsartFußbodenheizung
  • EnergieträgerGas

Preisdetails

Kaufpreis
330000 €
Hausgeld
380 €
Provision für Käufer
4,76% inkl. gestzl. MwSt. vom notariellen Kaufpreis
Weitere Preisinformationen
1 Stellplatz
Geschätzte Gesamtkosten
345.708 €1
Kaufpreis
330.000 €
Provision für Käufer (4,76%)
15.708 €
1Der angezeigte Wert ist eine automatisch berechnete Schätzung von immowelt.
2Bei den Angaben handelt es sich um ortsübliche Werte. Individuelle Kosten können abweichen.

Lage

address-icon
BeinsteinWaiblingen-Beinstein (71334)
Der Anbieter hat die genaue Adresse nicht freigegeben
Das Gastronomieobjekt befindet sich direkt am Marktplatz von Waiblingen-Beinstein und damit in einer äußerst attraktiven und zentralen Lage. Die lebendige Umgebung ist von hoher Frequenz geprägt und bietet zahlreiche Annehmlichkeiten direkt vor der Tür. Ein Supermarkt sowie verschiedene Geschäfte des täglichen Bedarfs liegen in unmittelbarer Nähe und sorgen für eine stetige Laufkundschaft.

Beinstein ist ideal zwischen Weinstadt-Endersbach, Waiblingen und Korb gelegen, wodurch ein großes Einzugsgebiet abgedeckt wird. Die Anbindung an den öffentlichen Nahverkehr ist hervorragend: Eine Bushaltestelle befindet sich nur wenige Schritte entfernt und gewährleistet eine schnelle Verbindung ins Stadtzentrum sowie in die umliegenden Gemeinden. Auch die Autobahn ist in ca. 10 Minuten erreichbar, und der Flughafen Stuttgart liegt nur etwa 30 Minuten entfernt.
Die Infrastruktur rund um das Objekt bietet ideale Voraussetzungen für ein erfolgreiches Gastronomiekonzept.

Ob Familien, Pendler oder Reisende - die Mischung aus Wohnen, Einkaufen und Freizeitaktivitäten in der direkten Umgebung sorgt für ein hohes Besucherpotenzial. Die zentrale Marktplatzlage macht dieses Objekt zu einem attraktiven Treffpunkt für Gäste aus Beinstein und der gesamten Region.

Weitere Informationen

Sonstiges Rechtshinweis:
Da wir Objekte nicht selbst ermitteln, übernehmen wir hierfür keine Gewähr.

Sämtliche Angaben in diesem Exposé basieren auf Informationen, die uns vom Eigentümer/Vermieter genannt wurden. Wir bemühen uns, möglichst vollständige und richtige Angaben zu erhalten und weiterzuleiten. Eine Haftung für Richtigkeit und Vollständigkeit können wir jedoch nicht übernehmen. Stichworte Fahrradraum, Gesamtfläche: 125,40 m², Anzahl der separaten WCs: 3, Bundesland: Baden-Württemberg, 3 Etagen, Distanz zum Kindergarten: 0.50, Distanz zur Grundschule: 0.30

Weitere Services

Lust auf eine Besichtigung?
Eine Frage zur Immobilie?
Nachricht hinzufügen
Mit der Nutzung der oben angegebenen Telefonnummer oder durch Klicken auf „Kontaktieren“ akzeptierst Du die Allgemeinen Nutzungsbedingungen, denen Du jederzeit widersprechen kannst. Weitere Informationen zum Datenschutz

Über den Anbieter

Heugasse 1, 73728 Esslingen am Neckar
partner badge
Partnerschaft
Herr Engin Karakas
Herr Engin KarakasDein Kontakt
Online-ID: 256IGWJKZ9RT
Referenznummer: 1026-22-EKA-RS-BD-02
Wie zufrieden bist du mit dieser Seite (nicht mit der Immobilie selbst)?