Version: 8.25.1Navigation überspringen
1.343 €
5 Zimmer  •  206 m² Bürofläche
Immowelt logo

Büro zur Miete
1.343 €
5 Zimmer  •  206 m² Bürofläche

Knittelfeld: vielseitige Bürofläche -Ideal für Praxis, Beratung oder Schulung - 206 m2 in zentraler Lage

EXPOSÉ - GESCHÄFTSFLÄCHE IN DER BAHNSTRASSE 4, 8720 KNITTELFELD

Zur Vermietung steht eine großzügige und vielseitig nutzbare Geschäftsfläche in zentraler Lage von Knittelfeld, Bahnstraße 4. Die Immobilie befindet sich im 1. Obergeschoss eines gepflegten Gebäudes und und ist zentral gelegen.

Die Gesamtfläche von 206 m² eignet sich ideal als Büro-, Praxis- oder Schulungsfläche und überzeugt durch ihren sehr guten Zustand sowie helle, freundliche Räume.

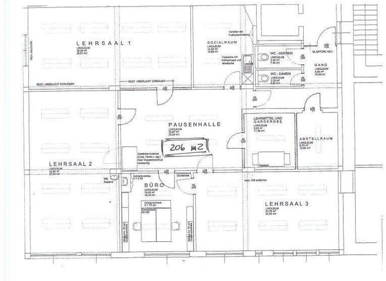
RAUMAUFTEILUNG IM ÜBERBLICK

3 großzügige Seminarräume mit 39,06 m², 42,90 m² und 32,76 m²
1 Büro mit 16,45 m²
1 Küche mit 14,58 m², ausgestattet mit einer kleinen Teeküche
1 Pausenhalle bzw Warteraum mit 29,67 m²
1 Garderobe mit 8,25 m²
1 Abstellraum mit 6,75 m²
2 getrennte WC-Anlagen

FLEXIBLE NUTZUNGSMÖGLICHKEITEN

Die drei großzügigen Seminarräume bieten maximale Flexibilität und können individuell genutzt werden als Lehrsaal oder Schulungsraum, Konferenz- oder Besprechungsraum, Wartebereich, Einzel- oder Mehrpersonenbüro, Praxisräume sowie Coaching- oder Therapieräume.

Dank der durchdachten Raumstruktur lassen sich unterschiedliche Nutzungskonzepte problemlos umsetzen. Die helle Pausenhalle schafft einen angenehmen Aufenthaltsbereich für Mitarbeiter oder Kunden. Die vorhandene Küche bietet zusätzlichen Komfort im Arbeitsalltag.

- eine Anmietung eines Tiefgaragenplatzes ist möglich. Hier gibt es einen praktischen Zugang via Lift!

GEEIGNETE BRANCHEN - BEISPIELE

Diese Geschäftsfläche eignet sich unter anderem für Bildungsinstitute oder Schulungszentren, Arzt- oder Gemeinschaftspraxen, Therapiezentren, Unternehmens- oder Steuerberatungen, Rechtsanwaltskanzleien, Versicherungs- oder Immobilienbüros, IT- oder Kreativunternehmen, Co-Working-Konzepte sowie Kosmetik- und Gesundheitsdienstleister.

Die Kombination aus zentraler Lage, großzügiger Fläche und flexibler Raumaufteilung macht diese Immobilie zu einer idealen Lösung für verschiedenste Geschäftsmodelle.

Der Vermittler ist als Doppelmakler tätig.

Infrastruktur / Entfernungen

Gesundheit
Arzt <250m
Apotheke <250m
Krankenhaus <1.000m

Kinder & Schulen
Schule <500m
Kindergarten <500m

Nahversorgung
Supermarkt <250m
Bäckerei <250m
Einkaufszentrum <6.500m

Sonstige
Bank <250m
Geldautomat <250m
Post <500m
Polizei <500m

Verkehr
Bus <250m
Autobahnanschluss <1.750m
Bahnhof <750m
Flughafen <6.750m

Angaben Entfernung Luftlinie / Quelle: OpenStreetMap

Merkmale

  • Bezug: ab sofort
  • 1. Geschoss
  • Teeküche
  • Bodenbelag: Fliesen, Linoleum

Grundrisse

Grundrisse
1 / 1

Realisiere Dein Projekt

Bausubstanz und Energie

Möchtest du Details zum Energieverbrauch?info_energy_calculation-icon
  • EnergieträgerFernwärme
Immowelt logo

Mietkosten

Nettokaltmiete
1.343,12 €
Betriebskosten
671,56 €
Provision für Mieter
3 Bruttomonatsmieten zzgl. 20% USt.
Kaution
keine Angabe
Weitere Preisinformationen
Nettokaltmiete: 1.343,12 EUR

Lage

address-icon
BahnstraßeKnittelfeld (8720)

Weitere Informationen

Stichworte Anzahl der separaten WCs: 2, Bundesland: Steiermark

Weitere Services

Lust auf eine Besichtigung?
Eine Frage zur Immobilie?
Nachricht hinzufügen
Mit der Nutzung der oben angegebenen Telefonnummer oder durch Klicken auf „Kontaktieren“ akzeptierst Du die Allgemeinen Nutzungsbedingungen, denen Du jederzeit widersprechen kannst. Weitere Informationen zum Datenschutz

Über den Anbieter

Hauptplatz 14, 8720 KNITTELFELD
partner badge
Partnerschaft
Rene LiebmingerDein Kontakt
Online-ID: 26RHIPBX63M6
Referenznummer: OBGC2026030313465859835389a386a
ITL | Immo Treuhand Liebminger
ITL | Immo Treuhand Liebminger
Nachricht hinzufügen
Mit der Nutzung der oben angegebenen Telefonnummer oder durch Klicken auf „Kontaktieren“ akzeptierst Du die Allgemeinen Nutzungsbedingungen, denen Du jederzeit widersprechen kannst. Weitere Informationen zum Datenschutz
Wie zufrieden bist du mit dieser Seite (nicht mit der Immobilie selbst)?