RABL IMMOBILIEN CONCEPT UG (haftungsbeschränkt)

Frau Anya Nada Rabl

ERSTBEZUG Jan2026 - Neue AfA und geringe Energiekosten durch Nahwärme Reihenmittelhaus

€ 899.000
Kaufpreis
146 m²
Wohnfläche ca.
5
Zimmer
117 m²
Grundstücksfl. ca.

Der Anbieter dieses Objekts hat gegenüber der AVIV Germany GmbH als Betreiber dieses Online-Marktplatzes erklärt, nicht als Unternehmer im Sinne des § 1 KSchG zu handeln. Die im Verbraucherschutzrecht der Union verankerten Verbraucherrechte (insbesondere Informationspflichten und Rücktritts- bzw. Widerrufsrechte) finden auf den Vertrag zwischen dem Anbieter des Objekts und Ihnen (dem Interessenten) keine Anwendung.

Provisionsfrei
Gewerblicher Anbieter

Der Anbieter dieses Objekts hat gegenüber der AVIV Germany GmbH als Betreiber dieses Online-Marktplatzes erklärt, als Unternehmer im Sinne des § 1 KSchG zu handeln.

AdresseStraße nicht freigegeben
82276 Adelshofen 
Auf Karte ansehen

Preise & Kosten

Kaufpreis € 899.000 2 Stellplätze, je € 10.000

Provision für Käufer

provisionsfrei

Lage

Die Gemeinde Adelshofen im oberbayerischen Landkreis Fürstenfeldbruck ist Mitglied der Verwaltungsgemeinschaft Mammendorf. Der Ort liegt circa 35 Kilometer westlich von München. Die Fläche beträgt in etwa 14 km². Die drei Gemeindeteile sind die Kirchdörfer Adelshofen, Luttenwang und Nassenhausen. Es gibt
die Gemarkungen...

Mehr anzeigen

Das Haus

Kategorie

Reihenmittelhaus

Geschosse

2 Geschosse

Baujahr

2025

Bezug

01.02.2026

  • Zustand: Erstbezug, Neubau
  • nicht unterkellert
  • Terrasse, Garten
  • 2 Stellplätze: Garage, Außen-Stellplatz
  • Bad mit Fenster, Wanne und Dusche, Gäste-WC, Bad/WC getrennt
  • Böden: Parkett

Energie & Heizung

A+
A
B
C
D
E
F
G
H
0 25 50 75 100 125 150 175 200 225 250 +

Energieausweistyp

Bedarfsausweis

Gebäudetyp

Wohngebäude

Baujahr laut Energieausweis

2022

Wesentliche Energieträger

Fernwärme

Effizienzklasse

A

Endenergiebedarf

33,37 kWh/(m²·a)

Weitere Energiedaten

Haustyp

Massivhaus

Energieträger

Fernwärme

Heizungsart

Fußbodenheizung, Zentralheizung

Details

Objektbeschreibung

Wir präsentieren einen exklusiven Neubau von 6 Reihenhäusern, aufgeteilt zu je 2 Dreispännern mit moderner Ausstattung. Das Objekt befindet sich gerade in der Fertigstellung, Bezugstermin ist der 01.02.2026. Die in Ziegelbauwiese errichteten Häuser werden an das Fernwärmenetz angeschlossen, bei dem hier angebotenen Objekt...

Mehr anzeigen

Ausstattung

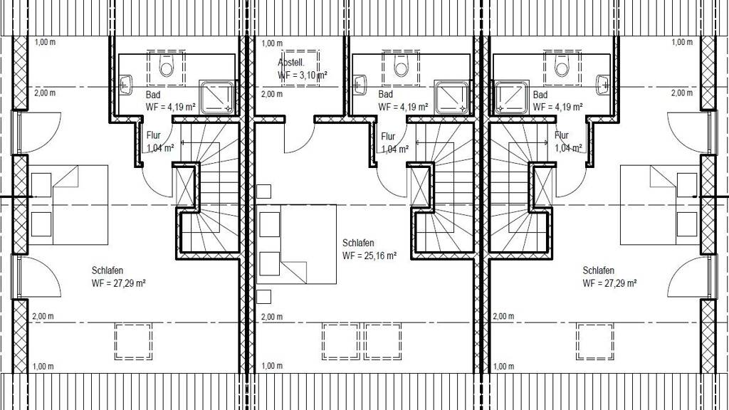
Eckdaten Reihenmittelhaus Nr.5

- 5- Zimmer
- 2- Badezimmer
- 1- Gäste WC
- großzügiger Wohn-und Essbereich mit offener Küche
- Terrasse mit Süd-West Garten
- Fußbodenheizung
- Moderne und zeitlose Ausstattung
- 3-fach Verglasung Fenster mit Rollos
- Endenergiebedarf 33,37 kWh/(m2a)
-...

Mehr anzeigen

Weitere Informationen

Besichtigungstermine
Für Besichtigungstermine oder weitere Informationen zu diesem exklusiven Objekt schreiben Sie uns oder rufen uns unter 089/2379-3491 gerne an.

Anbieter der Immobilie

Partner
user

Frau Anya Nada Rabl

Dein Ansprechpartner

Anbieter-Website Anbieter-Profil Anbieter-Impressum

Online-ID: 2dz6p5x

Finde Angebote wie dieses

imageimageimage

Hier geht es zu unserem Impressum, den Allgemeinen Geschäftsbedingungen, den Hinweisen zum Datenschutz und nutzungsbasierter Online-Werbung.