

Einfamilienhaus zum Kauf425000 €3.080 €/m²5 Zimmer • 138 m² • 155 m² Grundstück • frei ab 01.07.2026
425000 €
3.080 €/m²
5 Zimmer • 138 m² • 155 m² Grundstück • frei ab 01.07.2026
Freistehendes Haus am grünen Park
Merkmale
- frei ab 01.07.2026
- 155 m² Grundstück
- Einbauküche
- Kein Keller
- 2 WCs, Gäste-WC
- Kein Balkon
- Terrasse
- Glasfaser-Anschluss
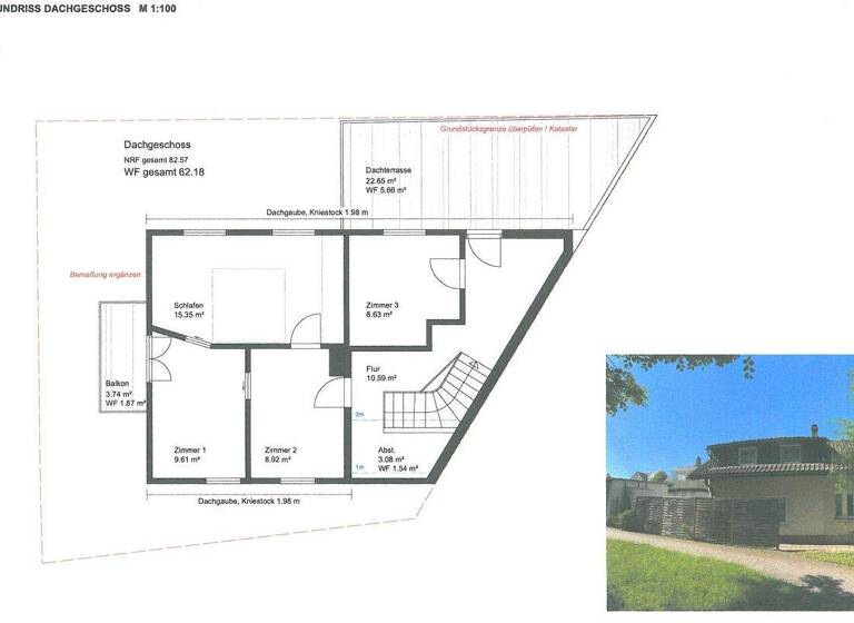
Grundrisse
Grundrisse
1 / 2
Realisiere Dein Projekt
Bausubstanz und Energie
Energieausweis
F
- Baujahr1900
- Letzte Modernisierung2023
- Zustand der ImmobilieModernisiert
- HeizungsartZentralheizung: Heizkörper, Fußbodenheizung
- EnergieträgerGas
Preisdetails
Kaufpreis
425000 €
3.079,71 €/m²
Hausgeld
300 €
Provision für Käufer
3,57% inkl. 19% MwSt.
Geschätzte Gesamtkosten
469.922 €1
Kaufpreis
425.000 €
Kaufnebenkosten
44.922 €
2Notarkosten (1,5%)
6.375 €
Grunderwerbsteuer (5%)
21.250 €
Provision für Käufer (3,57%)
15.172 €
Grundbucheintrag (0,5%)
2.125 €
1Der angezeigte Wert ist eine automatisch berechnete Schätzung von immowelt.
2Bei den Angaben handelt es sich um ortsübliche Werte. Individuelle Kosten können abweichen.
Lage

Kißlegg (88353)
Der Anbieter hat die genaue Adresse nicht freigegeben
Weitere Services
Lust auf eine Besichtigung?
Eine Frage zur Immobilie?
Über den Anbieter
An der Stadtmauer 11, 87435 Kempten
Partnerschaft
Herr Kayhan AkbulutDein Kontakt
Online-ID: 25I2WPCTB77S
Referenznummer: 5161 71

ak immocenter
Wie zufrieden bist du mit dieser Seite (nicht mit der Immobilie selbst)?

