Die angebotene Lagerfläche umfasst rund 217 m² und befindet sich vollständig im Erdgeschoss. Die Fläche ist funktional geschnitten und eignet sich für typische Lager- und Abstellzwecke ohne hohen logistischen Aufwand.
Der Zugang erfolgt über ein Rolltor sowie einen weiteren separaten Eingang. Die Anlieferung ist damit unkompliziert möglich. Die Lagerfläche verfügt zudem über eigene Sanitäranlagen, die direkt von der Fläche aus erreichbar sind.
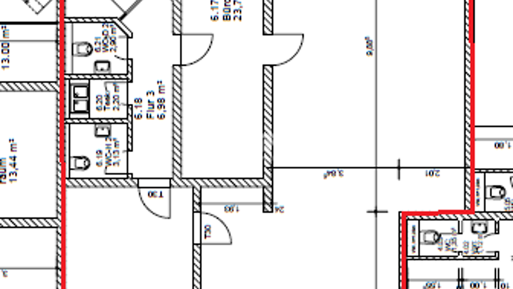
Die Aufteilung ist übersichtlich und ermöglicht eine flexible Nutzung je nach betrieblichen Anforderungen.
Optional können zusätzlich rund 260 m² Büroflächen im selben Gebäude angemietet werden.
Energieausweis vorhanden: ja Primärenergieverbrauch des Gebäudes: 302 kWh(m²-a) Endenergieverbrauch Wärme: 229,60 kWh(m²-a) Endenergieverbrauch Strom: 27,40 kWh(m²-a) Energieträger: Erdgas Ausstelldatum: 07.01.2026 Art des Energieausweises: Verbrauch Baujahr technische Anlage: 2023
Merkmale
frei ab sofort
1 Rolltor zum Lagerbereich im EG Teeküche Deckenbeleuchtung getrenntgeschlechtliche Sanitärflächen für Lager und Büro Netzverkabelung in den Büroflächen Warmlager 1 Rolltor zum Lagerbereich im EG Teeküche Deckenbeleuchtung getrenntgeschlechtliche Sanitärflächen für Lager und Büro Netzverkabelung in den Büroflächen Warmlager
Grundrisse
Grundrisse
1 / 1
Realisiere Dein Projekt
Bausubstanz und Energie
Energieausweis
Endenergieverbrauch (Wärme)
Endenergieverbrauch (Strom)
Baujahr1995
Mietkosten
Miete auf Anfrage
Provision für Mieter
provisionsfrei; mieterprovisionsfrei
Kaution
keine Angabe
Lage
Röhrsdorf, Chemnitz (09247)
Der Anbieter hat die genaue Adresse nicht freigegeben
Die Querstraße in Chemnitz-Röhrsdorf befindet sich in einem etablierten Gewerbe- und Industriegebiet im Nordwesten der Stadt. Chemnitz selbst ist mit rund 245.000 Einwohnern das wirtschaftliche Zentrum von Südwestsachsen und ein bedeutender Standort für Handel, Produktion und Logistik. In unmittelbarer Nähe zum Objekt befindet sich das Chemnitz-Center, das größte Einkaufszentrum Sachsens, was eine hohe Gewerbedichte und Kundenfrequenz gewährleistet. Die Verkehrsanbindung des Standorts ist hervorragend. Die Bundesstraße B95 führt direkt zum Objekt und ermöglicht eine schnelle Anbindung an die Autobahnen A4 (nur etwa 1 km entfernt) und A72 (ca. 3,5 km entfernt). Dadurch sind nicht nur die Chemnitzer Innenstadt, sondern auch überregionale Märkte schnell erreichbar. Über das Autobahnnetz besteht zudem eine direkte und gut ausgebaute Verbindung zu den Flughäfen Dresden (rund 80 km) und Leipzig/Halle (etwa 110 km).
Weitere Informationen
Sonstiges
Widerrufsrecht Sie können Ihre Vertragserklärung innerhalb von 14 Tagen ohne Angaben von Gründen in Textform (z.B. Brief, E-Mail) widerrufen. Die Frist beginnt nach Erhalt dieser Belehrung in Textform, jedoch nicht vor Vertragsabschluss und auch nicht vor Erfüllung unserer Informationspflichten gem. Art. 246 § 2 i.V.m. § 1 Abs. 1 und 2 EGBGB. Zur Wahrung der Widerrufsfrist genügt die rechtzeitige Absendung des Widerrufs. Im Falle eines wirksamen Widerrufs sind die beiderseits empfangener Leistungen zurück zu gewähren und ggf. bezogene Nutzungen (z.B. Zinsen) herauszugeben. Können Sie uns die empfangenen Leistungen sowie Nutzungen (z.B. Gebrauchsvorteile) nicht oder teilweise nicht oder nur in verschlechtertem Zustand zurückgewähren bzw. herausgeben, müssen Sie uns insoweit Wertersatz leisten. Dies kann dazu führen, dass Sie die vertraglichen Zahlungsverpflichtungen für den Zeitraum bis zum Widerruf gleichwohl erfüllen müssen. Verpflichtungen zur Erstattung von Zahlungen müssen innerhalb von 30 Tagen erfüllt werden. Die Frist beginnt für Sie mit der Absendung Ihrer Widerrufserklärung, für uns mit deren Empfang. Das Widerrufsrecht erlischt vorzeitig, wenn der Vertrag von beiden Seiten auf Ihren ausdrücklichen Wunsch vollständig erfüllt ist, bevor Sie Ihr Widerrufsrecht ausgeübt haben.
Weitere Angebote finden Sie unter www.antaris-immobilien.de!