
Invario Immobilien
Invario Immobilien | Team Verkauf
+49 ···
Nr. anzeigenPreise & Kosten
Provision für Käufer
4.643,99 € inkl. MwSt.
3,57% inkl. MwSt.
Abschreibung/Anlage
Denkmalschutz-Afa
Lage
Stötteritz ist ein Stadtteil im Südosten von Leipzig. Der Stadtteil liegt etwa vier Kilometer entfernt vom Zentrum Leipzigs. Er umfasst nahezu die gesamte Gemarkung Stötteritz sowie Teile der Gemarkungen Reudnitz, Thonberg und Probstheida.
Im Westen wird er von der Prager Straße sowie der Bahnstrecke Leipzig...
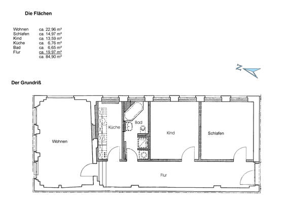
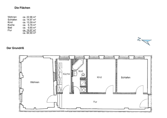
Die Wohnung
Wohnungslage
2. Geschoss (Erdgeschoss)
Derzeitige Nutzung
vermietet
Wohnanlage
Energie & Heizung
Warum sehe ich diese Anzeige? – Du siehst diese Anzeige basierend auf Ihrer Navigation auf unserer Website und den Suchkriterien, die du verwendet hast.
Energieausweis: für diesen Gebäudetyp nicht notwendig
Weitere Energiedaten
Energieträger
Gas
Heizungsart
Zentralheizung
Details
Objektbeschreibung
Diese charmante Erdgeschosswohnung befindet sich in einem historischen Altbau aus dem Jahr 1906, welcher unter Denkmalschutz steht. Die Wohnung erstreckt sich über eine Wohnfläche von ca. 84,90 m². Eine Zentralheizung sorgt für angenehme Wärme, und der Keller bietet zusätzlichen Stauraum. Der Gebäudezustand ist gepflegt, und...
Ausstattung
Die Immobilie verfügt über ein Badezimmer, das mit einer Badewanne ausgestattet ist. Die Bodenbeläge im gesamten Wohnbereich sind mit Parkett ausgelegt. Die Qualität der Ausstattung ist als normal einzustufen, was bedeutet, dass die Materialien solide verarbeitet sind und den üblichen Standards entsprechen. Insgesamt bietet...
Weitere Informationen
Stichworte
Anzahl der Schlafzimmer: 2, 4 Etagen, modernisiert
Anbieter der Immobilie
Online-ID: 2mt445k
Referenznummer: 2344#nrQ3D
Finde Angebote wie dieses
Hier geht es zu unserem Impressum, den Allgemeinen Geschäftsbedingungen, den Hinweisen zum Datenschutz und nutzungsbasierter Online-Werbung.