Version: 8.24.0Navigation ĂĽberspringen
369.000 €
2 Zimmer  â€˘  41,2 m²  â€˘  3. Geschoss
Immowelt logo

Wohnung zum Kauf
369000 €
8.956 €/m²
2 Zimmer  â€˘  41,2 m²  â€˘  3. Geschoss

WG-Apartment mit verglastem Balkon in MĂĽnchen - Moosach

Das WG-Apartment mit zwei Zimmern und verglastem Balkon bietet lässigen Wohnkomfort. Angekommen im 3. Stock der gepflegten Wohnanlage „studiosus³“ öffnet sich die Tür zu dem ganz privaten Rückzugsort in der lebendigen Stadt.

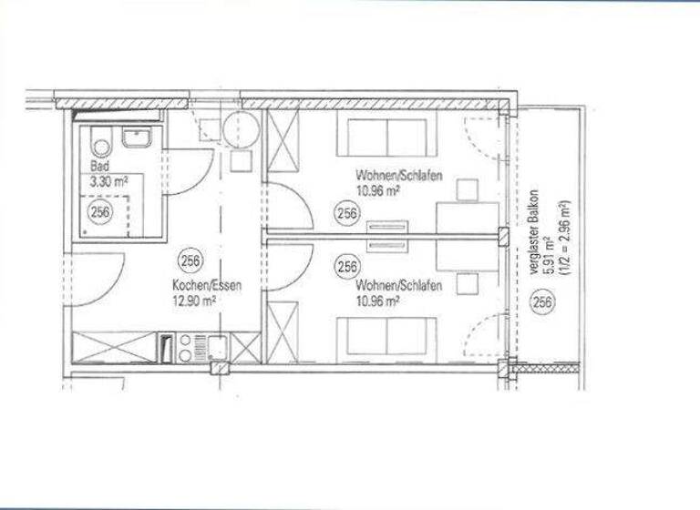
Der Grundriss teilt sich in eine Ess-Diele, ein Duschbad und zwei Wohn-Schlafräume mit Zugang zum Balkon auf. Ob Parkettboden, Fußbodenheizung, weiß geflieste Bad oder die neutral gehaltene Einbauküche – es ist ein perfektes modernes Apartment für Studenten. Ergänzt wird die Einheit mit einem Spind im Keller für die Unterbringung von kleinem Hab und Gut. Außerdem erübrigt sich der Weg zum Waschsalon, da jede Ebene über Waschautomaten verfügt.

Das Apartment wird spätestens zum Juli 2026 frei bzw. wird davor ein neuer Mietvertrag mit einer Kaltmiete i. H. v. 1.000 EUR/Monat vom jetzigen Eigentümer abgeschlossen. Die Mieter suchen bereits ab Mai einen Nachmieter.

Das nachhaltige Investment durch langfristige Mieteinnahmen!

Community-Lounge
Fitness-Raum
Gemeinsamer AuĂźenbereich
Hausmeister im Haus
Bequemes Einkaufen – alle Dinge des täglichen Bedarfs in direkter Umgebung
Mietverwaltung

Merkmale

  • 3. Geschoss
  • EinbaukĂĽche, offene KĂĽche
  • Personenaufzug
  • Bad mit Dusche
  • Waschraum
  • Bodenbelag: Fliesen, Parkett

Grundrisse

Grundrisse
1 / 1

Realisiere Dein Projekt

Bausubstanz und Energie

Energieausweis

C
  • Baujahr2014
  • HeizungsartZentralheizung: FuĂźbodenheizung
  • EnergieträgerGas
Immowelt logo

Preisdetails

Kaufpreis
369000 €
8.956,31 €/m²
Hausgeld
229 €
Provision für Käufer
3% zzgl. gesetzl. MwSt
Geschätzte Gesamtkosten
400.365 €1
Kaufpreis
369.000 €
Notarkosten (1,5%)
5.535 €
Grunderwerbsteuer (3,5%)
12.915 €
Provision für Käufer (3%)
11.070 €
Grundbucheintrag (0,5%)
1.845 €
1Der angezeigte Wert ist eine automatisch berechnete Schätzung von immowelt.
2Bei den Angaben handelt es sich um ortsübliche Werte. Individuelle Kosten können abweichen.

Lage

address-icon
Moosach, München (80992)
Der Anbieter hat die genaue Adresse nicht freigegeben
Moosach ist ein nordöstlich gelegener Stadtteil von München, welcher als ein lebendiger Stadtteil beste Infrastruktur bietet. Der tägliche Einkauf (Aldi, Rossmann ect.) kann direkt im Erdgeschoss erledigt werden und die am Haus liegende S- und U-Bahnstation sowie Tram garantieren minimalen Zeitaufwand zur Uni oder in die Innenstadt. Ergänzt wird der hohe Standard mit Bushaltestellen am Ort. Die sehr gute Anbindung erlaubt größtmögliche Flexibilität und Mobilität im Alltag der Mieter - Ein perfekter Standort für Ihre Kapitalanlage!


Schnelle und direkte Anbindungen

Mit U3 zur Universität (LMU) (15 Min.)
Mit U3/U2 zur TU (19 Min.)
Mit S1/U2 zur TU (23 Min.)
Mit Tram 20 zur Hochschule LothstraĂźe (13 Min.)
Mit U3 zum Marienplatz (18 Min.)
Mit U3/U2 zum Hauptbahnhof (20 Min.)
Mit U3 zum Olympiazentrum (7 Min.)
Mit U3 zum Englischen Garten (14 Min.)
Mit S1 zum Hauptbahnhof (13 Min.)
Mit S1 zum Flughafen (30 Min.)
Mit U3/U6 zur Allianz Arena (28 Min.)

Weitere Informationen

Stichworte Sonstiges: frei werdend

Weitere Services

Lust auf eine Besichtigung?
Eine Frage zur Immobilie?
Nachricht hinzufĂĽgen
Mit der Nutzung der oben angegebenen Telefonnummer oder durch Klicken auf „Kontaktieren“ akzeptierst Du die Allgemeinen Nutzungsbedingungen, denen Du jederzeit widersprechen kannst. Weitere Informationen zum Datenschutz

Ăśber den Anbieter

Spandauer Str. 26, 93053 Regensburg
partner badge
Partnerschaft
Herr Ralf Reichl
Herr Ralf ReichlDein Kontakt

Weitere Unterlagen

Online-ID: 2nxer5b
Referenznummer: K-56
Franca Graf. Immobilienvermittlung
title
Franca Graf. Immobilienvermittlung
Bewertung: 4,6 von 5 Sternen
Nachricht hinzufĂĽgen
Mit der Nutzung der oben angegebenen Telefonnummer oder durch Klicken auf „Kontaktieren“ akzeptierst Du die Allgemeinen Nutzungsbedingungen, denen Du jederzeit widersprechen kannst. Weitere Informationen zum Datenschutz
Wie zufrieden bist du mit dieser Seite (nicht mit der Immobilie selbst)?