Version: 8.26.0Navigation überspringen
3,50 €
2.285 m² Lagerfläche
Immowelt logo

Lagerhalle zur Miete
3,50 €
/m²
2.285 m² Lagerfläche

2.250m ² zweckmäßige Lagerfläche

Objektbeschreibung Diese Lagerfläche im UG mit ist fast ebenerdig durch ein großes Rolltor über eine ashaltierte Zufahrt direkt zu erreichen.
Die Hauptlagerfläche beträgt ca. 2.400 m² und ist 5,50 m hoch, eine kleinere Nebenlagerfläche hat ca. 60 m².
Die Fläche für WC / Teeküche / Eingangsbereich mit ca. 40 m² wird noch in Abstimmung mit dem Mieter neu errichtet.
Ein Lastenauszug (2,5 t) könnte auch eine ebenerdige Anlieferung ermöglichen.
Die Gesamtmietfläche wird optisch ansprechend und technisch funktionstüchtig
gemäß der Mieternutzung übergeben, da die Raumgestaltung flexibel ist.
Ausreichend Freifläche gewährleistet eine reibungslose Anlieferung.
Einige PKW-Stellplätze für Mitarbeiter oder Kunden können gehören
ebenfalls zum Gesamtpaket.


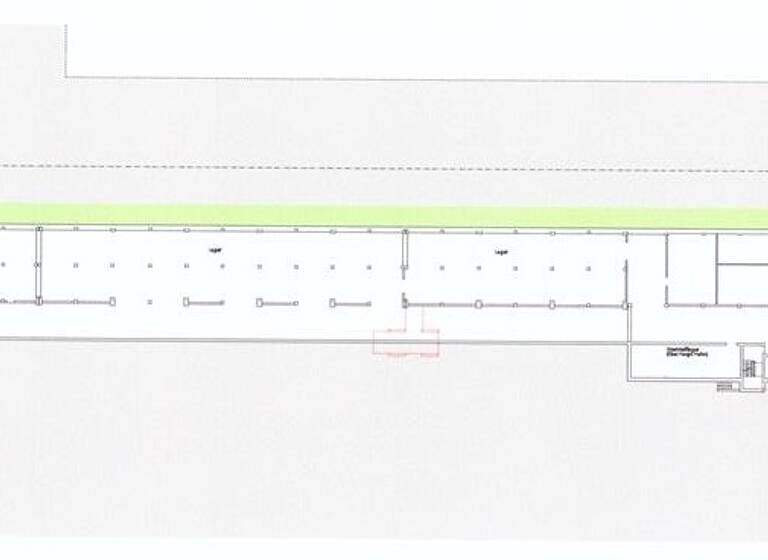
Raumaufteilung s. Grundsriss

Merkmale

  • Bezug: kurzfristig
  • Bodenbelag: Estrich
  • Beleuchtung: Deckenbeleuchtung
  • 5 Stellplätze: Außen-Stellplatz
  • DSL-Anschluss
  • LKW-Zufahrt
  • Raumaufteilung flexibel
  • Rolltor

Grundrisse

Grundrisse
1 / 1

Bausubstanz und Energie

  • Zustand der Immobilierenoviert / saniert
  • HeizungsartZentralheizung
  • EnergieträgerElektro, Gas
Immowelt logo

Mietkosten

Warmmiete
10.150 €
Nettomiete
3,50 €/m²
7.900 €
Nebenkosten
2.250 €
Heizkosten
in Nebenkosten enthalten
Provision für Mieter
2,38 Nettomonatsmieten inkl. MwSt.
Kaution
2 Nettomonatsmieten

Lage

address-icon
Lilienthalstr.33BettenhausenKassel (34123)
Die interessante Lage des Objektes an der vielbefahrenen Lilienthalstraße im östlichen
Bereich Kassels hat viele namhafte Unternehmen, z.B. VW, Bode-dieTür, UPK-
Unternehmenspark Kassel, etc., dazu bewogen ihren Standort hierhin zu legen.
Kurze Wege zu den BAB A7 und A44, die gute Anbindung an Kassels Infrastruktur
und auch der ÖPNV befindet sich fast direkt vor dem Objekt.

Weitere Informationen

Besichtigungstermine auch kurzfristig nach Absprache Stichworte Sonstiges: Getrennte Damen- und Herren-WCs

Weitere Services

Lust auf eine Besichtigung?
Eine Frage zur Immobilie?
Mit einer persönlichen Nachricht hast du bessere Chancen auf eine Antwort.
Mit der Nutzung der oben angegebenen Telefonnummer oder durch Klicken auf „Kontaktieren“ akzeptierst Du die Allgemeinen Nutzungsbedingungen, denen Du jederzeit widersprechen kannst. Weitere Informationen zum Datenschutz

Über den Anbieter

Hans-Römhild-Straße 42, 34128 Kassel
partner badgepartner badge
Partnerschaft + Diamond Partner
Hans KössingerDein Kontakt
Online-ID: 2556XHY8PL72
Referenznummer: LH02062025
Wie zufrieden bist du mit dieser Seite (nicht mit der Immobilie selbst)?