




Bungalow zum Kauf797895 €7.221 €/m²4,5 Zimmer • 110,5 m² • 1.012 m² Grundstück
797895 €
7.221 €/m²
4,5 Zimmer • 110,5 m² • 1.012 m² Grundstück
Ebenerdig & zukunftsorientiert in Bergholz-Rehbrücke - 110?m² Bungalow mit PV & SIcherheitspaket
Merkmale
- Bezug: 2026
- 1.012 m² Grundstück
- Einbauküche, offene Küche
- Gäste-WC
- Garten
- Barrierefrei
- Badezimmer: Badewanne, Bad mit Dusche, Bad mit Fenster
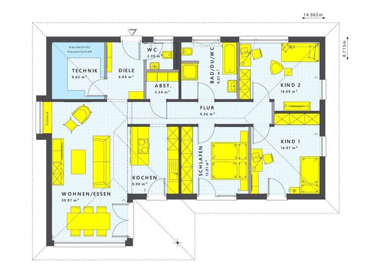
Grundrisse
Grundrisse
1 / 1
Virtueller Rundgang
Video

Realisiere Dein Projekt
Bausubstanz und Energie
Energieausweis
A+
- Baujahr2026
- Zustand der ImmobilieProjektiert
- HaustypKfW 40
- EnergieträgerLuft-/Wasser-Wärmepumpe
Preisdetails
Kaufpreis
797895 €
7.220,77 €/m²
Provision für Käufer
Das Grundstu?ck wird u?ber einen Drittanbieter provisionspflichtig verkauft.
Geschätzte Gesamtkosten
894.200 €1
Kaufpreis
797.895 €
Kaufnebenkosten
96.305 €
2Notarkosten (1,5%)
11.968 €
Grunderwerbsteuer (6,5%)
51.863 €
Provision für Käufer (3,57%)
28.485 €
Grundbucheintrag (0,5%)
3.989 €
1Der angezeigte Wert ist eine automatisch berechnete Schätzung von immowelt.
2Bei den Angaben handelt es sich um ortsübliche Werte. Individuelle Kosten können abweichen.
Lage

Bergholz-Rehbrücke, Nuthetal (14558)
Der Anbieter hat die genaue Adresse nicht freigegeben
Weitere Informationen
Weitere Services
Lust auf eine Besichtigung?
Eine Frage zur Immobilie?
Über den Anbieter
Dorfstr. 37, 14547 Beelitz
Partnerschaft
Herr Pascal FröhlichDein Kontakt
Online-ID: 2nhwd5m
Referenznummer: 30460-7687
Wie zufrieden bist du mit dieser Seite (nicht mit der Immobilie selbst)?



