Version: 8.24.0Navigation überspringen
VON POLL COMMERCIAL Bremen
17 €
124,5 m² Bürofläche

Bürofläche zur Miete • provisionsfrei
17 €
/m²
124,5 m² Bürofläche

Modernes Ladenlokal für Büro, Praxis oder Handel im Technologiepark Bremen

Dieses moderne Ladenlokal spricht Nutzer an, die Wert auf Qualität und einen zeitgemäßen Auftritt in ansprechender Lage legen. Die Einheit überzeugt durch eine klare Grundstruktur, hohe Aufenthaltsqualität und vielseitige Nutzungsmöglichkeiten und eignet sich für Einzelhandel, Dienstleistung, Praxis, Showroom oder hybride Konzepte aus Verkauf und Büro.

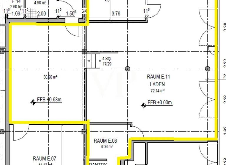
Die Verkaufsfläche umfasst ca. 121 m² und gliedert sich aktuell in mehrere funktionale Bereiche. Herzstück der Einheit ist ein großzügiger, offen gestalteter Verkaufsraum mit großflächiger Schaufensterfront und hohem Tageslichteinfall, der eine sehr gute Sichtbarkeit sowie eine wirkungsvolle Präsentation nach außen ermöglicht. Die bodentiefen Fensterflächen schaffen eine helle, freundliche Atmosphäre und unterstreichen den repräsentativen Charakter der Einheit.

Ein weiterer Teil der Verkaufsfläche ist über einen leichten Niveauversatz erhöht angeordnet. Dieser Bereich eignet sich ideal als abgesetzte Präsentations-, Beratungs- oder Aufenthaltszone und ermöglicht eine natürliche Gliederung der Fläche, ohne den offenen Charakter des Ladenlokals zu beeinträchtigen.

Ergänzend stehen zwei derzeit separat abgetrennte Räume zur Verfügung, die aktuell als eigenständige Bereiche genutzt werden können, beispielsweise für Beratung, Besprechung oder ergänzende Präsentation. Diese Räume sind in die Verkaufsfläche eingerechnet. Durch Entfernung der Trennwände lassen sich diese Bereiche bei Bedarf öffnen, sodass die Verkaufsfläche flexibel vergrößert oder neu strukturiert werden kann.
Zusätzlich verfügt die Einheit über eine Pantry sowie ein WC. Ein barrierefreies WC ist vorhanden.

Das Ladenlokal ist schwellenlos und ebenerdig zugänglich und verfügt über zwei großzügige Eingangstüren, was eine flexible Kundenführung sowie eine gute interne Organisation ermöglicht. Die Einheit befindet sich in einem gepflegten, massiv errichteten Gebäude und ist an die Fernwärmeversorgung angeschlossen. Ein Glasfaseranschluss ist im Haus vorhanden und bietet zeitgemäße Voraussetzungen für digitale Arbeits- und Kassensysteme.

Vor Anmietung ist vorgesehen, dass die Bodenbeläge neu verlegt werden. Der künftige Mieter erhält hierbei Mitsprachemöglichkeiten bei der Auswahl und Ausführung, sodass die Gestaltung der Flächen optimal auf das jeweilige Nutzungskonzept abgestimmt werden kann. Die Umsetzung erfolgt in Abstimmung mit dem Vermieter.

Umbauten und weitere Anpassungen der Flächen können grundsätzlich nach den Wünschen des Mieters in Abstimmung mit dem Vermieter umgesetzt werden, sodass individuelle Nutzungskonzepte flexibel realisierbar sind.

Stellplätze stehen direkt vor der Tür zur Verfügung und können optional zu je 90 € monatlich angemietet werden - ein klarer Vorteil für Kunden, Mitarbeitende oder Lieferverkehr.

Insgesamt bietet das Ladenlokal eine überzeugende Kombination aus Sichtbarkeit, Flexibilität und Qualität und eignet sich für unterschiedlichste gewerbliche Nutzungen mit langfristiger Perspektive.

Merkmale

  • 5 Stellplätze: 5 Außen-Stellplätze

Grundrisse

Grundrisse
1 / 1

Realisiere Dein Projekt

Bausubstanz und Energie

Energieausweis

Endenergieverbrauch (Wärme)

Endenergieverbrauch (Strom)

  • Baujahr2001
  • Zustand der ImmobilieMassivhaus, neuwertig
  • EnergieträgerFernwärme

Mietkosten

Nettomiete
17 €/m²
2.115,99 €
Nebenkosten
454,31 €
Zusätzliche Kosten
Miete pro Stellplatz
90 €
Provision für Mieter
provisionsfrei
Kaution
keine Angabe
Weitere Preisinformationen
5 Stellplätze, Miete je: 90,00 EUR

Lage

address-icon
Kremser Straße 4aLeheBremen (28359)
Das Ladenlokal befindet sich im Stadtteil Horn-Lehe und liegt im Technologiepark Bremen. Der Standort ist geprägt durch eine hohe Dichte an Büro-, Forschungs- und Dienstleistungsnutzungen sowie durch die unmittelbare Einbindung in den universitären und technologieorientierten Wirtschaftsstandort Bremens.

Der Technologiepark Bremen ist ein etablierter Standort für Unternehmen, Institute und Dienstleister aus technologie-, forschungs- und wissensnahen Bereichen. In direkter Nachbarschaft befinden sich unter anderem Einrichtungen der Universität Bremen sowie zahlreiche Büro- und Gewerbenutzungen, die für eine konstante werktägliche Grundfrequenz sorgen.

Die Lage eignet sich insbesondere für Konzepte, die auf Beschäftigte, Studierende, Dienstleistungsnachfrage oder terminbasierte Nutzung ausgerichtet sind. Durch die Kombination aus Arbeitsplätzen, universitärem Umfeld und angrenzenden Wohnquartieren ergibt sich eine stabile Nutzungsstruktur mit regelmäßigem Publikumsverkehr, ohne die Charakteristik eines klassischen innerstädtischen Einzelhandelsstandorts.

Die Anbindung an den öffentlichen Personennahverkehr ist gut. Mehrere Bus- und Straßenbahnlinien sind fußläufig erreichbar. Gleichzeitig besteht eine gute Erreichbarkeit für den Individualverkehr, was den Standort auch für Mitarbeitende, Kunden und Lieferverkehr praktikabel macht. Die direkt vor dem Objekt verfügbaren Stellplätze unterstützen die Alltagstauglichkeit zusätzlich.

Insgesamt bietet der Standort im Technologiepark Bremen eine funktional klare und nachhaltig nachgefragte Lage, der ideale Standort für Ihr Geschäft bzw. Ihr Unternehmen.

Weitere Informationen

Sonstiges GELDWÄSCHE: Als Immobilienmaklerunternehmen ist VON POLL COMMERCIAL Bremen, Simon Investmentimmobilien GmbH, vertreten durch Geschäftsführer Andre Simon, selbstständiger Lizenzpartner der Von Poll Immobilien GmbH, nach § § 1, 2 Abs. 1 Nr. 10, 4 Abs. 3 Geldwäschegesetz (GwG) dazu verpflichtet, vor Begründung einer Geschäftsbeziehung die Identität des Vertragspartners festzustellen und zu überprüfen. Hierzu ist es erforderlich, dass wir die relevanten Daten Ihres Personalausweises festhalten - beispielsweise mittels einer Kopie. Das Geldwäschegesetz (GwG) sieht vor, dass der Makler die Kopien bzw. Unterlagen fünf Jahre aufbewahren muss.
PROVISIONSHINWEIS: Mit der Anfrage bei und durch Inanspruchnahme bei VON POLL COMMERCIAL Bremen, Simon Investmentimmobilien GmbH, vertreten durch Geschäftsführer Andre Simon,, selbstständiger Lizenzpartner der Von Poll Immobilien GmbH, wird ein Maklervertrag geschlossen. Sofern es durch die Tätigkeit von VON POLL COMMERCIAL Bremen, Simon Investmentimmobilien GmbH, vertreten durch Geschäftsführer Andre Simon,, selbstständiger Lizenzpartner der Von Poll Immobilien GmbH zu einem wirksamen Hauptvertrag mit der Eigentümerseite kommt, hat der Interessent bei Abschluss
- eines MIETVERTRAGS Provision/Maklercourtage an VON POLL COMMERCIAL Bremen, Simon Investmentimmobilien GmbH, vertreten durch Geschäftsführer Andre Simon, selbstständiger Lizenzpartner der Von Poll Immobilien GmbH zu zahlen.
- eines KAUFVERTRAGS die ortsübliche Provision/Maklercourtage an VON POLL COMMERCIAL Bremen, Simon Investmentimmobilien GmbH, vertreten durch Geschäftsführer Andre Simon, selbstständiger Lizenzpartner der Von Poll Immobilien GmbH gegen Rechnung zu zahlen.
HAFTUNG: Wir weisen darauf hin, dass die von uns weitergegebenen Objektinformationen, Unterlagen, Pläne etc. vom Verkäufer bzw. Vermieter stammen. Eine Haftung für die Richtigkeit oder Vollständigkeit der Angaben übernehmen wir daher nicht. Es obliegt daher unseren Kunden, die darin enthaltenen Objektinformationen und Angaben auf ihre Richtigkeit hin zu überprüfen. Alle Immobilienangebote sind freibleibend und vorbehaltlich Irrtümer, Zwischenverkauf- und Vermietung oder sonstiger Zwischenverwertung.

UNSER SERVICE FÜR SIE ALS EIGENTÜMER:
Planen Sie den Verkauf oder die Vermietung Ihrer Immobilie, so ist es für Sie wichtig, deren Marktwert zu kennen. Lassen Sie kostenfrei und unverbindlich den aktuellen Wert Ihrer Immobilie professionell durch einen unserer Immobilienspezialisten einschätzen. Unser bundesweites und internationales Netzwerk ermöglicht es uns, Verkäufer bzw. Vermieter und Interessenten bestmöglich zusammenzuführen. Stichworte Nutzfläche: 124,47 m², Gesamtfläche: 124,47 m², Verkaufsfläche: 120,51 m², Anzahl der Gewerbeeinheiten: 1, Bundesland: Bremen

Weitere Services

Lust auf eine Besichtigung?
Eine Frage zur Immobilie?
Nachricht hinzufügen
Mit der Nutzung der oben angegebenen Telefonnummer oder durch Klicken auf „Kontaktieren“ akzeptierst Du die Allgemeinen Nutzungsbedingungen, denen Du jederzeit widersprechen kannst. Weitere Informationen zum Datenschutz

Über den Anbieter

Wachmannstraße 132, 28209 Bremen
partner badge
Partnerschaft
Herr Andre Simon
Herr Andre SimonDein Kontakt
Online-ID: 2nxr55f
Referenznummer: 26 271 013
VON POLL COMMERCIAL Bremen
title
VON POLL COMMERCIAL Bremen
Bewertung: 4,9 von 5 Sternen
Nachricht hinzufügen
Mit der Nutzung der oben angegebenen Telefonnummer oder durch Klicken auf „Kontaktieren“ akzeptierst Du die Allgemeinen Nutzungsbedingungen, denen Du jederzeit widersprechen kannst. Weitere Informationen zum Datenschutz
Wie zufrieden bist du mit dieser Seite (nicht mit der Immobilie selbst)?