

Bürofläche zur Miete2.240 €320 m² Bürofläche
2.240 €
320 m² Bürofläche
GROß - Büroräume in bester Innenstadtlage von WEIßENBURG
Merkmale
- frei ab 01.03.2026
- Personenaufzug
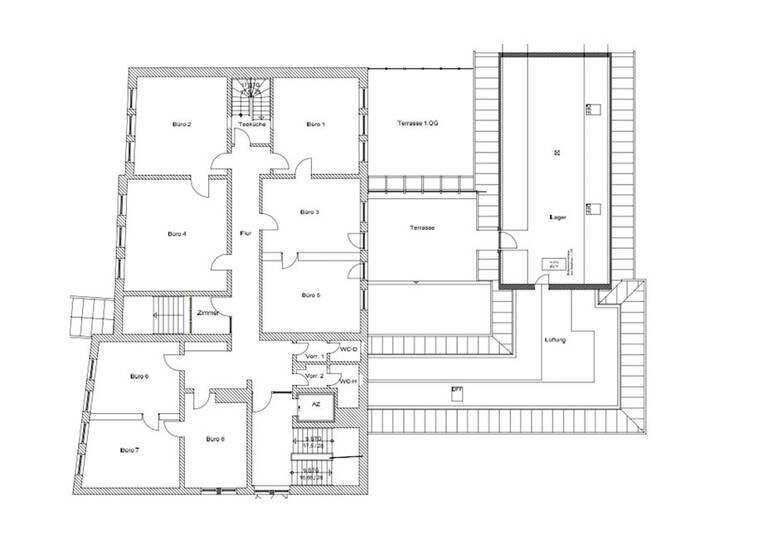
Grundrisse
Grundrisse
1 / 1
Realisiere Dein Projekt
Bausubstanz und Energie
Energieausweis
Endenergieverbrauch (Wärme)
Endenergieverbrauch (Strom)
- Baujahr1984
- HeizungsartZentralheizung
- EnergieträgerGas
Mietkosten
Nettomiete zzgl. Nebenkosten
2.240 €
Provision für Mieter
1,19 inkl. MwSt.
Monatskaltmieten Mieterprovision (inkl. MwSt.)
Monatskaltmieten Mieterprovision (inkl. MwSt.)
Kaution
5000 €
Weitere Preisinformationen
Nettokaltmiete: 2.240,00 EUR
Lage

Weißenburg (91781)
Der Anbieter hat die genaue Adresse nicht freigegeben
Weitere Informationen
Weitere Services
Lust auf eine Besichtigung?
Eine Frage zur Immobilie?
Über den Anbieter
Luitpoldstr. 2, 91781 Weißenburg
Partnerschaft
Herr Johannes MeyerDein Kontakt
Online-ID: 2lc7v5b
Referenznummer: 1212

Immobilien Plößl Am alten Rathaus GmbH & Co. KG
Bewertung: 4,7 von 5 Sternen
Wie zufrieden bist du mit dieser Seite (nicht mit der Immobilie selbst)?