Version: 8.25.1Navigation überspringen
Garant Immobilien Franken GmbH
675.000 €
2 Zimmer  •  139 m²  •  1.300 m² Grundstück

Einfamilienhaus zum Kauf
675000 €
4.856 €/m²
2 Zimmer  •  139 m²  •  1.300 m² Grundstück

Großzügiges Architektenhaus mit einzigartigem Grundstück in Straubing OT Alburg

Heute stellen wir Ihnen ein Architektenhaus aus dem Jahr 1971 vor, dass durch seine durchdachte, ebenerdige Bauweise und ein großzügiges Raumkonzept überzeugt. Der offene Wohn.- Ess- und Bibliotheksbereich mit ca. 64 qm Fläche bildet das Herzstück des Hauses. Große Fensterflächen schaffen eine helle, freundliche Atmosphäre, während ein Schwedenofen sowie indirekte Beleuchtung für besondere Wohnqualität sorgen. Von hier aus gelangen Sie direkt auf die ca. 65 qm große gepflasterte Terrasse mit der zum Teil überdachten Pergula. Hier verbinden sich Innen- und Außenleben auf ideale Weise.
Das großzügige eingewachsene und eingefriedete Grundstück mit altem Baumbestand bietet vielfältige Nutzungsmöglichkeiten für Gartenliebhaber oder Familien.

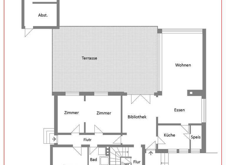
Raumaufteilung Erdgeschoss:
* großzügiger Wohn-/Ess-/Bibliotheksbereich
* Küche mit angrenzender Speisekammer
* Schlafzimmer
* (Kinder)Zimmer
* (Kinder)Zimmer
* geräumiges Badezimmer mit bodengleicher Dusche und Badewanne
* Gäste-WC
* Garderobe
* Flur

Raumaufteilung Keller:
* Technikraum
* Barbereich
* Stauraum/Hobbyraum



Weitere Angebote unter www.GARANT-IMMO.de

Merkmale

  • Bezug: sofort
  • 1.300 m² Grundstück
  • Einbauküche
  • Gäste-WC
  • Bodenbelag: Fliesen, Parkett
  • Stellplatz
* Teilunterkellerung
* zwei Hauseingänge
* Fußbodenheizung im Wohn-/Ess-/Bibliothekbereich und im Bad
* Gasheizung (ca. 2022 eingebaut)
* Schwedenofen im Wohnzimmer
* indirekte Beleuchtung im Wohnzimmer und Bibliothek
* Raffrollos im Wohnzimmer
* Rollläden in allen Zimmern
* Garage mit zusätzlichen kleinem Abstellraum
* ca. 38 qm große Pergula davon ca. 18 qm mit Glas überdacht


Grundrisse

Grundrisse
1 / 2

Realisiere Dein Projekt

Bausubstanz und Energie

Möchtest du Details zum Energieverbrauch?info_energy_calculation-icon
  • Baujahr1971
  • Zustand der ImmobilieGepflegt
MediumRectangleTop

Preisdetails

Kaufpreis
675000 €
4.856,12 €/m²
Provision für Käufer
2,38 % (inkl. MwSt.) inkl. MwSt.
Die Maklercourtage für den Käufer beträgt 2 % aus dem Kaufpreis zuzüglich der gesetzlichen MwSt., somit gesamt 2,38 %.
Geschätzte Gesamtkosten
728.190 €1
Kaufpreis
675.000 €
Notarkosten (1,5%)
10.125 €
Grunderwerbsteuer (3,5%)
23.625 €
Provision für Käufer (2,38%)
16.065 €
Grundbucheintrag (0,5%)
3.375 €
1Der angezeigte Wert ist eine automatisch berechnete Schätzung von immowelt.
2Bei den Angaben handelt es sich um ortsübliche Werte. Individuelle Kosten können abweichen.

Lage

address-icon
AlburgStraubing (94315)
Der Anbieter hat die genaue Adresse nicht freigegeben
Die Immobilie befindet sich im beliebten Ortsteil Alburg, das im westlichen Stadtgebiet von Straubing liegt. Die Umgebung ist geprägt von Bestandsbebauung sowie einer gut ausgebauten Infrastruktur.
Die Anbindung an das überörtliche Verkehrsnetz ist gut - sowohl an das Stadtzentrum Straubing, als auch an die Bundesstraßen in Richtung Regensburg, Landshut und Deggendorf.

Einkaufsmöglichkeiten des täglichen Bedarfs, Schulen und Kindergärten und medzinzinische Versorgung sind im näheren Umfeld vorhanden.

Weitere Informationen

Sonstiges Für Fragen stehen wir Ihnen gerne zur Verfügung.
Nennen Sie uns einen Wunschtermin für eine Besichtigung, die zuständige Maklerin setzt sich mit Ihnen schnellstmöglich in Verbindung. Stichworte Garage vorhanden, Anzahl der Schlafzimmer: 3, Anzahl der Badezimmer: 1, 1 Etagen

Weitere Services

Lust auf eine Besichtigung?
Eine Frage zur Immobilie?
Nachricht hinzufügen
Mit der Nutzung der oben angegebenen Telefonnummer oder durch Klicken auf „Kontaktieren“ akzeptierst Du die Allgemeinen Nutzungsbedingungen, denen Du jederzeit widersprechen kannst. Weitere Informationen zum Datenschutz

Über den Anbieter

Schweinauer Hauptstraße 38, 90441 Nürnberg
partner badge
10 Jahre Partnerschaft
Büro RegensburgDein Kontakt
Online-ID: 268EHZW6BEK4
Referenznummer: 286.037
Garant Immobilien Franken GmbH
Garant Immobilien Franken GmbH
Bewertung: 3,7 von 5 Sternen
Nachricht hinzufügen
Mit der Nutzung der oben angegebenen Telefonnummer oder durch Klicken auf „Kontaktieren“ akzeptierst Du die Allgemeinen Nutzungsbedingungen, denen Du jederzeit widersprechen kannst. Weitere Informationen zum Datenschutz
MediumRectangleTop
MediumRectangleBottom
MediumRectangleTop
Wie zufrieden bist du mit dieser Seite (nicht mit der Immobilie selbst)?