Version: 8.24.0Navigation ĂĽberspringen
700 €
2 Zimmer  â€˘  80 m² Verkaufsfläche
Immowelt logo

Laden zur Miete
700 €
2 Zimmer  â€˘  80 m² Verkaufsfläche

Kleines Ladenlokal am Bergischen Löwen !!!

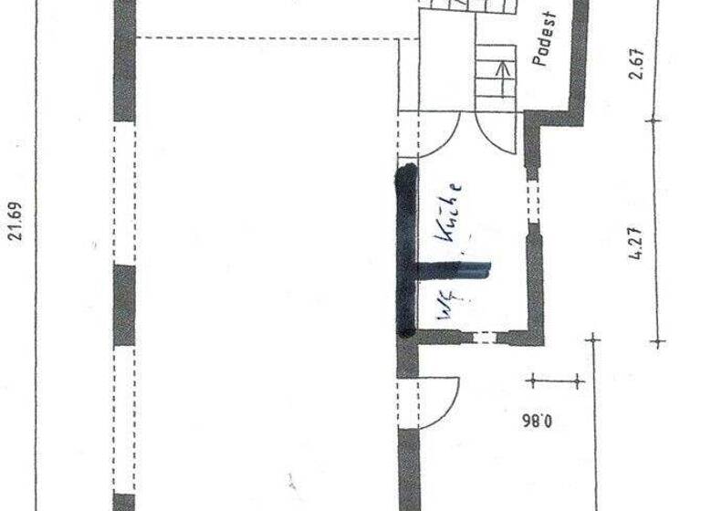
Dieses kleine Ladenlokal am Bergischen Löwen ist der perfekte Ort für alle, die nach einer vielseitigen und leistungsstarken Gewerbefläche suchen. Es bietet Platz für Büros, Praxen und andere gewerbliche Nutzungen. Verfügbar ab sofort oder nach Vereinbarung, ist dieser Standort ideal für Unternehmen aller Art. Das Gebäude wurde 1920 erbaut und stetig modernisiert, um den heutigen Ansprüchen an Komfort und Funktionalität gerecht zu werden. Es besteht aus einer Ladenfläche von ca. 80 qm mit 2 Räumen und einem WC sowie Teeküche. Neben der Ladenfläche befindet sich noch ca. 20m² Lagerfläche,

Einen PKW-Stellplatz kann man für 85,-€ mit anmieten.

Merkmale

  • Bezug: sofort/nach Vereinb.
  • Kein Keller
  • Bodenbelag: Laminat
-eigener Eingang
-Laminat
-WC
-indirekte Beleuchtung
-Fensterfron
-neue eigene Heizung
-PKW-Stellplatz 85,-€

Grundrisse

Grundrisse
1 / 1

Realisiere Dein Projekt

Bausubstanz und Energie

Der Anbieter hat keine Informationen zum Energieverbrauch bereit gestellt.
  • Baujahr1920
Immowelt logo

Mietkosten

Warmmiete
800 €
Nettomiete
700 €
Nebenkosten
100 €
Zusätzliche Kosten
Heizkosten
Provision fĂĽr Mieter
3,57 Monatsmieten inkl. 19% MwSt zzgl. MwSt.
Kaution
2100 €
Weitere Preisinformationen
Nettokaltmiete: 700,00 EUR

Lage

address-icon
Gladbach, Bergisch Gladbach (51465)
Der Anbieter hat die genaue Adresse nicht freigegeben
Das Ladenlokal befindet sich am Rande der Fussgängerzone von Bergisch Gladbach und in unmittelbarer Nähe des Bergischen Löwen.
Bergisch Gladbach zählt zu den beliebtesten Wohnorten im rechtsrheinischen Bereich. Die Lage der Liegenschaft befindet sich in erstklassiger zentrumsnaher Lage und zählt zu den bevorzugten Geschäftslagen. Gute Verkehrsanbindungen nach Bensberg, Köln sowie in das Bergische Land kennzeichnen die attraktive Lage. Geschäfte des täglichen Bedarfs wie z.B. Banken, Schulen, Kindergärten sowie Ärzte sind in wenigen Minuten erreichbar. Die Verkehrsanbindungen über Autobahn, Busse und Straßen- sowie S-Bahnen sind ideal und lassen die Kölner Innenstadt in nur ca. 25 Minuten erreichen.

Weitere Informationen

Stichworte Lagerfläche: 120,00 m², Nutzfläche: 200,00 m², Gesamtfläche: 80,00 m², Bürofläche: 80,00 m², Ladenfläche: 80,00 m², modernisiert

Weitere Services

Lust auf eine Besichtigung?
Eine Frage zur Immobilie?
Nachricht hinzufĂĽgen
Mit der Nutzung der oben angegebenen Telefonnummer oder durch Klicken auf „Kontaktieren“ akzeptierst Du die Allgemeinen Nutzungsbedingungen, denen Du jederzeit widersprechen kannst. Weitere Informationen zum Datenschutz

Ăśber den Anbieter

Hollweg 18, 51519 Odenthal
partner badge
Partnerschaft
Herr Frank PufalDein Kontakt
Online-ID: 2ntw55f
Referenznummer: 6214
Heinz Immobilien Inh. Bernd Heinz
Heinz Immobilien Inh. Bernd Heinz
Nachricht hinzufĂĽgen
Mit der Nutzung der oben angegebenen Telefonnummer oder durch Klicken auf „Kontaktieren“ akzeptierst Du die Allgemeinen Nutzungsbedingungen, denen Du jederzeit widersprechen kannst. Weitere Informationen zum Datenschutz
Wie zufrieden bist du mit dieser Seite (nicht mit der Immobilie selbst)?