




Wohnung zum Kauf115000 €1.157 €/m²4 Zimmer • 99,6 m² • 3. Geschoss
115000 €
1.157 €/m²
4 Zimmer • 99,6 m² • 3. Geschoss
Preiswerte 4-Zi.-Dachgeschosswohnung in urbaner Lage zur individuellen Gestaltung!
Merkmale
- Bezug: ab sofort
- Denkmalschutz-Afa
- Dachgeschoss, 3. Geschoss
- Einbauküche
- Badezimmer: Badewanne, Bad mit Dusche
- Keller
- Balkon
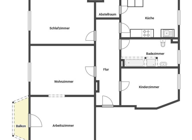
Grundrisse
Grundrisse
1 / 1
Virtueller Rundgang
3D tour

Realisiere Dein Projekt
Bausubstanz und Energie
Energieausweis
- Baujahr1892
- Zustand der ImmobilieGepflegt
Preisdetails
Kaufpreis
115000 €
1.157,29 €/m²
Provision für Käufer
Die Provision i.H.v. 3,57 % inkl. MwSt. ist mit Kaufvertragsbeurkundung fällig, sofern der Verkaufspreis über 83.000,00 € liegt.
Liegt der Verkaufspreis dagegen bei/unter 83. Weitere Informationen siehe Provisionshinweis.
Liegt der Verkaufspreis dagegen bei/unter 83. Weitere Informationen siehe Provisionshinweis.
Geschätzte Gesamtkosten
123.131 €1
Kaufpreis
115.000 €
Kaufnebenkosten
8.131 €
2Notarkosten (1,5%)
1.725 €
Grunderwerbsteuer (5%)
5.750 €
Provision für Käufer (0,07%)
81 €
Grundbucheintrag (0,5%)
575 €
1Der angezeigte Wert ist eine automatisch berechnete Schätzung von immowelt.
2Bei den Angaben handelt es sich um ortsübliche Werte. Individuelle Kosten können abweichen.
Lage

Heppens, Wilhelmshaven (26382)
Der Anbieter hat die genaue Adresse nicht freigegeben
Weitere Informationen
Weitere Services
Lust auf eine Besichtigung?
Eine Frage zur Immobilie?
Über den Anbieter
Online-ID: 261938M97PCM
Referenznummer: 36bcf883cd
Wie zufrieden bist du mit dieser Seite (nicht mit der Immobilie selbst)?




