Version: 8.25.1Navigation überspringen
Decus Immobilien GmbH
3.386 €

Restaurant zur Miete
3.386 €

| TrIIIPLE BT 3 | Café/Restaurant mit Außenbereich (Nachmietersuche)

Objekt und Lage:

Das Gebäude Triiple Bauteil 3 liegt in einer zentralen und verkehrsgünstigen Lage, die für Gastronomiebetriebe besonders attraktiv ist.

Die Fläche (Nachmietersuche) befindet sich in hochfrequentierter Umgebung mit hervorragender Sichtbarkeit und eignet sich ideal für ein Café oder Restaurant.

Die Nachbarschaft vereint eine gelungene Mischung aus Geschäfts- und Wohnnutzung, wodurch sowohl Tages- als auch Abendpublikum angezogen wird. Dank der guten Anbindung an den ÖPNV und die Hauptverkehrsstraßen ist die Fläche für Gäste und Mitarbeiter gleichermaßen bequem erreichbar.

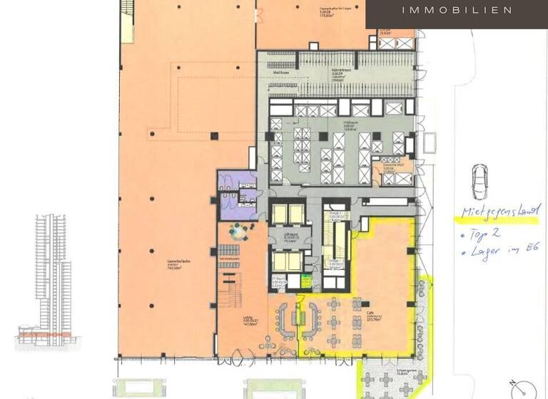
Zum sofortigen Bezug steht das attraktive Café / Restaurant im Erdgeschoss des Gebäudes Triiple Bauteil 3 bereit.

Die gesamte Fläche umfasst ca. 212,30 m² und bietet ein großzügiges Raumangebot für gastronomische Nutzung.

Ergänzt wird das Objekt durch Außengastronomieflächen ("Sidewalk Café") mit ca. 50 m², die ideal für sommerliche Bewirtung und zusätzliche Sitzplätze geeignet sind.

Die Einrichtung lässt sich flexibel gestalten - der Grundriss ermöglicht sowohl klassische Café- und Bistrokonzepte als auch moderne Restaurantlayouts.

Zwei Lagerräume mit insgesamt ca. 21,40 m² (Untergeschoss ca. 19 m², Erdgeschoss ca. 2,40 m²) sorgen für ausreichend Lagerfläche, und zwei Kfz-Stellplätze im Untergeschoss runden das Angebot ab. Weitere 1 bis 2 Stellplätze können bei Bedarf angemietet werden.

 

In unmittelbarer Nähe befinden sich Einkaufsmöglichkeiten, Restaurants, Cafés und diverse Freizeitangebote, die den Standort besonders attraktiv für eine gastronomische Nutzung machen. Die Außengastronomiefläche bietet zusätzlichen Flair und eine einladende Atmosphäre für Gäste.

 

Die Fläche ist ab sofort verfügbar, nach Abstimmung mit dem Eigentümer und eignet sich ideal für Gastronomen, die eine zentrale Lage mit hoher Sichtbarkeit suchen.

 

* Der Vormieter hat zusätzliche Lüftungsanlagen eingebaut; Infos zur Betriebsanlagen-Genehmigung werden derzeit noch finalisiert.
* BAB wird mit dem Angebot übermittelt.
* Falls gewünscht, kann das Inventar übernommen werden. Inventarablöse: € 250.000, verhandelbar mit dem Vormieter. Inventarliste wird nachgereicht.
* Mietvertrag: 5 Jahre befristet.
* Der Vermieter setzt beste Bonität voraus.
* BITTE SCHRIFTLICHE ANFRAGEN und Bekanntgabe der gewünschten Nutzung bzw. Ihres interessanten KONZEPTS (teilen Sie uns dies in einer kurzen Schilderung samt Ihren vollständigen Kontaktdaten mit)
* Haben Sie bereits einen Standort oder ein stabiles Konzept? 
* Hinweis: die möblierten Bilder sind jene des Vormieters während des laufenden Betriebs.

 

* EG, Gastronomiebereich, ca. 212,30 m²: € 15,95/m²/Monat/netto/Miete (€ 3.386,16/Monat/netto)
* EG, Außenbereich, ca. 50 m²: € 2,50/m²/Monat/netto/Miete (€ 125,00/Monat/netto)
* EG, Lager, ca. 2,40 m²: € 7,40/m²/Monat/netto/Miete (€ 17,76/Monat/netto)
* UG, Lager, ca. 19,00 m²: € 7,40/m²/Monat/netto/Miete (€ 140,60/Monat/netto)

 

Die Preise verstehen sich zzgl. Betriebskosten, inkl. Heizung und Kühlung, exkl. Strom (€ 1.061,50/Monat/netto).

 

Gesamtmiete/Monat inkl. BK, Heizung, und Ust.: € 5.957,26 exkl. Strom

 

Kaution: 3 bis 6 Bruttomonatsmieten je nach Bonität

Provision: 3 Bruttomonatsmieten

 

Stellplätze:

2 Kfz-Stellplätze im UG: € 116,66/Stellplatz/Monat/netto 

Weitere 1 bis 2 Stellplätze auf Anfrage.

 

Energieausweis liegt vor:

Heizwärmebedarf: 41,41kWh/m².a

 

Verkehrsanbindung:

Die U3 Station Erdberg ist 2 Gehminuten entfernt.

* U3 Stephansplatz (10 Minuten)
* U3 Wien Mitte (5 Minuten)
* Wiener Hauptbahnhof: 14 Minuten (U-Bahn), 10 Minuten (PKW)
* Flughafen: Auto: 15 Minuten, CAT: 25 Minuten
* Prater: 5 Minuten (zu Fuß), 3 Minuten (Fahrrad)

 

Alle Preisangaben verstehen sich zzgl. der gesetzl. Ust.

Alle Angaben ohne Gewähr, Irrtümer und Änderungen vorbehalten.

Wir weisen darauf hin, dass zwischen dem Vermittler und dem zu vermittelnden Dritten ein familiäres oder wirtschaftliches Naheverhältnis besteht.

Der Vermittler ist als Doppelmakler tätig.

EG
Top 2: 212,3 m² 15,95 € - Die Betriebskosten werden nachgereicht.

DECUS Immobilien GmbH - Wir beleben Räume

Für weitere Informationen und Besichtigungen steht Ihnen gerne Frau  Sonja Macho unter der Mobilnummer +43 664 44 53 56 1 und per E-Mail unter macho@decus.at persönlich zur Verfügung.

www.decus.at | office@decus.at 

 

Wichtige Informationen

Bitte beachten Sie, dass per 13.06.2014 eine neue Richtlinie für Fernabsatz- und Auswärtsgeschäfte in Kraft getreten ist.

Ab 1.4.2024 entfallen die Grundbuchs- und Pfandrechtseintragungsgebühren vorübergehend für Eigenheime bis zu einer Bemessungsgrundlage von EUR 500.000,-. Voraussetzung ist das dringende Wohnbedürfnis, ausgenommen davon sind vererbte oder geschenkte Immobilien. Die Befreiung ist jedoch für den Einzelfall zu prüfen, DECUS Immobilien übernimmt hierzu keine Haftung.

Ab 01.07.2023 gilt das Erstauftraggeber-Prinzip bei Wohnungsmietverträgen, ausgenommen davon sind Dienst-/Natural-/Werkswohnungen. Wir dürfen gem. § 17 Maklergesetz darauf hinweisen, dass wir auf die Doppelmaklertätigkeit gem. § 5 Maklergesetz bei Wohnungsmietverträgen verzichten und nur noch einseitig tätig sind (bei den restlichen Vermittlungsarten nicht) und ein wirtschaftliches Naheverhältnis zu unseren Auftraggebern besteht. 

Im Falle eines Abschlusses mit Ihnen oder einem von Ihnen namhaft gemachten Dritten bzw. bei beidseitiger Willensübereinstimmung beträgt unser Honorar (lt. Honorarverordnung für Immobilienmakler) 2 Bruttomonatsmieten (BMM) bei Dienst-/Natural-/Werkwohnungen sowie Suchaufträgen, 3 BMM bei Gewerbe-, PKW-, Keller- und Lagermietverträgen sowie bei Kaufobjekten 3 % des Kaufpreises, zuzüglich der gesetzlichen Umsatzsteuer.

Dieses Objekt wird Ihnen unverbindlich und freibleibend angeboten. Oben angeführte Angaben basieren auf Informationen und Unterlagen des Eigentümers und sind unsererseits ohne Gewähr.

Nähere Informationen sowie unsere AGBs und die Nebenkostenübersichtsblatt finden Sie auf unserer Homepage www.decus.at unter "Service" - "Rechtliches zum FAGG" sowie im Anhang der zugesendeten Objekt-Exposés!

Infrastruktur / Entfernungen

Gesundheit
Arzt <500m
Apotheke <500m
Klinik <500m
Krankenhaus <1.000m

Kinder & Schulen
Schule <1.000m
Kindergarten <500m
Universität <500m
Höhere Schule <1.000m

Nahversorgung
Supermarkt <500m
Bäckerei <500m
Einkaufszentrum <1.500m

Sonstige
Geldautomat <1.000m
Bank <500m
Post <1.000m
Polizei <1.000m

Verkehr
Bus <500m
U-Bahn <500m
Straßenbahn <500m
Bahnhof <500m
Autobahnanschluss <500m

Angaben Entfernung Luftlinie / Quelle: OpenStreetMap

Grundrisse

Grundrisse
1 / 2

Realisiere Dein Projekt

Bausubstanz und Energie

Heizwärmebedarf (HWB)

B

Gesamtenergieeffizienz (fGEE)

Der Anbieter hat keine Daten zum Energieausweis hinterlegt.
  • Zustand der ImmobilieNeubau
MediumRectangleTop

Mietkosten

Nettokaltmiete
15,95 €/m²
3.386,19 €
Betriebskosten
963,84 €
Provision für Mieter
Bitte beachte, das Angebot kann bei Vertragsabschluss die Zahlung einer Provision beinhalten. Weitere Informationen erhältst Du vom Anbieter.
Kaution
keine Angabe
Weitere Preisinformationen

Die Betriebskosten werden nachgereicht.
Alle Preise sind zzgl. MWST., Nettokaltmiete: 3.386,19 EUR
Nebenkosten pro qm: 4,54 EUR

Lage

address-icon
Wien (1030)
Der Anbieter hat die genaue Adresse nicht freigegeben

Weitere Informationen

Stichworte Nutzfläche: 212,30 m², Bundesland: Wien

Weitere Services

Lust auf eine Besichtigung?
Eine Frage zur Immobilie?
Mit einer persönlichen Nachricht hast du bessere Chancen auf eine Antwort.
Mit der Nutzung der oben angegebenen Telefonnummer oder durch Klicken auf „Kontaktieren“ akzeptierst Du die Allgemeinen Nutzungsbedingungen, denen Du jederzeit widersprechen kannst. Weitere Informationen zum Datenschutz

Über den Anbieter

Kärtner Straße 39/Annagasse 1, 1010 WIEN
partner badge
Partnerschaft
Frau Sonja MachoDein Kontakt
Online-ID: 267ETF9JR89W
Referenznummer: OBGC202603052010019070677bbcd16
Decus Immobilien GmbH
Decus Immobilien GmbH
Bewertung: 4,5 von 5 Sternen
Mit einer persönlichen Nachricht hast du bessere Chancen auf eine Antwort.
Mit der Nutzung der oben angegebenen Telefonnummer oder durch Klicken auf „Kontaktieren“ akzeptierst Du die Allgemeinen Nutzungsbedingungen, denen Du jederzeit widersprechen kannst. Weitere Informationen zum Datenschutz
MediumRectangleTop
MediumRectangleBottom
MediumRectangleTop
Wie zufrieden bist du mit dieser Seite (nicht mit der Immobilie selbst)?