Version: 8.25.1Navigation überspringen
11,50 €
3 Zimmer
Immowelt logo

Büro zur Miete • provisionsfrei
11,50 €
/m²
3 Zimmer

MODERN, INDIVIDUELL und STILVOLL

Vermietet wird eine modern und lichtdurchflutete Gewerbeeinheit. 2014 erfolgte eine umfassende Modernisierung der Einheit.

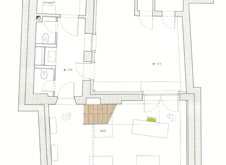
Erdgeschoss:
. ca. 66 qm
. 1 x Empfang
. 1 x Büroeinheit/Verkauf
. 1 x Damen - WC
. 1 x Herren - WC
. 1 x Lager

Dachgeschoss:
. ca. 68 qm
. 1 x Büroeinheit/
. 1 x Aufenthalt inkl. Küchenzeile

Aussenbereich:
. Hinterhof

Merkmale

  • voll erschlossen
  • Einbauküche
  • Bodenbelag: Parkett
  • Terrasse
  • Stellplatz
  • Kabelanschluss
. modern gestaltete Einheit
. großzügig und helle Räume
. Glastrennwand
. Cat7-Netzwerkverkabelung, Bodentanks
. Wändflächen teilweise aus Lehmputz
. Farbanstrich weiß
. Parkettbelag
. Fußbodenheizung
. Pendelleuchten
. Porzellan - Steckdosen und Schalter im
Retro Design
. Küchenzeile
. Stahltreppe mit Holzbelag
. Vorderhaus - Dachflächenfenster
mit Verschattungselementen
. Vorderhaus - Dachhaut aus
Biberschwanzziegel, Aufsparrendämmung
. Schaufensterfront

Grundrisse

Grundrisse
1 / 3

Realisiere Dein Projekt

Bausubstanz und Energie

Energieausweis

Endenergieverbrauch (Wärme)

Endenergieverbrauch (Strom)

  • Baujahr1920
  • Zustand der ImmobilieMassivhaus, neuwertig
  • HeizungsartZentralheizung: Fußbodenheizung
  • EnergieträgerGas
Immowelt logo

Mietkosten

Warmmiete
2.024 €
Nettomiete
11,50 €/m²
1.622 €
Nebenkosten
402 €
Heizkosten
in Warmmiete enthalten
Provision für Mieter
provisionsfrei; prov.frei
Kaution
4866 €
Weitere Preisinformationen
Nettokaltmiete: 1.622,00 EUR

Lage

address-icon
Taucha (04425)
Der Anbieter hat die genaue Adresse nicht freigegeben
Anbindung, ca. Angaben:
- 150 m ÖPNV-Bus, Fußweg 7 Minute
- 1,3 km S-Bahn, Fußweg 18 Minuten mit Busverbindung 9 Minuten
- 750 m Straßenbahn, Fußweg 11 Minuten mit Busverbindung 4 Minuten
- 2,6 km Anschlussstelle Leipzig-Nordost - A14, PKW-Fahrzeit 7 Minuten
- 11,2 km Zentrum Leipzig, PKW-Fahrzeit 24 Minuten, ÖPNV 33 Minuten
- 7,9 km BMW-Werk, PKW-Fahrzeit, 14 Minuten
- 22 km Flughafen Leipzig/Halle, PKW-Fahrzeit 21 Minuten

Weitere Informationen

Sonstiges Anmerkung: Die von uns gemachten Angaben haben wir nach bestem Wissen und Gewissen nach Informationen des Vermieters und den uns übergebenen Informationen zusammengestellt. Die angegebenen Flächenangaben sind mit größter Sorgfalt recherchiert, erheben jedoch keinerlei Anspruch auf Alleingültigkeit und werden lediglich unverbindlich zu Informationszwecken zur Verfügung gestellt. Eine Gewähr für diese Angaben können wir nicht übernehmen. Wichtige Zahlen und Informationen sind am Objekt zu überprüfen. Zwischenvermietung bleibt vorbehalten.

Verbraucherinformationen - https://schicketanz.de/datenschutzerklaerung/ Stichworte Stellplatz vorhanden, Gesamtfläche: 134,00 m², Bundesland: Sachsen, modernisiert: 2014

Weitere Services

Lust auf eine Besichtigung?
Eine Frage zur Immobilie?
Mit einer persönlichen Nachricht hast du bessere Chancen auf eine Antwort.
Mit der Nutzung der oben angegebenen Telefonnummer oder durch Klicken auf „Kontaktieren“ akzeptierst Du die Allgemeinen Nutzungsbedingungen, denen Du jederzeit widersprechen kannst. Weitere Informationen zum Datenschutz

Über den Anbieter

Friedrich-Engels-Str. 24 b, 04425 Taucha
partner badge
Partnerschaft
Herr Andrè LajosfalviDein Kontakt
Online-ID: 254KW9ARBUZV
Referenznummer: 2024-01342
Schicketanz & Lajosfalvi Immobilien GbR
Schicketanz & Lajosfalvi Immobilien GbR
Mit einer persönlichen Nachricht hast du bessere Chancen auf eine Antwort.
Mit der Nutzung der oben angegebenen Telefonnummer oder durch Klicken auf „Kontaktieren“ akzeptierst Du die Allgemeinen Nutzungsbedingungen, denen Du jederzeit widersprechen kannst. Weitere Informationen zum Datenschutz
Wie zufrieden bist du mit dieser Seite (nicht mit der Immobilie selbst)?