

Bürofläche zum Kauf1250000 €
1250000 €
Gewerbeimmobilie - Verkehrsgünstige Lage, sichtbar und gepflegt
Merkmale
- Bezug: sofort
- Kein Keller
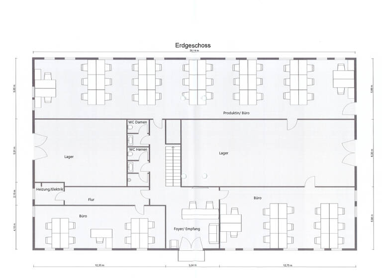
Grundrisse
Grundrisse
1 / 2
Realisiere Dein Projekt
Bausubstanz und Energie
Energieausweis
Endenergieverbrauch (Wärme)
Endenergieverbrauch (Strom)
- Baujahr1991
- Zustand der ImmobilieGepflegt
Preisdetails
Kaufpreis
1250000 €
Provision für Käufer
Bitte beachte, das Angebot kann bei Vertragsabschluss die Zahlung einer Provision beinhalten. Weitere Informationen erhältst Du vom Anbieter.
Geschätzte Gesamtkosten
1.250.000 €1
Kaufpreis
1.250.000 €
1Der angezeigte Wert ist eine automatisch berechnete Schätzung von immowelt.
Lage

Jever (26441)
Der Anbieter hat die genaue Adresse nicht freigegeben
Weitere Informationen
Weitere Services
Lust auf eine Besichtigung?
Eine Frage zur Immobilie?
Über den Anbieter
Volksbank Jade-Weser Immobilien GmbHMaklerbüro
Bürgermeister-Heidenreich-Str. 5, 26316 Varel
10 Jahre Partnerschaft + Diamond Partner
Frau Silke GräßnerDein Kontakt
Online-ID: 2lbgr5h
Referenznummer: 9342

Volksbank Jade-Weser Immobilien GmbH
Wie zufrieden bist du mit dieser Seite (nicht mit der Immobilie selbst)?

