Wohnen mit Ausblick ** Traumhaftes EFH inkl. Grundstück**
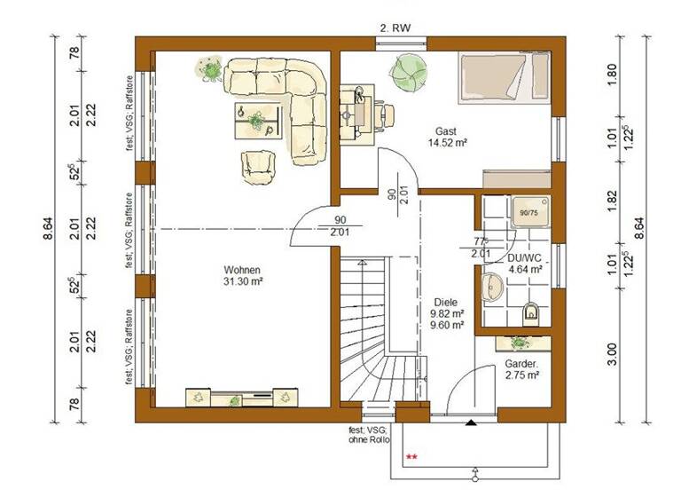
Ein kompaktes und modernes Haus mit tollem Raumprogramm Das flache Satteldach mit hohem Kniestock schenkt diesem beliebten Einfamilienhaus eine großzügige und attraktive Atmosphäre. Der mehr als 30 m² große Wohnbereich sowie der mehr als 30 m² große Ess- und Kochbereich werden für die ganze Familie zu sehr geräumigen Wohlfühlbereichen. Zwei große Kinderzimmer, das Elternschlafzimmer und das gemeinsame Familienbad schaffen bei dieser Dachgeschosslösung viel Platz.
Verschiedene Grundrissvarianten und Architekturelemente sind möglich. Sprechen Sie bitte mit Ihrem Fachberater.
Merkmale
Bezug: ab sofort
400 m² Grundstück
Keller
Gäste-WC
Fernblick
Bodenbelag: Laminat
Die vorgestellte Projektierung umfasst Leistungen entsprechend der Bau- und Leistungsbeschreibung CONCEPT als Grundlage für die weitere Planung und Kalkulation. In definierten Ausbaustufen werden hier umfangreiche Leistungen dargestellt - übersichtlich und transparent. Treffen Sie Ihre ganz persönliche Wahl: vom Ausbauhaus über technikfertige oder fast fertige Ausstattung bis zum schlüsselfertigen Haus. Alles in bewährter RENSCH-HAUS Qualität:
? Kostenfreie Bedarfsanalyse durch unsere qualifizierten Fachberater
? Planungs- und Ingenieurleistungen (u.a. Statik, Nachweise für die Beantragung von Fördermitteln)
? Ausstattungswelt mit großer Auswahl u.a. an Sanitärobjekten, Fliesen und Bodenbelägen von deutschen Markenherstellern
? Produktion ausschließlich in Deutschland
? Handwerkstradition aus Überzeugung - als Familienunternehmen seit über 145 Jahren in fünfter Generation
? Lieferung und Montage (u.a. Transport, Kran, Gerüst, Baustellen-WC)
? Effizienzhaus 40 - serienmäßig mit unserem Heiz- und Lüftungssystem (Frischluft-Wärmetechnik); eine Nachhaltigkeitszertifizierung nach QNG bieten wir Ihnen gerne an
? Sommerlicher Hitzeschutz durch hohe Speicherfähigkeit der Konstruktion
? Diffusionsoffene Außenwand, gefertigt aus natürlichen Rohstoffen
? Gemeinsame Hausabnahme und Schlüsselübergabe zusammen mit unseren Bauherren
? Alles aus einer Hand. Auf Wunsch mit Baunebengewerken (Keller, Fundamentplatte, Carport, Garage)
? 30 Jahre Garantie auf die Tragkonstruktion und fünf Jahre Gewährleistung mit kostenfreiem Kundendienst
Überzeugen Sie sich selbst. Sprechen Sie mit uns.
Grundrisse
Grundrisse
1 / 3
Realisiere Dein Projekt
Bausubstanz und Energie
Der Anbieter hat keine Informationen zum Energieverbrauch bereit gestellt.
Baujahr2026
Zustand der ImmobilieProjektiert
HaustypKfW 40
HeizungsartFußbodenheizung
EnergieträgerLuft-/Wasser-Wärmepumpe
Preisdetails
Kaufpreis
787000 €787.000 €
4.471,59 €/m²
Provision für Käufer
Bitte beachte, das Angebot kann bei Vertragsabschluss die Zahlung einer Provision beinhalten. Weitere Informationen erhältst Du vom Anbieter.
Geschätzte Gesamtkosten
870.186 €1
Kaufpreis
787.000 €
Kaufnebenkosten
83.186 €
2
Notarkosten (1,5%)
11.805 €
Grunderwerbsteuer (5%)
39.350 €
Provision für Käufer (3,57%)
28.096 €
Grundbucheintrag (0,5%)
3.935 €
1Der angezeigte Wert ist eine automatisch berechnete Schätzung von immowelt.
2Bei den Angaben handelt es sich um ortsübliche Werte. Individuelle Kosten können abweichen.
Lage
Hauingen, Lörrach (79541)
Der Anbieter hat die genaue Adresse nicht freigegeben
Traumhafte und einzigartige Hanglage mit einem phänomenalen Fernblick
Weitere Informationen
Sonstiges
Die dargestellte Projektierung umfasst Haus, Fundamentplatte und Grundstück. Der Entwurf lässt sich, basierend auf Ihren Ideen, in Größe, Kubatur und Ausstattung frei gestalten und auf Ihre persönlichen Bedürfnisse anpassen. Vertrauen Sie auf RENSCH-HAUS als renommierten Baupartner mit über 145 Jahren Bauerfahrung. Profitieren Sie von einer Festpreisgarantie, einem Ansprechpartner für alle vertraglich vereinbarten Bauleistungen (alles aus einer Hand) und einer kurzen Bauzeit. Darüber hinaus bieten wir Ihnen gerne auch Gewerke wie Keller, Fundamentplatte, Garage, Carport oder eine passende Küche an. Ein bedarfsbasierter Energieausweis wird nach abgeschlossener Planung sowie der Wahl eines Heiz- und Lüftungssystems erstellt. Dessen Übergabe erfolgt nach Fertigstellung des Projektes an die Bauherren. Abbildungen zeigen teilweise Sonderausstattungen, die gegen Mehrpreis erhältlich sind. Kauf- und Baunebenkosten sind nicht Bestandteil des ausgewiesenen Preises. Angaben zum Grundstück basieren auf Angaben des Eigentümers. Alle Angaben freibleibend, vorbehaltlich Zwischenverkauf.
Direkter Kontakt - https://www.rensch-haus.com/standorte/musterhaus-schwarzwald-3
Stichworte
Nutzfläche: 189,00 m², Anzahl der Schlafzimmer: 4, Anzahl der Badezimmer: 1, 3 Etagen, Lage im Wohngebiet