Version: 8.25.1Navigation überspringen
620.000 €
Immowelt logo

Grundstück zum Kauf
620000 €

Grundstück Moscenicka Draga, 2.175m2

Moscenicka Draga, gelegen an der atemberaubenden Riviera von Opatija, ist bekannt für ihre malerischen Strände, das kristallklare Meer und den mediterranen Charme, der Luxusurlauber aus aller Welt anzieht. Dieses exklusive Reiseziel bietet die perfekte Balance zwischen Privatsphäre und hervorragender Anbindung an die kulturellen, gastronomischen und touristischen Zentren der Region.
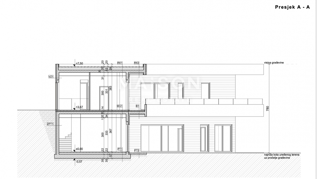
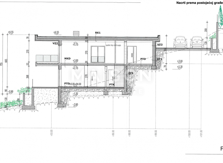
Zum Verkauf stehen zwei Baugrundstücke mit 966 m² und 957 m², jeweils mit erteilter Baugenehmigung und einem detaillierten Architekturprojekt für den Bau von zwei luxuriösen Villen mit Swimmingpools. Das Projekt sieht moderne Villen mit hohem Standard vor - ideal für exklusives privates Wohnen oder touristische Vermietung auf 5-Sterne-Niveau.
Jede Villa erstreckt sich über zwei Etagen mit einer Gesamtfläche von 272 m². Das Erdgeschoss (129 m²) umfasst eine Wellness-Zone mit Sauna, ein großzügiges Wohnzimmer mit offener Küche und Essbereich, ein Gäste-WC, Nebenräume sowie eine überdachte Terrasse. Im ersten Stock (142 m²) befinden sich vier geräumige Schlafzimmer, jeweils mit eigenem Bad en suite, die durch eine Außenloggia mit Panoramablick aufs Meer verbunden sind.
Dank hochwertiger Architektur und durchdachter Raumaufteilung sind die Villen mit Fußbodenheizung und Wärmepumpen ausgestattet, was das ganze Jahr über höchsten Wohnkomfort garantiert.
Dies ist eine seltene und außergewöhnliche Gelegenheit für Investoren, die sofort mit dem Bau beginnen möchten - ganz ohne langwierige Genehmigungsverfahren. Kontaktieren Sie uns noch heute für weitere Informationen und zur Vereinbarung eines Besichtigungstermins!

ID CODE: 248

Grundrisse

Grundrisse
1 / 3

Realisiere Dein Projekt

Bausubstanz und Energie

Möchtest du Details zum Energieverbrauch?info_energy_calculation-icon
Immowelt logo

Preisdetails

Kaufpreis
620000 €
Provision für Käufer
Bitte beachte, das Angebot kann bei Vertragsabschluss die Zahlung einer Provision beinhalten. Weitere Informationen erhältst Du vom Anbieter.

Lage

address-icon
Moscenicka Draga (51417)
Der Anbieter hat die genaue Adresse nicht freigegeben

Weitere Informationen

Stichworte Gesamtfläche: 2.175,00 m², Stadtzentrumslage

Weitere Services

Lust auf eine Besichtigung?
Eine Frage zur Immobilie?
Nachricht hinzufügen
Mit der Nutzung der oben angegebenen Telefonnummer oder durch Klicken auf „Kontaktieren“ akzeptierst Du die Allgemeinen Nutzungsbedingungen, denen Du jederzeit widersprechen kannst. Weitere Informationen zum Datenschutz

Über den Anbieter

Prilaz Kikova 4, 52220 LABIN
partner badge
Partnerschaft
Luka JelicDein Kontakt
Online-ID: 25XDGBEFTE7E
Referenznummer: 3095-248
LABIN d.o.o.
Nachricht hinzufügen
Mit der Nutzung der oben angegebenen Telefonnummer oder durch Klicken auf „Kontaktieren“ akzeptierst Du die Allgemeinen Nutzungsbedingungen, denen Du jederzeit widersprechen kannst. Weitere Informationen zum Datenschutz
Wie zufrieden bist du mit dieser Seite (nicht mit der Immobilie selbst)?