

Wohnung zum Kauf - Erstbezug324900 €5.664 €/m²3 Zimmer • 57,4 m²
324900 €
5.664 €/m²
3 Zimmer • 57,4 m²
Modern & Charmant | 3 Zimmer DG - Wohnung | Balkon | 40m² großer privater Garten! FREIER MIETZINS
Merkmale
- Bezug: sofort
- Dachgeschoss
- Personenaufzug
- Balkon
- Terrasse
- Barrierefrei
- Bad mit Dusche
- Bodenbelag: Fliesen, Parkett
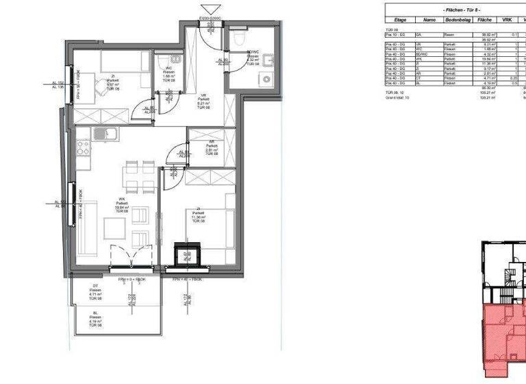
Grundrisse
Grundrisse
1 / 1
Realisiere Dein Projekt
Bausubstanz und Energie
Heizwärmebedarf (HWB)
B
Gesamtenergieeffizienz (fGEE)
A
- Zustand der ImmobilieNeubau, Erstbezug
- HeizungsartFuĂźbodenheizung
- EnergieträgerLuft-/Wasser-Wärmepumpe
Preisdetails
Kaufpreis
324900 €
5.664,23 €/m²
Provision für Käufer
3% des Kaufpreises zzgl. 20% USt.
Lage

Wien (1230)
Weitere Informationen
Weitere Services
Lust auf eine Besichtigung?
Eine Frage zur Immobilie?
Ăśber den Anbieter
Online-ID: 2nv2u5c
Referenznummer: OBGC20260202191927222004f4ae746
IMMO METER Immobilieninvest GmbH
Wie zufrieden bist du mit dieser Seite (nicht mit der Immobilie selbst)?

