Version: 8.24.0Navigation überspringen
365.000 €
4 Zimmer  •  1. Geschoss
Immowelt logo

Wohnung zum Kauf
365000 €
4 Zimmer  •  1. Geschoss

MURTER, 3-ZIMMER-WOHNUNG - 92,40m² MIT 2 TERRASSEN, PARKPLATZ, 400M VOM ZENTRUM ENTFERNT

English Translation:

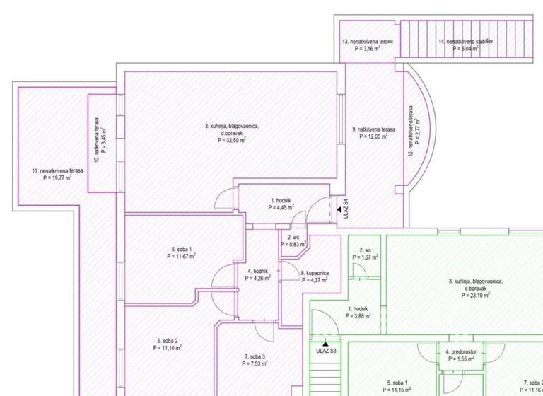
For sale is a three-bedroom apartment on the 1st floor with an area of 92.40m², located in a well-maintained house with 4 apartments. The house features an insulated facade. The apartment is 400m from the center of Murter and all essential amenities. It includes 1 parking space.

The apartment consists of an entrance hallway, a toilet, a fully equipped kitchen with a dining area and direct access to a terrace with an unobstructed view of greenery and the sea. The living area is adjacent to the kitchen and dining area and has direct access to the second terrace. The apartment has three large bedrooms and a bathroom with a shower.

The apartment is equipped with central heating, air conditioning, and PVC windows.

German Translation:

Zum Verkauf steht eine Dreizimmerwohnung im 1. Stock mit einer Fläche von 92,40m², gelegen in einem gepflegten Haus mit 4 Wohnungen. Das Haus verfügt über eine isolierte Fassade. Die Wohnung liegt 400m vom Zentrum von Murter und allen wichtigen Annehmlichkeiten entfernt. Zur Wohnung gehört 1 Parkplatz.

Die Wohnung besteht aus einem Eingangsflur, einer Toilette, einer voll ausgestatteten Küche mit Essbereich und direktem Zugang zu einer Terrasse mit unverbautem Blick auf Grünflächen und das Meer. Der Wohnbereich schließt sich an die Küche und den Essbereich an und hat direkten Zugang zur zweiten Terrasse. Die Wohnung verfügt über drei große Schlafzimmer und ein Badezimmer mit Duschkabine.

Die Wohnung ist mit Zentralheizung, Klimaanlage und PVC-Fenstern ausgestattet.



ID CODE: 48

Merkmale

  • 1. Geschoss

Grundrisse

Grundrisse
1 / 2

Realisiere Dein Projekt

Bausubstanz und Energie

Der Anbieter hat keine Informationen zu Energieverbrauch oder Zustand der Immobilie bereit gestellt.
Immowelt logo

Preisdetails

Kaufpreis
365000 €
Provision für Käufer
Bitte beachte, das Angebot kann bei Vertragsabschluss die Zahlung einer Provision beinhalten. Weitere Informationen erhältst Du vom Anbieter.

Lage

address-icon
Murter (22243)
Der Anbieter hat die genaue Adresse nicht freigegeben

Weitere Informationen

Stichworte Gesamtfläche: 92,00 m², Anzahl der Schlafzimmer: 3, Anzahl der Badezimmer: 1, Anzahl der separaten WCs: 1, Anzahl der Wohn-Schlafzimmer: 1, 1 Etagen, Stadtzentrumslage

Weitere Services

Lust auf eine Besichtigung?
Eine Frage zur Immobilie?
Nachricht hinzufügen
Mit der Nutzung der oben angegebenen Telefonnummer oder durch Klicken auf „Kontaktieren“ akzeptierst Du die Allgemeinen Nutzungsbedingungen, denen Du jederzeit widersprechen kannst. Weitere Informationen zum Datenschutz

Über den Anbieter

LABIN d.o.o.Maklerbüro
Prilaz Kikova 4, 52220 LABIN
partner badge
Partnerschaft
Andro JakolisDein Kontakt
Online-ID: 2nv2j5l
Referenznummer: 4565-48
LABIN d.o.o.
Nachricht hinzufügen
Mit der Nutzung der oben angegebenen Telefonnummer oder durch Klicken auf „Kontaktieren“ akzeptierst Du die Allgemeinen Nutzungsbedingungen, denen Du jederzeit widersprechen kannst. Weitere Informationen zum Datenschutz
Wie zufrieden bist du mit dieser Seite (nicht mit der Immobilie selbst)?