Version: 8.24.0Navigation überspringen
565.000 €
5 Zimmer  •  136 m²  •  585 m² Grundstück
Immowelt logo

Einfamilienhaus zum Kauf • provisionsfrei
565000 €
4.154 €/m²
5 Zimmer  •  136 m²  •  585 m² Grundstück

Attraktives Baugrundstück in Buchholz: Ihre Chance auf Ihr Traumprojekt

Das Grundstück befindet sich in einer ruhigen und familienfreundlichen Umgebung von Buchholz. Die Nachbarschaft zeichnet sich durch eine harmonische Mischung aus Natur und städtischem Komfort aus. Einkaufsmöglichkeiten, Schulen und Freizeiteinrichtungen sind bequem erreichbar, während die umliegende Natur zu Spaziergängen und Erholung einlädt.

Dieses Baugrundstück bietet Ihnen die seltene Gelegenheit, Ihr persönliches Wohnprojekt zu realisieren. Nutzen Sie die Chance, Ihre Wohnträume nach Ihren Vorstellungen zu gestalten.

Das Grundstück ist voll erschlossen und verfügt über alle notwendigen Anschlüsse wie Wasser, Strom und Abwasser. Die Errichtung eines Einfamilienhauses ist möglich. Eine individuelle Planung kann in Absprache mit den zuständigen Behörden erfolgen. Besonders hervorzuheben ist die ruhige und naturnahe Lage, die gute Anbindung an öffentliche Verkehrsmittel und die Autobahn sowie die vielfältigen Freizeitmöglichkeiten in der Umgebung. Buchholz bietet eine hohe Lebensqualität in einer wachsenden Gemeinde.

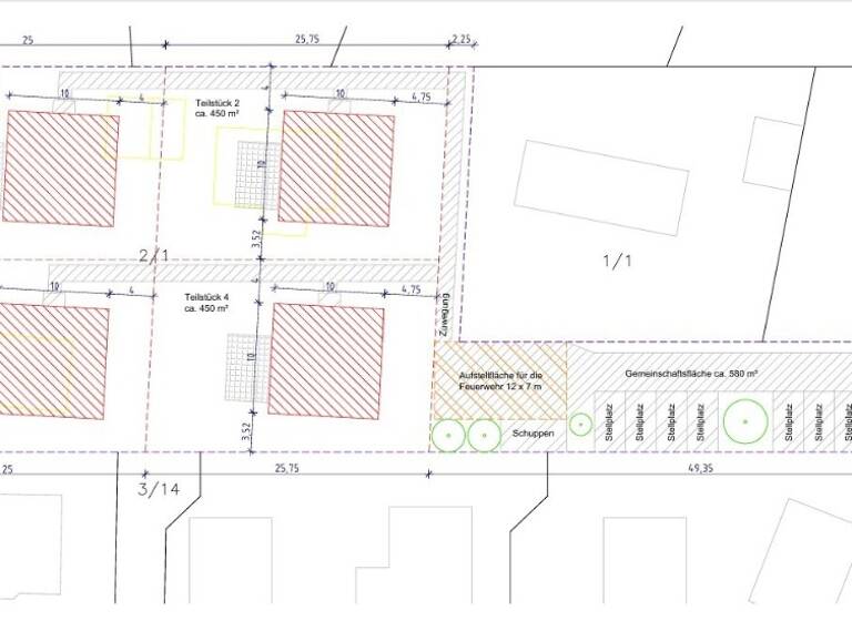
Zum aktuellen Zeitpunkt steht noch mittig auf dem Grundstück ein Altbestand. Das Haus befindet sich in einem Zustand, der eine Sanierung ausschließt. Vor einer Neubebauung muss entsprechend ein Abriss erfolgen.

Für weitere Informationen oder zur Vereinbarung eines Besichtigungstermins stehen wir Ihnen gerne zur Verfügung. Kontaktieren Sie uns noch heute, um mehr über dieses attraktive Angebot zu erfahren.

Wir freuen uns darauf, Ihnen bei der Verwirklichung Ihres Traumhauses in Buchholz behilflich zu sein.

Merkmale

  • 585 m² Grundstück

Grundrisse

Grundrisse
1 / 3

Realisiere Dein Projekt

Bausubstanz und Energie

Der Anbieter hat keine Informationen zum Energieverbrauch bereit gestellt.
  • Baujahr2026
Immowelt logo

Preisdetails

Kaufpreis
565000 €
4.154,41 €/m²
Provision für Käufer
provisionsfrei; Die Courtage ist bereits im Kaufpreis inkludiert
Geschätzte Gesamtkosten
604.550 €1
Kaufpreis
565.000 €
Notarkosten (1,5%)
8.475 €
Grunderwerbsteuer (5%)
28.250 €
Grundbucheintrag (0,5%)
2.825 €
1Der angezeigte Wert ist eine automatisch berechnete Schätzung von immowelt.
2Bei den Angaben handelt es sich um ortsübliche Werte. Individuelle Kosten können abweichen.

Lage

address-icon
BuchholzBuchholz in der Nordheide (21244)
Der Anbieter hat die genaue Adresse nicht freigegeben
Buchholz in der Nordheide, mit etwa 40.000 Einwohnern, ist die größte Stadt und nach Seevetal die zweitgrößte Gemeinde im Landkreis Harburg. Die Stadt liegt ungefähr 20 km südlich von Hamburg, etwa 120 km von Hannover und rund 80 km nordöstlich von Bremen.

In Buchholz gibt es sechs Grundschulen, eine Oberschule, zwei Schulzentren mit weiterführenden Schulen (Gymnasium, Realschule), eine berufsbildende Schule (BBS), eine integrative Gesamtschule (IGS), eine Förderschule sowie eine Kreisvolkshochschule (KVH). Darüber hinaus sind in der Kernstadt zahlreiche Weiterbildungszentren, wie die Grone Schule, ansässig.

In unmittelbarer Nähe befinden sich vier Kindergärten, die Grundschule Steinbeck, die Wiesen- und die Waldschule sowie die Grone-Schulen. Die Gesamtschule ist etwa drei Kilometer entfernt, ebenso wie die Schwimmhalle und das Freibad. Die Innenstadt von Buchholz, mit einer Vielzahl an Einkaufsmöglichkeiten, Restaurants, Bars, verschiedenen Fachärzten und Apotheken, ist etwa 2,2 Kilometer entfernt. Eine Bushaltestelle liegt nur etwa zwei Gehminuten von der zum Kauf angebotenen Immobilie entfernt, und mehrere Buslinien verkehren hier im Halbstundentakt.

Weitere Informationen

Stichworte Bundesland: Niedersachsen

Weitere Services

Lust auf eine Besichtigung?
Eine Frage zur Immobilie?
Nachricht hinzufügen
Mit der Nutzung der oben angegebenen Telefonnummer oder durch Klicken auf „Kontaktieren“ akzeptierst Du die Allgemeinen Nutzungsbedingungen, denen Du jederzeit widersprechen kannst. Weitere Informationen zum Datenschutz

Über den Anbieter

PERFECTUM
PERFECTUMMaklerbüro
Liliencronstraße 25, 21629 Neu Wulmstorf
partner badge
Partnerschaft
Herr Jens JacobDein Kontakt
Online-ID: 2lc7e5p
Referenznummer: P-029-H1
PERFECTUM
PERFECTUM
Bewertung: 4,2 von 5 Sternen
Nachricht hinzufügen
Mit der Nutzung der oben angegebenen Telefonnummer oder durch Klicken auf „Kontaktieren“ akzeptierst Du die Allgemeinen Nutzungsbedingungen, denen Du jederzeit widersprechen kannst. Weitere Informationen zum Datenschutz
Wie zufrieden bist du mit dieser Seite (nicht mit der Immobilie selbst)?