Version: 8.24.1Navigation überspringen
Schweidler Immobilien
420 €
2,5 Zimmer  •  52,3 m² Bürofläche

Bürofläche zur Miete
420 €
2,5 Zimmer  •  52,3 m² Bürofläche

Ihr Geschäft!!! Preiswerte EG-Gewerbefläche mit flexibler Nutzung in zentraler Lage von Röthenbach

Diese ebenerdige, helle und äußerst gepflegte Gewerbeeinheit mit einer Nutzfläche von ca. 52 m² bietet ideale Voraussetzungen für die Nutzung als Büro-, Dienstleistungs- oder Beautyfläche. Die durchdachte und funktionale Raumaufteilung ermöglicht eine flexible Gestaltung und lässt sich individuell an unterschiedliche Nutzungskonzepte anpassen.

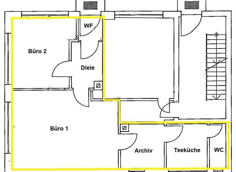
Die Einheit eignet sich sowohl als großzügiges 2-Zimmer-Büro als auch für die Einrichtung eines Kosmetik- oder Beautystudios. Ergänzt wird das Raumangebot durch ein kleines Durchgangszimmer, eine separate Teeküche sowie ein WC, wodurch eine klare Trennung von Arbeits-, Behandlungs- und Nebenflächen möglich ist.

Die ebenerdige Ausführung sorgt für eine komfortable Erreichbarkeit für Kunden, Klienten und Mitarbeiter, während die verkehrsgünstige Lage die Attraktivität des Standorts zusätzlich unterstreicht.

Überzeugen Sie sich im Rahmen einer unverbindlichen Besichtigung selbst von den vielseitigen Nutzungsmöglichkeiten dieser ansprechenden Gewerbefläche.

Merkmale

  • Bezug: nach Absprache möglich
  • Bodenbelag: Laminat
  • Beleuchtung: Deckenbeleuchtung
  • Fenster: Kunststoff

Grundrisse

Grundrisse
1 / 1

Realisiere Dein Projekt

Bausubstanz und Energie

Energieausweis

Endenergiebedarf (Wärme)

  • Baujahr1960
  • Zustand der ImmobilieMassivhaus, Gepflegt
  • HeizungsartZentralheizung
  • EnergieträgerGas
MediumRectangleTop

Mietkosten

Warmmiete
540 €
Nettomiete
420 €
Nebenkosten
120 €
Heizkosten
in Warmmiete enthalten
Provision für Mieter
3 MM (zzgl. MwSt)
Die Maklerprovision beträgt 3,57 Monatsmieten inkl. 19% MwSt. für den Mieter. Bei Verträgen mit einer Laufzeit von mehr als 5 Jahren beträgt die Provision 3,57% der 10-Jahresmiete inkl. 19% MwSt. Siehe Provisionshinweis.
Kaution
1260 €

Lage

address-icon
RöthenbachRöthenbach a. d. Pegnitz (90552)
Der Anbieter hat die genaue Adresse nicht freigegeben
Röthenbach an der Pegnitz ist eine Stadt mit rund 12.700 Einwohnern im Landkreis Nürnberger Land und zeichnet sich durch ihre gute Anbindung an den Wirtschaftsraum Nürnberg aus.

Die angebotene Gewerbefläche befindet sich in absolut verkehrsgünstiger Lage, direkt an der Ortsdurchgangsstraße, und profitiert somit von einer hohen Sichtbarkeit sowie regem Durchgangsverkehr. Das Autobahnkreuz Nürnberg ist in nur ca. 4 km erreichbar, die Nürnberger Innenstadt liegt etwa 13 km westlich und ist ebenfalls schnell zu erreichen.

Ein weiterer Standortvorteil sind die in unmittelbarer Nähe vorhandenen Parkmöglichkeiten sowie eine nahegelegene Bushaltestelle, die eine gute Erreichbarkeit für Kunden, Besucher und Mitarbeiter gewährleisten.

Weitere Informationen zur Stadt Röthenbach an der Pegnitz finden Sie unter www.roethenbach.de.

Weitere Services

Lust auf eine Besichtigung?
Eine Frage zur Immobilie?
Nachricht hinzufügen
Mit der Nutzung der oben angegebenen Telefonnummer oder durch Klicken auf „Kontaktieren“ akzeptierst Du die Allgemeinen Nutzungsbedingungen, denen Du jederzeit widersprechen kannst. Weitere Informationen zum Datenschutz

Über den Anbieter

Wäschgasse 5, 91207 Lauf
partner badge
Partnerschaft
Herr Jörg Ulrich
Herr Jörg UlrichDein Kontakt
Online-ID: 2ntx759
Referenznummer: N5498
Schweidler Immobilien
title
Schweidler Immobilien
Bewertung: 4,7 von 5 Sternen
Nachricht hinzufügen
Mit der Nutzung der oben angegebenen Telefonnummer oder durch Klicken auf „Kontaktieren“ akzeptierst Du die Allgemeinen Nutzungsbedingungen, denen Du jederzeit widersprechen kannst. Weitere Informationen zum Datenschutz
MediumRectangleTop
MediumRectangleBottom
MediumRectangleTop
Wie zufrieden bist du mit dieser Seite (nicht mit der Immobilie selbst)?