Stilvoller Winkelbungalow: Ihr perfektes Zuhause mr
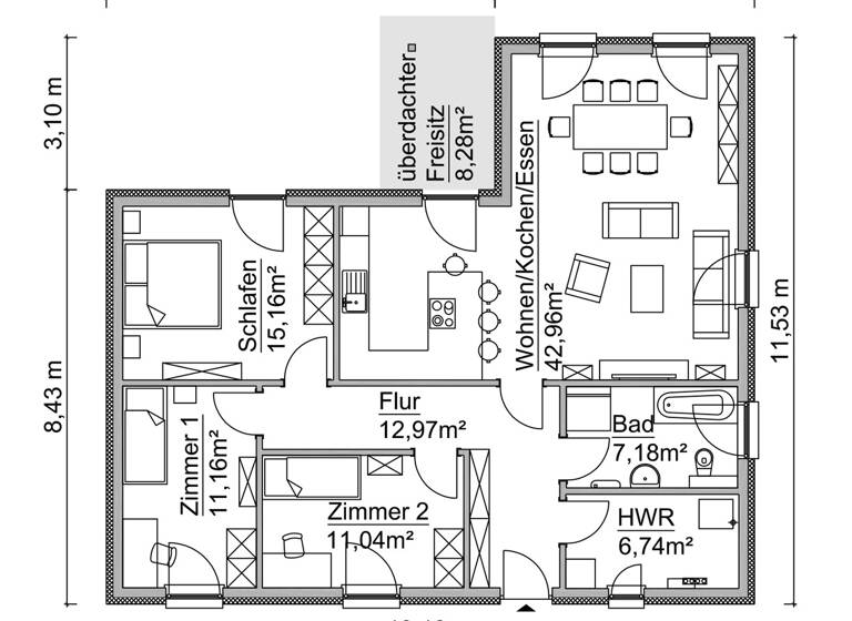
Die Variante B des SH 115 WB XXL bietet im Vergleich zur Variante A eine überdachte Freifläche, die zusätzlichen Komfort bietet. Während die Anordnung der fünf Zimmer in beiden Varianten grundlegend unterschiedlich ist, lohnt es sich, beide Grundrisse genau zu vergleichen. Gemeinsam haben sie den geschützten Hauseingang und das beliebte Gäste-WC – alles auf großzügigen 127 m² Wohnfläche.
Merkmale
Bezug: 2025
1 Geschoss
1.000 m² Grundstück
Grundrisse
Grundrisse
1 / 4
Realisiere Dein Projekt
Bausubstanz und Energie
Der Anbieter hat keine Informationen zum Energieverbrauch bereit gestellt.
Baujahr2025
Zustand der ImmobilieFertighaus
HaustypKfW 40
HeizungsartFuĂźbodenheizung
EnergieträgerLuft-/Wasser-Wärmepumpe
Preisdetails
Kaufpreis
466000 €466.000 €
3.669,29 €/m²
Provision für Käufer
provisionsfrei
Geschätzte Gesamtkosten
505.610 €1
Kaufpreis
466.000 €
Kaufnebenkosten
39.610 €
2
Notarkosten (1,5%)
6.990 €
Grunderwerbsteuer (6,5%)
30.290 €
Grundbucheintrag (0,5%)
2.330 €
1Der angezeigte Wert ist eine automatisch berechnete Schätzung von immowelt.
2Bei den Angaben handelt es sich um ortsübliche Werte. Individuelle Kosten können abweichen.
Lage
Zossen (15806)
Der Anbieter hat die genaue Adresse nicht freigegeben
Zossen liegt etwa 40 km sĂĽdlich von Berlin und bietet eine ruhige Wohnlage mit guter Anbindung.
Mit der Regionalbahn erreichen Sie Berlin in 30-40 Minuten. Die Autobahnen A9 und A10 sind schnell erreichbar, was eine flexible Anbindung an Berlin und darüber hinaus ermöglicht.
In Zossen gibt es mehrere Kitas, Schulen, Supermärkte und Ärzte, die eine umfassende Versorgung sicherstellen.
Zossen verbindet ländlichen Charme mit schneller Anbindung an die Hauptstadt, ideal für Familien und Pendler.
Weitere Informationen
Was Scanhaus besonders macht
ScanHaus Marlow ist einer der führenden Anbieter von modernen und umweltfreundlichen Fertighäusern und baut im Jahr 650 bis 700 Häuser. Wir bieten Ihnen mehr als 70 attraktive Fertighaus-Haustypen in modernster Holzrahmenbauweise/Holzständerbauweise: schlüsselfertig, energieeffizient - in zertifizierter Qualität, Made in Germany.
Mit unseren über 50 Musterhäusern und Vertriebsbüros deutschlandweit, finden Sie garantiert einen Ansprechpartner in Ihrer Region. Wir beraten Sie gern zu allen Themen rund um den Hausbau und begleiten Sie bis zur Schlüsselübergabe zu Ihrem Traumhaus! Viele Themen zur Finanzierung Ihres Wohngebäudes, welche Versicherungen Sie zum Hausbau benötigen und weitere relevante Themen zum Bau eines Fertighauses finden Sie in unserem Hausbauratgeber. Lassen Sie sich von gebauten Beispielhäusern inspirieren und erkunden Sie unsere Website.
Einmalig - bei uns zahlen Sie erst, wenn Ihr Scanhaus steht und die SchlĂĽsselĂĽbergabe an Sie erfolgt ist.
GrundstĂĽck
Wichtiger Hinweis zum Preis:
Der angegebene Preis bezieht sich auf Haus und GrundstĂĽck. Das GrundstĂĽck ist provisionsfrei zu erwerben.
Kontakt
Melden Sie einfach bei Marion Rau,Ihrer Hausverkäuferin von ScanHaus Marlow.Sie begleitet Sie kompetent auf dem Weg zu Ihrem Traumhaus. Sie unterstützt bei der Hausplanung und bietet einen umfassenden Grundstücksservice. Für eine persönliche Beratung erreichen Sie sie unter 0163 43 77 305.
Stichworte
Energiestandard: Passivhaus, Niedrigenergie