

Doppelhaushälfte zum Kauf69900 €774 €/m²3 Zimmer • 90,3 m² • 1.010 m² Grundstück • frei ab sofort
69900 €
774 €/m²
3 Zimmer • 90,3 m² • 1.010 m² Grundstück • frei ab sofort
Kleines Haus - großer Garten!
Merkmale
- frei ab sofort
- 1.010 m² Grundstück
- voll erschlossen
- Keller
- Bodenbelag: Fliesen, Holzdielen, Teppich
- Garten
- Stellplatz
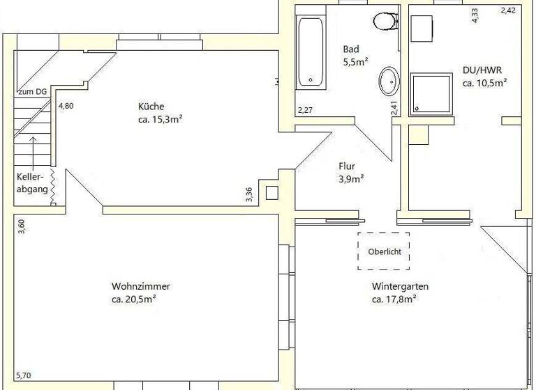
Grundrisse
Grundrisse
1 / 3
Realisiere Dein Projekt
Bausubstanz und Energie
H, Bj. 1930, Oel
H
- Baujahr1982
- Zustand der ImmobilieMassivhaus, renovierungsbedürftig / sanierungsbedürftig
- HeizungsartZentralheizung
- EnergieträgerÖl
Preisdetails
Kaufpreis
69900 €
774,09 €/m²
Provision für Käufer
2975 EUR inkl. MwSt.
Es besteht ein Maklerauftrag mit dem Verkäufer, mit Vereinbarung einer Maklerprovision in gleicher Höhe. (BGB §656c)
Es besteht ein Maklerauftrag mit dem Verkäufer, mit Vereinbarung einer Maklerprovision in gleicher Höhe. (BGB §656c)
Geschätzte Gesamtkosten
77.289 €1
Kaufpreis
69.900 €
Kaufnebenkosten
7.389 €
2Notarkosten (1,5%)
1.049 €
Grunderwerbsteuer (5%)
3.495 €
Provision für Käufer (3,57%)
2.495 €
Grundbucheintrag (0,5%)
350 €
1Der angezeigte Wert ist eine automatisch berechnete Schätzung von immowelt.
2Bei den Angaben handelt es sich um ortsübliche Werte. Individuelle Kosten können abweichen.
Lage

Haselbach (04617)
Der Anbieter hat die genaue Adresse nicht freigegeben
Weitere Informationen
Weitere Services
Lust auf eine Besichtigung?
Eine Frage zur Immobilie?
Über den Anbieter
Moritzstr. 4, 04600 Altenburg
Partnerschaft

Herr Michael TrommerDein Kontakt
Online-ID: 25I1YR8H6IWQ
Referenznummer: 0238


Trommer Immobilien
Wie zufrieden bist du mit dieser Seite (nicht mit der Immobilie selbst)?

