Wohnung zum Kauf • provisionsfrei • als Kapitalanlage geeignet
371530.5 €371.531 €
4.450 €/m²
3 Zimmer • 83,5 m²
****Neubau-Highlight in Jena-Nord (WE09) - Modernes Wohnen in bester Lage - EH55 Standard- Provisionsfrei ****
Das Mehrfamilienhaus mit Tiefgarage verfügt über 28 Wohneinheiten (2 - 4 Raumwohnungen) mit innovativen Grundrissen in verschiedenen Größen von ca. 44 m² bis 114 m².
Die Eigentumswohnungen verteilen sich auf das Erdgeschoss, 1. - 3.Obergeschoss und das Dachgeschoss. Über das Treppenhaus oder den Aufzug sind die einzelnen Wohnebenen perfekt erreichbar. Alle Wohnungen verfügen über einen Balkon, Loggia oder eine Terrasse. Auf dem Grundstück finden sich Abstellmöglichkeiten für Freizeit- und Nutzfahrräder sowie die Möglichkeit zum Laden von Elektro-Bikes.
Der Baubeginn ist Anfang 2026 geplant (ausgenommen sind jahreszeitlich abhängige Außenanlagengestaltungen).
Merkmale
Bezug: 2028
1. Geschoss
Haustiere erlaubt
offene Küche
Personenaufzug
Außen-Stellplatz, Tiefgarage
Balkon
Badezimmer: Bad mit Dusche, Bad mit Fenster
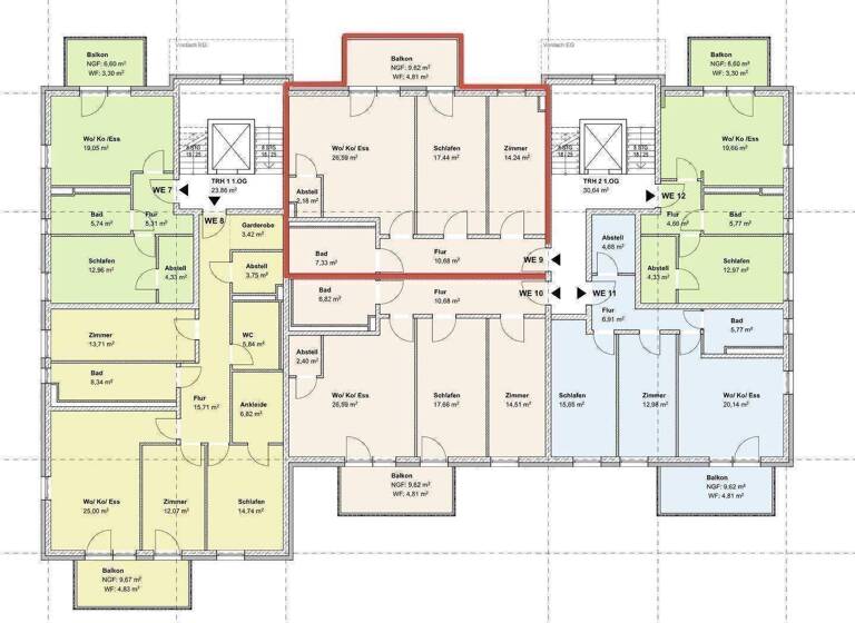
Grundrisse
Grundrisse
1 / 1
Realisiere Dein Projekt
Bausubstanz und Energie
Energieausweis
B
Baujahr2026
Zustand der ImmobilieNeubau
HaustypKfW 55
HeizungsartFußbodenheizung
EnergieträgerFernwärme
Preisdetails
Kaufpreis
371530.5 €371.530,50 €
4.450 €/m²
Provision für Käufer
provisionsfrei
Geschätzte Gesamtkosten
397.539 €1
Kaufpreis
371.531 €
Kaufnebenkosten
26.008 €
2
Notarkosten (1,5%)
5.573 €
Grunderwerbsteuer (5%)
18.577 €
Grundbucheintrag (0,5%)
1.858 €
1Der angezeigte Wert ist eine automatisch berechnete Schätzung von immowelt.
2Bei den Angaben handelt es sich um ortsübliche Werte. Individuelle Kosten können abweichen.
Lage
Zeitzer Straße 2, Löbstedt, Jena (07743)
Die Immobilie befindet sich im nördlichen Teil Jenas, in der Zeitzer-Straße 2, ehem. IHK-Gelände. Als traditionsreicher Wissenschaftsstandort mit international renommierten Forschungseinrichtungen, pulsierender Universitätsstadt und wachsendem Zentrum für Hightech-Unternehmen verbindet Jena auf einzigartige Weise Historie, Bildung und Innovation. Nur wenige Schritte vom Saaleufer entfernt entfaltet die Stadt ihr ganz besonderes Flair: kulturell lebendig, urban eingebettet in eine beeindruckende Naturkulisse, die dirkekt vor Ihrer Haustür erstreckt. Der städtische Nahverkehr ist in wenigen Gehminuten erreichbar, ebenso Kindergärten, Schulen und Versorger.
Weitere Informationen
Allgemein
Durch eine Anfrage stimmen Sie unseren Datenschutzvereinbarungen (https://www.tw-wohnbau.de/datenschutz/) zu und gestatten uns Sie zu kontaktieren.
Gerne können Sie uns auch außerhalb der Geschäftszeiten via E-Mail kontaktieren.