Version: 8.24.0Navigation ĂĽberspringen
16,50 €
325 m² Bürofläche
Immowelt logo

Bürofläche zur Miete • provisionsfrei
16,50 €
/m²
325 m² Bürofläche

Kennedydamm Düsseldorf I Neue Büroflächen am Markt I hochwertig & provisionsfrei

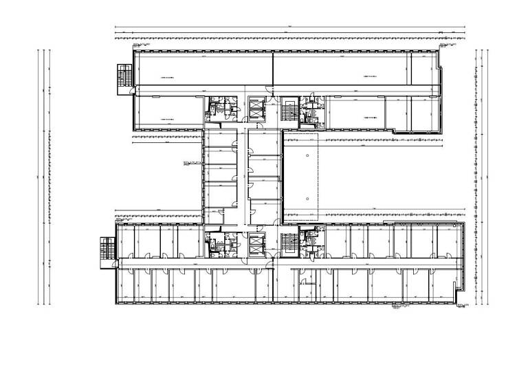
Das Gebäude hat eine H-förmige Struktur und besteht aus zwei parallelen Gebäudeteilen mit jeweils 4 bzw. 7 Obergeschossen und einem mittleren, 4-geschossigen Verbindungstrakt. Empfangen werden Nutzer wie Besucher in einer großzügigen und repräsentativen Eingangshalle. Die einzelnen Geschosse bieten dem Nutzer Möglichkeiten zur Realisierung unterschiedlicher Bürotypen ( Einzel-, gruppen- oder Großraumbüro ) in diversen Grundrisskombinationen.

Merkmale

  • Bezug: kurzfristig
  • 2. Geschoss
  • Personenaufzug
- 4 PersonenaufzĂĽge
- modern eingerichtete TeekĂĽche pro Mieteinheit
- flexible Flächenaufteilung
- auĂźenliegender elektrischer Sonnenschutz pro fensterachse ( auĂźer Nordseite )
- Hohlraumboden
- abgehängte Decken mit integrierter BAP-Beleuchtung

Grundrisse

Grundrisse
1 / 4

Realisiere Dein Projekt

Bausubstanz und Energie

Der Anbieter hat keine Informationen zum Energieverbrauch bereit gestellt.
  • Baujahr1997
Immowelt logo

Mietkosten

Monatliche Miete
16,50 €/m²
Provision fĂĽr Mieter
provisionsfrei
Kaution
keine Angabe

Lage

address-icon
Tersteegenstraße 28, Golzheim, Düsseldorf (40474)
In unmittelbarer Nähe befinden sich die Showrooms der verschiedensten internationalen Top-Designer. Namenhafte Hotels, vielfältigste Einkaufs- und Gastronomiemöglichkeiten ergänzen die Attraktivität dieses Standortes. Die U-Bahnhaltestelle der Linien U78 und U79 befindet sich in unmittelbarer Nähe. Die Bushaltestellen der Linien 729, 756 und 758 sind auf der nahgelegenen Theodor-Heuss-Brücke und ergänzen die sehr gute Verkehrsanbindung: in die City gelangt man sowohl mit PKW, als auch mit öffentlichen Verkehrsmitteln in weniger als 7 Minuten. Der Flughafen ist ca. 5 km entfernt.

Weitere Informationen

Stichworte Gesamtfläche: 325,00 m², Bundesland: Nordrhein-Westfalen, 6 Etagen

Weitere Services

Lust auf eine Besichtigung?
Eine Frage zur Immobilie?
Nachricht hinzufĂĽgen
Mit der Nutzung der oben angegebenen Telefonnummer oder durch Klicken auf „Kontaktieren“ akzeptierst Du die Allgemeinen Nutzungsbedingungen, denen Du jederzeit widersprechen kannst. Weitere Informationen zum Datenschutz

Ăśber den Anbieter

Hohe StraĂźe 8-10, 40213 DĂĽsseldorf
Herr Jens Reuther
Herr Jens ReutherDein Kontakt
Online-ID: 2hfb95m
Referenznummer: 1958_012
corealis Commercial Real Estate GmbH
title
corealis Commercial Real Estate GmbH
Bewertung: 3,8 von 5 Sternen
Nachricht hinzufĂĽgen
Mit der Nutzung der oben angegebenen Telefonnummer oder durch Klicken auf „Kontaktieren“ akzeptierst Du die Allgemeinen Nutzungsbedingungen, denen Du jederzeit widersprechen kannst. Weitere Informationen zum Datenschutz
Wie zufrieden bist du mit dieser Seite (nicht mit der Immobilie selbst)?