Version: 8.26.0Navigation überspringen
990.000 €
7 Zimmer  •  250 m²  •  800 m² Grundstück  •  frei ab sofort
Immowelt logo

Villa zum Kauf
990000 €
3.960 €/m²
7 Zimmer  •  250 m²  •  800 m² Grundstück  •  frei ab sofort

Villa indipendente con splendide terrazze panoramiche fronte lago

Freistehende Villa mit wunderschönen Panoramaterrassen zum See
Ref. 985
VALSOLDA in Seenähe
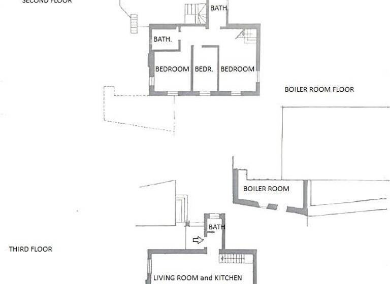
Freistehendes Haus mit ca. 250 m² Wohnfläche
Bestehend aus zwei Wohnungen mit ca. 150 m² und 100 m²
Große Garage für Autos, Motorräder und Fahrräder
Erste Wohnung: 3 Schlafzimmer + 2 Bäder + Gäste-WC
Zweite Wohnung: 3 Schlafzimmer + 2 Bäder + Gäste-WC
Gepflegter Keller (Spa-Bereich mit Whirlpool)
Terrassen mit herrlicher Aussicht
Außenbereich: 800 m²
Energieklasse G
Dieses wunderschöne, freistehende Haus mit Seeblick bietet atemberaubende Ausblicke und viel Platz zum Entspannen. Die einzigartige Immobilie besteht aus zwei separaten Wohnungen mit jeweils eigenem Eingang und separaten Etagen und ist somit ideal für Familien oder als lukrative Kapitalanlage. Der ebenerdige Eingang führt zu einer geräumigen, überdachten Garage, während eine Innentreppe die beiden Ebenen nahtlos verbindet.
Die erste Wohnung verfügt über ein großzügiges Wohnzimmer, eine moderne Küche und ein praktisches Gäste-WC. Mit drei komfortablen Schlafzimmern im Obergeschoss und zwei Badezimmern bietet diese Wohnung Komfort und Privatsphäre für alle. Treten Sie hinaus auf die große Terrasse, die sich perfekt zum Entspannen und Genießen des ruhigen Seeblicks eignet.

Die zweite Wohnung, die von Norden zugänglich ist, verfügt über ein einladendes Wohnzimmer, eine offene Küche und ein Gäste-WC. Im Obergeschoss befinden sich drei Schlafzimmer und zwei weitere Badezimmer, sodass ausreichend Platz für Gäste oder Familienmitglieder vorhanden ist.

Beide Wohnungen sind von wunderschön gepflegten Terrassen und einem üppigen, über 800 m² großen Garten umgeben, der viel Platz zum Entspannen im Freien bietet.
Das gesamte Anwesen wurde renoviert und ist wie auf dem Foto abgebildet möbliert (persönliche Gegenstände ausgenommen). Es ist ideal für alle, die in Lugano arbeiten, und eignet sich auch hervorragend als Ferienhaus oder als Kapitalanlage, da die Möglichkeit besteht, zwei separate Wohnungen zu errichten.
Renoviert und möbliert (persönliche Gegenstände ausgenommen) ist diese Immobilie nicht nur ästhetisch ansprechend, sondern auch praktisch und somit ideal für Pendler nach Lugano. Ob als Feriendomizil oder als Kapitalanlage für zwei Wohnungen – diese Immobilie erfüllt alle Wünsche. Mit insgesamt 300 m² Gewerbefläche und 250 m² Nutzfläche bietet dieses Objekt zehn Zimmer und vier Badezimmer.

Verpassen Sie nicht diese außergewöhnliche Gelegenheit, ein Stück Paradies am See zu besitzen!
Der Preis beträgt 990.000 Euro.

Merkmale

  • 800 m² Grundstück
  • Einbauküche, offene Küche
  • Garage, Duplex-Stellplatz
  • Balkon
  • Garten
  • Terrasse
  • Seeblick

Grundrisse

Grundrisse
1 / 2

Bausubstanz und Energie

Möchtest du Details zum Energieverbrauch?info_energy_calculation-icon
  • EnergieträgerGas
Immowelt logo

Preisdetails

Kaufpreis
990000 €
3.960 €/m²
Provision für Käufer
Bitte beachte, das Angebot beinhaltet bei Vertragsabschluss die Zahlung einer Provision. Weitere Informationen erhältst Du vom Anbieter.

Lage

address-icon
Valsolda
Der Anbieter hat die genaue Adresse nicht freigegeben

Weitere Services

Lust auf eine Besichtigung?
Eine Frage zur Immobilie?
Nachricht hinzufügen
Mit der Nutzung der oben angegebenen Telefonnummer oder durch Klicken auf „Kontaktieren“ akzeptierst Du die Allgemeinen Nutzungsbedingungen, denen Du jederzeit widersprechen kannst. Weitere Informationen zum Datenschutz

Über den Anbieter

Via Ramazzotti 20, 20900 MONZA
partner badge
3 Jahre Partnerschaft
Herr Borghi Luigi
Herr Borghi LuigiDein Kontakt
Online-ID: 25HMHSSG81C7
Referenznummer: 985
Wie zufrieden bist du mit dieser Seite (nicht mit der Immobilie selbst)?