Version: 8.24.0Navigation überspringen
499.990 €
14 Zimmer  •  635,4 m²  •  11.172 m² Grundstück
Immowelt logo

Villa zum Kauf • provisionsfrei
499990 €
787 €/m²
14 Zimmer  •  635,4 m²  •  11.172 m² Grundstück

Villa³ - Wohnen. Vermieten. Arbeiten.

Vielseitiges Immobilienensemble mit Villa, Mehrfamilienhaus und Hallen - Wohnen, Vermieten & Arbeiten auf einem Grundstück

Dieses großzügige Immobilienensemble in Guben bietet eine seltene Kombination aus stilvollem Wohnen, solider Vermietbarkeit und umfangreichen Gewerbemöglichkeiten.

Das parkähnliche Grundstück umfasst eine repräsentative Stadtvilla mit drei Etagen und insgesamt ca. 14 Zimmern, ein voll unterkellertes Mehrfamilienhaus mit rund 395?m² Wohnfläche und ca. 23 Zimmern sowie mehrere Hallen mit vielseitigen Nutzungsmöglichkeiten.

Die Villa wurde in den letzten Jahren fortlaufend modernisiert (Dach, Fenster, Heizung, Bäder) und überzeugt durch charmante Details wie Dielenböden, Balkone, Terrasse und moderne Bäder. Sie eignet sich sowohl zur Eigennutzung als auch zur gehobenen Vermietung.

Die drei Gewerbeeinheiten - darunter zwei Hallen mit ca. 450?m² und ca. 730?m² sowie eine Werkstatt mit Nebenräumen - bieten ideale Voraussetzungen für Lager, Werkstatt, Fuhrpark oder Kombinationen aus Produktion und Verwaltung. Zusätzlich stehen insgesamt 19 Garagen sowie ein großer Innenhof zur Verfügung.

Eine ideale Immobilie für Kapitalanleger, Selbstnutzer mit Gewerbeanspruch oder Projektentwickler, die ein vielseitig nutzbares Objekt mit Substanz und Potenzial suchen.

Merkmale

  • Bezug: sofort
  • 11.172 m² Grundstück
  • Keller
  • Gäste-WC
  • Balkon
Villa - Haupthaus
Erdgeschoss (Wohnung 1):
+ Hausflur
+ Waschküche mit 2 Abstellräumen
+ Flur mit separatem Seiteneingang
+ 5 Zimmer
+ Badezimmer
+ Original-Dielenböden

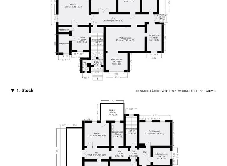
Obergeschoss (Wohnung 2):
+ Hausflur
+ 5 Zimmer
+ Wohnzimmer mit Balkon
+ Küche mit Balkon und Einbauküche (BJ ca. 2021)
+ Badezimmer mit Fenster, Dusche und Whirlpool-Badewanne
+ Terrasse

Dachgeschoss:
+ 5 Zimmer - vielseitig nutzbar (z.?B. Büro, Gäste, Hobby)

Technik & Ausstattung Villa:
+ Fenster erneuert bis ca. 2006
+ Heizung (Buderus) 2025 komplett überholt
+ Dacherneuerung ca. 2018
+ Badezimmer modernisiert ca. 2017/18
+ Lastenaufzug im Flur (Handarbeit)

Mehrfamilienhaus (Nebengebäude)
+ Wohnfläche: ca. 395?m²
+ 23 Zimmer
+ voll unterkellert
+ ideal für Vermietung, Wohngruppen oder Monteurzimmer

Hallen & Garagen
Halle 1:
+ ca. 450?m²
+ 3 Tore
+ angrenzend: 8 Garagen

Werkstatthalle:
+ 2 Räume
+ teilweise unterkellert

Halle 2:
+ ca. 730?m²
+ mit zwei Etagen
+ Dach neu (2013)
+ 1 Großtor
+ 3 separate Eingänge
+ direkter Zugang zum Innenhof

Außenbereich:
+ großer Innenhof
+ 11 Garagen

Grundrisse

Grundrisse
1 / 2

Realisiere Dein Projekt

Bausubstanz und Energie

Energieausweis

B
  • Baujahr1885
  • Zustand der Immobilierenovierungsbedürftig / sanierungsbedürftig
  • EnergieträgerGas
Immowelt logo

Preisdetails

Kaufpreis
499990 €
786,87 €/m²
Provision für Käufer
provisionsfrei
Geschätzte Gesamtkosten
542.489 €1
Kaufpreis
499.990 €
Notarkosten (1,5%)
7.500 €
Grunderwerbsteuer (6,5%)
32.499 €
Grundbucheintrag (0,5%)
2.500 €
1Der angezeigte Wert ist eine automatisch berechnete Schätzung von immowelt.
2Bei den Angaben handelt es sich um ortsübliche Werte. Individuelle Kosten können abweichen.

Lage

address-icon
Guben (03172)
Der Anbieter hat die genaue Adresse nicht freigegeben
Das Objekt befindet sich in gut erreichbarer Lage von Guben, nahe der Innenstadt und unweit des Grenzübergangs nach Polen. Die Alte Poststraße ist verkehrsgünstig angebunden und ermöglicht schnellen Zugang zu den Bundesstraßen B112 und B97. Einkaufsmöglichkeiten, Schulen, Dienstleister sowie der Bahnhof sind in wenigen Minuten erreichbar. Die Lage bietet eine ausgewogene Kombination aus urbaner Infrastruktur und Entwicklungspotenzial für Wohnen und Gewerbe.

Weitere Informationen

Sonstiges - Eine Besichtigung erfolgt nur nach vorab Vorlage eines Liquiditätsnachweises!

- Ein Exposé & Finanzierungscheck erhalten Sie automatisch nach Ihrer Anfrage.

- Bitte schauen Sie in ihren Spam-Ordner!

- Benötigen Sie Hilfe oder haben Fragen, dann erreichen Sie mich telefonisch.

Entdecken Sie weitere detaillierte Informationen zu diesem Objekt auf unserer Homepage: https://cottbus-immobilienmakler.immo/

Sie möchten Ihre Immobilie verkaufen oder vermieten?
Sprechen Sie mich an! Als erfahrener Immobilienmakler stehe ich Ihnen mit professionellem Service und Fachkenntnissen zur Seite. Gemeinsam finden wir die beste Lösung für Ihre Bedürfnisse.

Kontaktieren Sie mich jetzt, damit wir Ihren Immobilienwunsch erfolgreich realisieren können! Stichworte Fahrradraum, Anzahl der Schlafzimmer: 7, Anzahl der Badezimmer: 2, Anzahl Balkone: 2, Anzahl Terrassen: 1, 2 Etagen, Distanz zum Kindergarten: 0.35, Distanz zur Grundschule: 0.23, Distanz zur nächsten Einkaufsmöglichkeit: 1.70, Distanz zum Gymnasium: 2.00, Distanz zur Autobahn: 40.70, Distanz zum Bus: 0.40, Distanz zur Hauptschule: 3.10

Weitere Services

Lust auf eine Besichtigung?
Eine Frage zur Immobilie?
Nachricht hinzufügen
Mit der Nutzung der oben angegebenen Telefonnummer oder durch Klicken auf „Kontaktieren“ akzeptierst Du die Allgemeinen Nutzungsbedingungen, denen Du jederzeit widersprechen kannst. Weitere Informationen zum Datenschutz

Über den Anbieter

August-Bebel-Straße [4], [03185] Peitz
partner badge
Partnerschaft
Herr C/O Sebastian StelzigDein Kontakt
Online-ID: 2kbhn5p
Referenznummer: Objekt-212
Stelzig Immobilien
Stelzig Immobilien
Bewertung: 3,5 von 5 Sternen
Nachricht hinzufügen
Mit der Nutzung der oben angegebenen Telefonnummer oder durch Klicken auf „Kontaktieren“ akzeptierst Du die Allgemeinen Nutzungsbedingungen, denen Du jederzeit widersprechen kannst. Weitere Informationen zum Datenschutz
Wie zufrieden bist du mit dieser Seite (nicht mit der Immobilie selbst)?