Version: 8.24.0Navigation ĂĽberspringen
BEG-Immobilien GmbH
1.600 €
5 Zimmer  â€˘  140 m² Verkaufsfläche

Laden zur Miete
1.600 €
5 Zimmer  â€˘  140 m² Verkaufsfläche

Großzügige Gewerbefläche mit Potenzial

Ob Büros, eine Praxis, ein 24-Stunden-Shop, eine Bäckerei, eine Metzgerei, Einzelhandel, eine Bar oder andere Geschäftskonzepte - dieses vielseitig nutzbare Gewerbeobjekt mit einer großzügigen Fläche von ca. 233 m² in Michelbach bietet ideale Voraussetzungen für unterschiedlichste Geschäftsmodelle. Dank der durchdachten Raumaufteilung und praktischen Ausstattung eröffnet sich eine Vielzahl an Möglichkeiten, sei es für den Einzelhandel, die Gastronomie oder eine andere gewerbliche Nutzung.

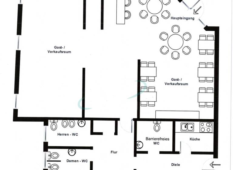
Beim Betreten des Gebäudes empfängt ein heller und offener Verkaufs- bzw. Gastraum, der durch eine halboffene Wand flexibel in verschiedene Nutzungsbereiche unterteilt werden kann. Dieser zentrale Bereich ist bereits mit allen notwendigen Anschlüssen ausgestattet, sodass er sich hervorragend für einen Imbiss, eine Metzgerei oder eine Bäckertheke eignet und somit vielfältige Geschäftsideen realisierbar macht.

Die hinteren Räume des Objekts sind über einen Flur zugänglich und umfassen ein barrierefreies WC sowie separate Damen- und Herren-WCs, die speziell für den Publikumsverkehr ausgelegt sind. Zusätzlich steht ein Büro zur Verfügung.

Ein weiteres Highlight ist der separate Mitarbeiterraum mit eigener Dusche. Vor dem Gebäude stehen ausreichend Parkplätze zur Verfügung, die eine bequeme Erreichbarkeit für Kunden gewährleisten.

Dieses Gewerbeobjekt überzeugt durch seine vielseitigen Nutzungsmöglichkeiten und die durchdachte Ausstattung - eine ideale Basis für eine erfolgreiche Geschäftsentwicklung.

Merkmale

  • Bezug: ab sofort
  • Kein Keller
  • Gäste-WC
- Geräumiger Verkaufs-/Gastraum mit Anschlüssen für eine Küche oder Imbissküche


- Halboffene Wand im Verkaufsraum fĂĽr flexible Raumgestaltung


- Separate Damen- und Herren-WCs, sowie ein Barrierefreies WC


- BĂĽro zur individuellen Nutzung oder Verwaltung


- Mitarbeiterraum mit eigener Dusche


- Heizraum mit Photovoltaikanlage fĂĽr Energieeinsparung


- Ausreichend Parkplätze vor dem Gebäude


- Gute Lage in Michelbach, ideal fĂĽr Kundenfrequenz

Grundrisse

Grundrisse
1 / 1

Realisiere Dein Projekt

Bausubstanz und Energie

Energieausweis

Endenergiebedarf (Wärme)

  • Baujahr1990
MediumRectangleTop

Mietkosten

Warmmiete
1.900 €
Nettomiete
1.600 €
Nebenkosten
300 €
Provision fĂĽr Mieter
Bitte beachte, das Angebot kann bei Vertragsabschluss die Zahlung einer Provision beinhalten. Weitere Informationen erhältst Du vom Anbieter.
Kaution
3200 €
Weitere Preisinformationen
Nettokaltmiete: 1.600,00 EUR

Lage

address-icon
Michelbach, Michelbach an der Bilz (74544)
Der Anbieter hat die genaue Adresse nicht freigegeben

Weitere Informationen

Stichworte Nutzfläche: 233,58 m², Gesamtfläche: 233,58 m², Grundstücksfläche: 569,00 m², modernisiert

Weitere Services

Lust auf eine Besichtigung?
Eine Frage zur Immobilie?
Nachricht hinzufĂĽgen
Mit der Nutzung der oben angegebenen Telefonnummer oder durch Klicken auf „Kontaktieren“ akzeptierst Du die Allgemeinen Nutzungsbedingungen, denen Du jederzeit widersprechen kannst. Weitere Informationen zum Datenschutz

Ăśber den Anbieter

BEG-Immobilien GmbH
BEG-Immobilien GmbHMaklerbĂĽro
Blockgasse 3, 74523 Schwäbisch Hall
Herr Toni ThoiDein Kontakt
Online-ID: 2kxfb5t
Referenznummer: 1935
BEG-Immobilien GmbH
BEG-Immobilien GmbH
Bewertung: 4,4 von 5 Sternen
Nachricht hinzufĂĽgen
Mit der Nutzung der oben angegebenen Telefonnummer oder durch Klicken auf „Kontaktieren“ akzeptierst Du die Allgemeinen Nutzungsbedingungen, denen Du jederzeit widersprechen kannst. Weitere Informationen zum Datenschutz
MediumRectangleTop
MediumRectangleBottom
MediumRectangleTop
Wie zufrieden bist du mit dieser Seite (nicht mit der Immobilie selbst)?