Version: 8.26.0Navigation überspringen
8.493 €
514,7 m² Bürofläche
Immowelt logo

Bürofläche zur Miete - Erstbezug • provisionsfrei
8.493 €
514,7 m² Bürofläche

MIETFREI STARTEN, KREATIV GESTALTEN // Rohbaufläche im Erdgeschoss wartet auf Ihre Ideen

Exklusive Gewerbeflächen zur freien Gestaltung im Neubauprojekt "Prager RiebECK" - hier bleiben keine Wünsche offen!

Die angebotene Gewerbefläche im Erdgeschoss mit ca. 515 m² offeriert vielfältige Gestaltungsmöglichkeiten und bietet Unternehmen die ideale Plattform, ihre Geschäftsideen in einem attraktiven und urbanen Umfeld umzusetzen. In einem modernen Neubauprojekt gelegen, verspricht die Fläche eine hohe Sichtbarkeit und Erreichbarkeit.

Derzeit befindet sich die Fläche im Rohbauzustand und die Ausbauarbeiten sollten nach Möglichkeit in Eigenleistung und nach eigenen Vorstellungen durchgeführt werden. Im Gegenzug kann eine mietfreie Zeit von bis zu 4 Monaten vereinbart werden.

Die Vermietung der Gewerbefläche erfolgt steuerpflichtig.

Zudem stehen PKW-Stellplätze in der hauseigenen Tiefgarage zur Verfügung, welche auf Anfrage und je nach Verfügbarkeit angemietet werden können.

Dreifachverglaste, teils bodentiefe Fenster, teils elektrischer Sonnenschutz sowie ein barrierefreier Zugang zur Gewerbefläche komplettieren das traumhafte Angebot.

Lassen Sie sich diese einmalige Gelegenheit nicht entgehen und vereinbaren Sie gleich einen Besichtigungstermin mit unserem Vermietungsteam!

Merkmale

  • Bezug: sofort
  • Erdgeschoss
  • Barrierefrei
  • Personenaufzug
Gewerbeeinheit im Wohnquartier "Prager RiebECK"

- Erdgeschossfläche von ca. 515 m²
- Rohbauzustand
- Selbstausbau für bis zu 4 mietfreie Monate
- barrierefrei
- Aufzug
- TG-Stellplätze (je nach Verfügbarkeit)
- dreifachverglaste, teils bodentiefe Fenster
- teils elektrischer Sonnenschutz
- modernes Belüftungssystem
- ideale Wärmedämmung

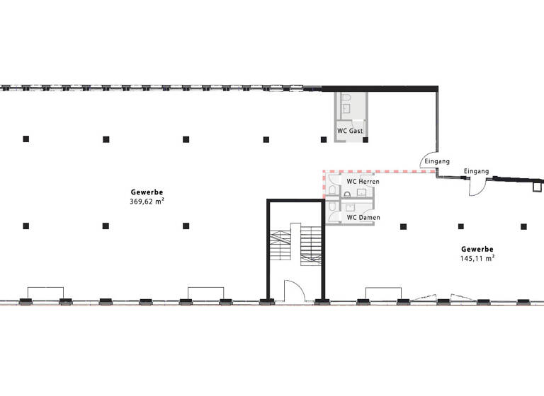
Grundrisse

Grundrisse
1 / 1

Bausubstanz und Energie

Energieausweis

Ein Energieausweis ist für diesen Gebäudetyp nicht notwendig.
  • Baujahr2021
  • Zustand der ImmobilieErstbezug
Immowelt logo

Mietkosten

Warmmiete
10.809 €
Nettomiete
8.493 €
Nebenkosten
2.316 €
Heizkosten
in Warmmiete enthalten
Provision für Mieter
provisionsfrei
Kaution
keine Angabe

Lage

address-icon
Riebeckstraße 62Reudnitz-ThonbergLeipzig (04317)
Reudnitz ist ein urbaner, grüner und kultureller Stadtteil im Herzen von Leipzig. Der Stadtteil, gelegen im Osten der sächsischen Metropole, erfreut sich wachsender Entfaltung. Mit fortschreitender Sanierung der Bausubstanz sowie dem Ausbau und der Neuanlage von städtischem Grünraum zieht Reudnitz Menschen aller Lebenslagen an, die die innenstadtnahe Lage schätzen.

Insbesondere die Prager Straße wird durch einen bunten Mix aus Gastronomie, Hotel, Büro und Wohnen charakterisiert. In direkter Nachbarschaft befinden sich mehrere Parkanlagen, welche für Sport-& Freizeitaktivitäten bestens geeignet sind und zugleich Raum für Erholung bieten.

Zahlreiche Einkaufsmöglichkeiten, Kulturangebote, Schulen und Kitas machen die Wohnlage attraktiv. Ebenso überzeugt der Standort des Quartiers durch eine exzellente Infrastruktur und eine hervorragende Anbindung an die öffentlichen Verkehrsmittel. Die Leipziger Innenstadt liegt in ca. 2 km Entfernung und ist innerhalb kürzester Zeit mit der Straßenbahn oder dem Fahrrad erreicht. Die Bundesautobahn A38 ist lediglich 20 Minuten Autofahrt entfernt.

Weitere Informationen

Sonstiges Die Einheit wird zzgl. Mehrwertsteuer vermietet.

Der Energieausweis wird aktuell erstellt und kann anschließend bei Interesse vorgelegt werden. Stichworte Tiefgarage vorhanden, Wohnfläche: 62,40 m², Anzahl der Schlafzimmer: 1, Anzahl der Badezimmer: 1, Bundesland: Sachsen, 8 Etagen, Wohnungsnr.: VE 188

Weitere Services

Lust auf eine Besichtigung?
Eine Frage zur Immobilie?
Mit einer persönlichen Nachricht hast du bessere Chancen auf eine Antwort.
Mit der Nutzung der oben angegebenen Telefonnummer oder durch Klicken auf „Kontaktieren“ akzeptierst Du die Allgemeinen Nutzungsbedingungen, denen Du jederzeit widersprechen kannst. Weitere Informationen zum Datenschutz

Über den Anbieter

Karl-Liebknecht-Straße 13a, 04107 Leipzig
partner badge
10 Jahre Partnerschaft
Frau Celina Steffen
Frau Celina SteffenDein Kontakt
Online-ID: 24RCV6RXAJ8N
Referenznummer: 6331
Wie zufrieden bist du mit dieser Seite (nicht mit der Immobilie selbst)?