BN-Friesdorf. Vermietete 4-Zi.-Wohnung mit Balkon - provisionsfrei
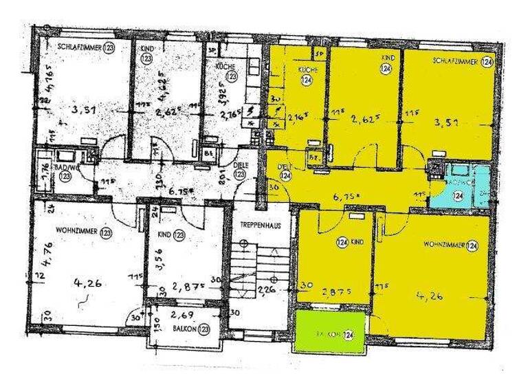
Die Eigentumswohnung befindet sich im 1. Obergeschoss eines gepflegten 4-Familienhauses in ruhiger Ortslage. Die gut geschnittene 4-Zimmerwohnung erstreckt sich über 78,3 m² Wohnfläche und bietet ein schönes, helles Wohnzimmer, eine Küche, drei Schlafzimmer sowie ein Badezimmer. Der überdachte Balkon, der vom Wohnzimmer aus zu begehen ist, lädt zum Entspannen ein.
Die Wohnung ist langfristig vermietet und wird ausschließlich als Kapitalanlage angeboten. Der Mietbeginn datiert auf das Jahr 1999.
Diese Immobilie ist ideal für Investoren, die eine stabile und zuverlässige Mieteinnahme suchen.
Haben Sie Interesse? Dann senden Sie die Objekt-Id 1079-124 per WhatsApp oder Signal an 01525 681 3907, per Telegram an VonoviaVerkauf oder per Threema an *VONOVIA.
Details zur Datenverarbeitung bei Vonovia finden SIe unter www.vonovia.de/datenschutz.
Merkmale
vermietet
1. Geschoss
Badewanne
Keller
Balkon
Garten
Außen-Stellplatz
Vom Flur aus sind alle Räume zugänglich, einschließlich das innen-liegende Wannenbad. In der Wohnung befindet sich noch ein nicht mehr benutzter Kachelofen.
Türsprechanlage; Isolierverglasung; Zentralheizung; Balkon Zu der Wohnung gehört ein separater Abstellraum im Keller. Für die Gemeinschaft steht ein Fahrradkeller sowie ein Waschmaschinen- und Trockenraum zur Verfügung. Die Beheizung erfolgt über eine Gas-Zentral-Heizung Die Kunststofffenster sind Isolierverglast.
Grundrisse
Grundrisse
1 / 1
Realisiere Dein Projekt
Bausubstanz und Energie
Energieausweis
C
Baujahr1959
HeizungsartZentralheizung
EnergieträgerGas
Preisdetails
Kaufpreis
259000 €259.000 €
3.307,79 €/m²
Preis pro Stellplatz
12000 €12.000 €
Hausgeld
455 €455 €
Provision für Käufer
provisionsfrei
Weitere Preisinformationen
1 Stellplatz, Kaufpreis: 12.000,00 EUR Ist-Mieteinnahmen pro Monat: 626,40 EUR
Geschätzte Gesamtkosten
281.015 €1
Kaufpreis
259.000 €
Kaufnebenkosten
22.015 €
2
Notarkosten (1,5%)
3.885 €
Grunderwerbsteuer (6,5%)
16.835 €
Grundbucheintrag (0,5%)
1.295 €
1Der angezeigte Wert ist eine automatisch berechnete Schätzung von immowelt.
2Bei den Angaben handelt es sich um ortsübliche Werte. Individuelle Kosten können abweichen.
Lage
Friesdorf, Bonn (53175)
Der Anbieter hat die genaue Adresse nicht freigegeben
Friesdorf ist ein charmanter Ortsteil der Bundesstadt Bonn, gelegen am nördlichen Rand des Stadtbezirks Bad Godesberg. Dieses ruhige Wohngebiet bietet eine perfekte Balance zwischen städtischem Leben und naturnahem Wohnen.
Das Haus befindet sich in einer verkehrsberuhigten Straße, die für ein angenehmes und sicheres Wohnumfeld sorgt. Das Zentrum von Friesdorf ist in wenigen Minuten zu Fuß erreichbar und bietet zahlreiche Einkaufsmöglichkeiten für den täglichen Bedarf.
Bushaltestellen und die Straßenbahnhaltestelle 'Hochkreuz' liegen in unmittelbarer Nähe, was eine hervorragende Anbindung an den öffentlichen Nahverkehr gewährleistet. So sind auch die weiteren Stadtteile Bonns sowie das Stadtzentrum schnell und bequem erreichbar.
Diese Lage kombiniert die Vorzüge einer ruhigen Wohngegend mit der Nähe zu urbaner Infrastruktur und macht das Objekt besonders attraktiv.
Weitere Informationen
Sonstiges
=== Energieträger laut Energieausweis: Gas === Hinweise darüber, wie die Vonovia Ihre personenbezogenen Daten als Interessent verarbeitet, erhalten Sie unter www.vonovia.de/datenschutzinformation. Alle Angaben in diesem Exposé wurden sorgfältig und so vollständig wie möglich gemacht. Gleichwohl kann das Vorhandensein von Fehlern nicht ausgeschlossen werden. Die Angaben in diesem Exposé erfolgen daher ohne jede Gewähr. Maßgeblich sind die im Kaufvertrag geschlossenen Vereinbarungen. Soweit die Grundrissgrafiken Maßangaben und Einrichtungen enthalten, wird auch für diese jegliche Haftung ausgeschlossen. Ebenso weisen wir darauf hin, dass die Grundrissgrafiken nicht immer maßstabsgetreu sind. Besichtigungen sind jederzeit, jedoch nur nach vorheriger Terminabsprache mit Ihrem Ansprechpartner möglich. Kaufverhandlungen sind ausschließlich über Ihren Ansprechpartner zu führen. Preisänderungen bleiben vorbehalten. Der Kauf ist für den Käufer provisionsfrei.
Stichworte
Anzahl Balkone: 1, 2 Etagen