Version: 8.22.6Navigation überspringen
950 €
6 Zimmer
Immowelt logo

Büro zur Miete
950 €
6 Zimmer

Helle freundliche Praxis- bzw. Bürofläche im EG sehr gute Lage, TOP!

Objektbeschreibung

Zur Vermietung stehen attraktive und helle Praxisräume in einer ruhigen Wohnlage, die durch ihre durchdachte Aufteilung und die angenehme Arbeitsatmosphäre bestechen. Diese Räumlichkeiten bieten eine hervorragende Grundlage für Ihre berufliche Tätigkeit und überzeugen sowohl durch Funktionalität als auch durch ein einladendes Ambiente.

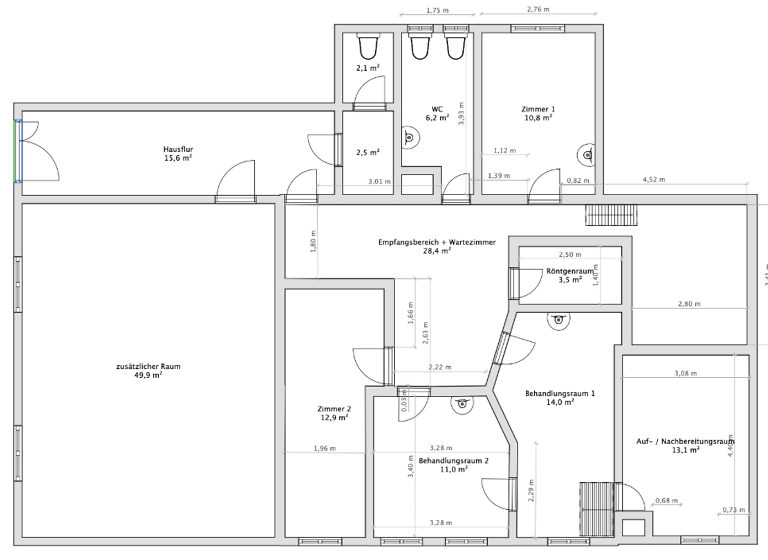
Herzstück der Praxis: Empfangs- und Wartebereich

Der großzügige Empfangsbereich mit dem angrenzenden Wartezimmer bildet das Herzstück der Praxis. Hier haben Ihre Patienten die Möglichkeit, in einer angenehmen Atmosphäre zu warten, während Sie sich auf die Behandlung konzentrieren können.

Behandlungsräume und Zusatzräume

Zusätzlich stehen Ihnen zwei lichtdurchflutete Behandlungsräume zur Verfügung, die flexibel genutzt werden können. Ein innenliegender Röntgenraum ergänzt das Angebot und ermöglicht eine umfassende Betreuung Ihrer Patienten. Darüber hinaus gibt es ein Bad mit WC, das sowohl für Mitarbeiter als auch für Patienten zur Verfügung steht. Direkt an einen Behandlungsraum angrenzend ist ein praktischer Vorbereitungsraum angrenzend.

Nutzungsmöglichkeiten

Die Praxisräume sind vielseitig nutzbar und eignen sich ideal für verschiedene medizinische oder therapeutische Berufe, wie zum Beispiel:

Zahnarztpraxis
Tierarztpraxis
Physiotherapie
Psychotherapie
u.v.m.

Alternativ können die Räume auch als Büro- oder Dienstleistungsräume genutzt werden, was Ihnen zahlreiche Möglichkeiten für Ihre individuelle Nutzungsidee eröffnet.

Optional: Inventarübernahme

Das bestehende Inventar des aktuellen Mieters (Zahnarztpraxis) kann bei Bedarf käuflich übernommen werden. Dies ermöglicht Ihnen einen reibungslosen Einstieg in Ihre neue Praxis und spart Ihnen die Investition in neue Ausstattung.

Ausstattung

Die Praxisräume bieten folgende Ausstattung:

Großzügiger Empfangs- und Wartebereich: Einladend und hell, ideal für die ersten Begegnungen mit Ihren Patienten.
Zwei helle Behandlungs-/Büroräume: Optimale Lichtverhältnisse für Ihre Arbeit.
Zusätzliche flexibel nutzbare Räume: Diese können je nach Bedarf als Behandlungs-, Büro- oder Lagerraum genutzt werden.
Ruhige Wohngegend: Die Lage bietet eine angenehme Umgebung und ist gut erreichbar.
Zusätzliche 50 m² Fläche anmietbar: Bei Bedarf besteht die Möglichkeit, die Fläche zu erweitern.

Vermietung

Die Vermietung erfolgt von privat, es fällt keine Maklerprovision an. Dies bedeutet für Sie eine Kostenersparnis und eine unkomplizierte Abwicklung.

Verfügbarkeit

Die Praxisräume sind ab dem 01. April 2026 verfügbar. Der Energieausweis werden derzeit erstellt und stehen Ihnen bald zur Verfügung.
Grundriss ohne Gewähr


Fazit

Die zur Vermietung stehenden Praxisräume bieten eine hervorragende Möglichkeit für verschiedene Nutzungen in einer ruhigen und gut erreichbaren Wohnlage. Die flexible Gestaltung und die Möglichkeit zur Inventarübernahme machen diesen Standort besonders attraktiv für Fachkräfte im Gesundheits- und Dienstleistungssektor. Sprechen Sie uns gerne mit Ihren individuellen Vorstellungen an - wir freuen uns darauf, gemeinsam die passende Lösung für Ihre Nutzungsidee zu finden!

Merkmale

  • frei ab 01.04.2026
  • Bodenbelag: Fliesen, Teppich

Grundrisse

Grundrisse
1 / 1

Realisiere Dein Projekt

Bausubstanz und Energie

Der Anbieter hat keine Informationen zum Energieverbrauch bereit gestellt.
  • Zustand der ImmobilieGepflegt
  • EnergieträgerGas
Immowelt logo

Mietkosten

Nettomiete
950 €
Nebenkosten
150 €
Zusätzliche Kosten
Heizkosten
Provision für Mieter
Bitte beachte, das Angebot kann bei Vertragsabschluss die Zahlung einer Provision beinhalten. Weitere Informationen erhältst Du vom Anbieter.
Kaution
1.900,00 1.900,00
Weitere Preisinformationen

950,- Euro Kaltmiete
150,- Euro Betriebskostenvorauszahlung zzgl. Gas und Strom
1.900,- Euro Kaution

Lage

address-icon
Freiberg (09599)
Der Anbieter hat die genaue Adresse nicht freigegeben
Die Praxis befindet sich in einer angenehmen, ruhigen Wohngegend mit guter Verkehrsanbindung. Parkmöglichkeiten sind in unmittelbarer Nähe vorhanden.

Weitere Informationen

Sonstiges Interessiert? Haben wir Sie neugierig gemacht? Dann sollte einer gemeinsamen Besichtigung nichts mehr im Wege stehen. Für die Beantwortung Ihrer Fragen und zur Vereinbarung eines Besichtigungstermins stehen wir Ihnen gern zur Verfügung und freuen uns auf Ihren Anruf! Stichworte Gesamtfläche: 112,00 m², Anzahl der separaten WCs: 2, 1 Etagen

Weitere Services

Lust auf eine Besichtigung?
Eine Frage zur Immobilie?
Nachricht hinzufügen
Mit der Nutzung der oben angegebenen Telefonnummer oder durch Klicken auf „Kontaktieren“ akzeptierst Du die Allgemeinen Nutzungsbedingungen, denen Du jederzeit widersprechen kannst. Weitere Informationen zum Datenschutz

Über den Anbieter

ImmoFreiberg
ImmoFreibergMaklerbüro
Wernerstr. 1, 09599 Freiberg
partner badge
3 Jahre Partnerschaft
Frau Kristin KempeDein Kontakt
Online-ID: 2mfa55a
Referenznummer: 264
ImmoFreiberg
ImmoFreiberg
Bewertung: 4 von 5 Sternen
Nachricht hinzufügen
Mit der Nutzung der oben angegebenen Telefonnummer oder durch Klicken auf „Kontaktieren“ akzeptierst Du die Allgemeinen Nutzungsbedingungen, denen Du jederzeit widersprechen kannst. Weitere Informationen zum Datenschutz
Wie zufrieden bist du mit dieser Seite (nicht mit der Immobilie selbst)?