Objektbeschreibung
Das zweigeschossige Wohnhaus ist vollständig unterkellert und überzeugt durch großzügigen Wohnkomfort und eine durchdachte Raumaufteilung.
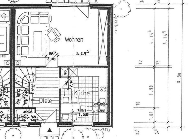
Im Erdgeschoss erwartet Sie ein geräumiges Wohnzimmer mit offenem Essbereich. Die angrenzende Einbauküche ist mit einer Küchenzeile, Elektrogeräten sowie Ober- und Unterschränken ausgestattet. Zudem bietet die Küche ausreichend Platz für einen Esstisch und zusätzliche Regale zur optimalen Nutzung des Stauraums. Vom Wohnzimmer aus gelangen Sie durch eine Glastür direkt auf die gepflasterte Terrasse und in den liebevoll angelegten Garten – ein idealer Ort zum Entspannen und Verweilen.
Der Eingangsbereich beherbergt ein Gäste-WC sowie eine großzügige Diele. Die Böden im Erdgeschoss sind mit Vinylplanken versehen. Isolierverglaste Kunststoff- und Holzfenster sorgen für ein angenehmes Raumklima.
Eine stilvolle Holztreppe führt vom Diele ins Obergeschoss. Dort befinden sich ein großes Schlafzimmer, zwei Kinderzimmer sowie ein hell gefliestes Badezimmer mit Badewanne, Duschvorrichtung und WC. Auch im Obergeschoss sind alle Wohnräume sowie der Flur mit pflegeleichtem Vinylboden ausgestattet.
Das voll ausgebaute Kellergeschoss bietet viel Nutzfläche: Es ist unterteilt in einen Vorraum, einen großzügigen Lagerraum, einen Technikraum sowie einen weiteren kleinen Abstellraum.
Ein Stellplatz direkt vor dem Haus rundet dieses attraktive Angebot ab.
Raumaufteilung
Erdgeschoss: 1 Wohnzimmer mit Zugang zur Terrasse und Garten 1 Küche mit Einbauküche 1 offenes Esszimmer 1 Gäste-WC 1 Diele 1 Treppe zum Obergeschoss 1 Treppe zum Keller
Obergeschoss: 1 Schlafzimmer 2 Kinderzimmer 1 Badezimmer mit WC 1 Diele
Kellergeschoss: 1 Kellervorraum 2 Lagerräume
Außenbereich: 1 Gepflasterte Zuwegung zum Haus 1 Stellplatz 1 Terrasse
Merkmale
vermietet
2 Geschosse
384 m² Grundstück
Einbauküche
Keller
Außen-Stellplatz
Gäste-WC
Gartenanteil, Garten
Grundrisse
Grundrisse
1 / 3
Realisiere Dein Projekt
Bausubstanz und Energie
Energieausweis
D
Baujahr1993
Zustand der ImmobilieMassivhaus, Gepflegt
HeizungsartZentralheizung
EnergieträgerGas
Preisdetails
Kaufpreis
195000 €195.000 €
2.069,62 €/m²
Provision für Käufer
Nach Abschluss des notariellen Kaufvertrages tragen Käufer und Verkäufer die Maklercourtage in Höhe von 3 % (zzgl. 19 % MWSt) je zur Hälfte (1,5 % zzgl. 19 % MWSt.)
Geschätzte Gesamtkosten
214.500 €1
Kaufpreis
195.000 €
Kaufnebenkosten
19.500 €
2
Notarkosten (1,5%)
2.925 €
Grunderwerbsteuer (5%)
9.750 €
Provision für Käufer (3%)
5.850 €
Grundbucheintrag (0,5%)
975 €
1Der angezeigte Wert ist eine automatisch berechnete Schätzung von immowelt.
2Bei den Angaben handelt es sich um ortsübliche Werte. Individuelle Kosten können abweichen.
Lage
Heinbockel (21726)
Der Anbieter hat die genaue Adresse nicht freigegeben
Das Ortschaft Heinbockel liegt an der Kreisstraße K57 zwischen Düdelbüttel an der B73 und Hagenah an der B74. Über beide Bundesstrassen gelangt man zur Hansestadt Stade und weiter nach Hamburg. In der anderen Richtung führt die B73 in Richtung Hemmoor und Cuxhaven, die B74 nach Bremervörde, Bremen und Bremerhaven.
Die Gemeinde Heinbockel-Hagenah gehört zur Samtgemeinde Oldendorf-Himmelpforten.
Öffentliche Nahverkehrsverbindungen zu den Schulzentren und Bahnhöfen in Stade und Bremervörde sind vorhanden.
Die Gemeinde Heinbockel-Hagenah hat ca. 1.500 Einwohner. Sportvereine und Restaurants sind in beiden Orten vorhanden. Gute Einkaufsmöglichkeiten, sowie Ärzte und Schulen finden sich in den Nachbarorten Oldendorf und Himmelpforten. Ein Treffpunkt für die Jugend ist der überregional bekannte Musikladen in Heinbockel.