Version: 8.24.0Navigation überspringen
3.725 €
9,5 Zimmer  •  263 m² Bürofläche  •  teilbar ab 100 m²
Immowelt logo

Büro zur Miete - Erstbezug
3.725 €
9,5 Zimmer  •  263 m² Bürofläche  •  teilbar ab 100 m²

Repräsentative Gewerbefläche im sanierten Altbau – Arbeiten mit Stil in der „Alten Tischlerei“

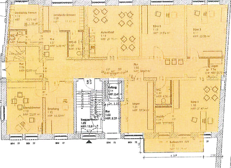
Arbeiten mit Stil in der „Alten Tischlerei“ in Burg bei Magdeburg Die angebotene Gewerbefläche befindet sich in einem aufwendig sanierten Altbauensemble „Alte Tischlerei“ in der Brüderstraße 27. Das historische Gebäude verbindet stilvolle Altbauarchitektur mit zeitgemäßem Ausbaustandard und bietet damit ein repräsentatives Umfeld für Kanzlei-, Praxis- oder hochwertige Büro- und Dienstleistungsnutzungen. Die ca. 263 m² große Fläche liegt im Erdgeschoss und ist über einen kleinen Treppenzugang sowohl über einen Haupt- als auch einen separaten Nebeneingang erreichbar. Zusätzlich steht ein Aufzug zur Verfügung, der exklusiv per Schlüssel genutzt werden kann. Die lichtdurchfluteten Räumlichkeiten überzeugen durch eine klare, funktionale Grundrissstruktur mit großzügigem Empfangsbereich, mehreren gut geschnittenen Arbeits- und Besprechungsräumen sowie umfangreichen Nebenflächen für Lager, Archiv und Abstellmöglichkeiten. Hochwertige Materialien, gepflegte historische Türen und moderne Sanitäreinheiten unterstreichen den hochwertigen Gesamteindruck. Die Fläche eignet sich ideal für Kanzleien, Arzt- oder Therapiepraxen, Agenturen oder andere anspruchsvolle gewerbliche Nutzungen mit Kundenverkehr.

Merkmale

  • frei ab sofort
  • Personenaufzug
  • 2 Außen-Stellplätze
  • 3 WCs
  • Balkon
  • DSL-Anschluss

Grundrisse

Grundrisse
1 / 1

Realisiere Dein Projekt

Bausubstanz und Energie

Energieausweis

Der Anbieter hat keine Daten zum Energieausweis hinterlegt.
  • Letzte Modernisierung2025
  • Zustand der ImmobilieErstbezug
  • HeizungsartZentralheizung
  • EnergieträgerGas, fossile Brennstoffe
Immowelt logo

Mietkosten

Warmmiete
4.251 €
Nettomiete
3.725 €
Nebenkosten
526 €
Heizkosten
in Nebenkosten enthalten
Zusätzliche Kosten
Miete pro Stellplatz
Provision für Mieter
Bitte beachte, das Angebot beinhaltet bei Vertragsabschluss die Zahlung einer Provision. Weitere Informationen erhältst Du vom Anbieter.
Kaution
7450 €

Lage

address-icon
Brüderstraße 27Burg (39288)
Lage des Objektes: Die Gewerbefläche liegt in attraktiver, innerstädtischer Lage in der Brüderstraße 27. Das Umfeld ist geprägt von einer gewachsenen Infrastruktur mit gemischter Nutzung aus Wohnen, Büros, Praxen und Dienstleistungsangeboten. Durch die zentrale Lage ist das Objekt sowohl für Mitarbeiter als auch für Kunden hervorragend erreichbar. Die Anbindung an den öffentlichen Nahverkehr ist sehr gut, ebenso die Erreichbarkeit mit dem Pkw. Parkmöglichkeiten befinden sich direkt vor dem Objekt; zusätzliche Stellplätze können bei Bedarf angemietet werden. Die zentrale Lage in einem sanierten Altbau verleiht der Immobilie einen repräsentativen Charakter und bietet ideale Voraussetzungen für eine professionelle Außenwirkung. LAGEBESCHREIBUNG – BURG BEI MAGDEBURG EIN STANDORT MIT PERSPEKTIVE: Burg bei Magdeburg präsentiert sich als aufstrebender Wohn- und Wirtschaftsstandort im Herzen Sachsen-Anhalts. Die über 1.000-jährige Stadt liegt strategisch günstig nur etwa 25 Kilometer nordöstlich der Landeshauptstadt Magdeburg und verfügt über eine exzellente Verkehrsanbindung: Die Autobahn A2 (Hannover–Berlin) ist in wenigen Minuten erreichbar und verbindet Burg direkt mit bedeutenden Wirtschaftszentren. Der Regionalbahnanschluss ermöglicht eine schnelle Verbindung nach Magdeburg, Berlin oder Hannover, was die Stadt auch für Berufspendler äußerst attraktiv macht. Die Stadt Burg zählt rund 23.000 Einwohner und profitiert sowohl von ihrer Nähe zu Magdeburg als auch von einer eigenen, gut entwickelten Infrastruktur. Das Zentrum der Stadt bietet zahlreiche Einkaufsmöglichkeiten, Restaurants, Cafés und Dienstleister des täglichen Bedarfs. Für Investoren besonders interessant: Die stabile Nachfrage nach Wohnraum in unterschiedlichen Preissegmenten – von günstigem Wohnraum für Berufspendler und junge Familien bis hin zu modernen Eigentumswohnungen oder Seniorenresidenzen. Burg verfügt über einen stetig wachsenden Industrie- und Gewerbepark, der nicht nur attraktive Flächenreserven für künftige Investitionen bietet, sondern auch zahlreiche namhafte Unternehmen beherbergt. Diese Betriebe sichern qualifizierte Arbeitsplätze vor Ort und stärken nachhaltig die wirtschaftliche Perspektive der Region. Burg ist zudem ein Standort mit wachsendem wirtschaftlichem Potenzial. Die Stadt liegt im Einzugsbereich des dynamischen Wirtschaftsraums Magdeburg, der sich zunehmend zu einem wichtigen Logistik-, Industrie- und Forschungsstandort entwickelt. Große Investitionen in der Region Magdeburg strahlen bereits auf das Umland aus und lassen steigenden Wohnraumbedarf erwarten – eine Chance für Investoren, frühzeitig in Wohn- oder Gewerbeimmobilien zu investieren. Auch die Lebensqualität spricht für Burg: Zahlreiche Grünflächen, Parks und die Nähe zum Elbe-Havel-Kanal bieten attraktive Freizeit- und Erholungsmöglichkeiten. Kulturell punktet die Stadt mit ihrem historischen Stadtkern, Sehenswürdigkeiten wie der imposanten Nikolaikirche und diversen Veranstaltungen, die das Gemeinschaftsleben stärken. Schulen, Kitas, medizinische Versorgung sowie Sport- und Freizeitangebote runden das Angebot ab und machen Burg besonders familienfreundlich. Die Immobilienpreise in Burg liegen derzeit noch auf einem moderaten Niveau im Vergleich zu Magdeburg oder anderen Städten der Region, was attraktive Einstiegsmöglichkeiten für Kapitalanleger schafft. Gleichzeitig lassen sich stabile Mieterträge und Wertsteigerungspotenziale erwarten – nicht zuletzt durch die wachsende Nachfrage infolge der wirtschaftlichen Entwicklungen in der Region. Burg bei Magdeburg bietet Investoren somit eine hervorragende Kombination aus solider Infrastruktur, wachsendem Wirtschaftsraum, guter Vermietbarkeit und einer hohen Lebensqualität – eine Lage mit Zukunftsperspektive!

Weitere Informationen

INFORMATIONEN & KONDITIONEN ZUM EXPOSÉ: Die in diesem Exposé enthaltenen Informationen basieren auf den Angaben des Eigentümers oder Dritter. Trotz sorgfältiger Prüfung übernehmen wir für die Vollständigkeit, Richtigkeit und Aktualität der Angaben keine Haftung. Das Angebot ist freibleibend. Änderungen, Irrtümer und Zwischenverkauf sind vorbehalten. Bitte beachten Sie, dass Anfragen ausschließlich bearbeitet werden können, wenn sie schriftlich und mit vollständigen Kontaktdaten (Name, Anschrift, Telefonnummer sowie E-Mail-Adresse) erfolgen. BESICHTIGUNG: Vereinbaren Sie jetzt Ihren individuellen Besichtigungstermin, wir freuen uns auf Ihre Kontaktaufnahme und Ihnen diese außergewöhnliche Fläche vorstellen zu dürfen! Herzlichst, bessermakeln.de Daniel Grünke Telefon: 0170-8142930

Weitere Services

Lust auf eine Besichtigung?
Eine Frage zur Immobilie?
Nachricht hinzufügen
Mit der Nutzung der oben angegebenen Telefonnummer oder durch Klicken auf „Kontaktieren“ akzeptierst Du die Allgemeinen Nutzungsbedingungen, denen Du jederzeit widersprechen kannst. Weitere Informationen zum Datenschutz

Über den Anbieter

bessermakeln.de
bessermakeln.deMaklerbüro
Waagestraße 5, 39288 Burg
partner badge
Partnerschaft
Herr Daniel Grünke
Herr Daniel GrünkeDein Kontakt
Online-ID: 2ncgr5n
bessermakeln.de
title
bessermakeln.de
Nachricht hinzufügen
Mit der Nutzung der oben angegebenen Telefonnummer oder durch Klicken auf „Kontaktieren“ akzeptierst Du die Allgemeinen Nutzungsbedingungen, denen Du jederzeit widersprechen kannst. Weitere Informationen zum Datenschutz
Wie zufrieden bist du mit dieser Seite (nicht mit der Immobilie selbst)?