Version: 8.22.4Navigation überspringen
429.001 €
174 m² Lagerfläche

Halle/Industriefläche zum Kauf
429000.74 €
174 m² Lagerfläche

Unbefristet vermietete Gastronomie in der Wallensteinstraße 56 zum Kauf! Top Rendite - JETZT ANFRAGEN

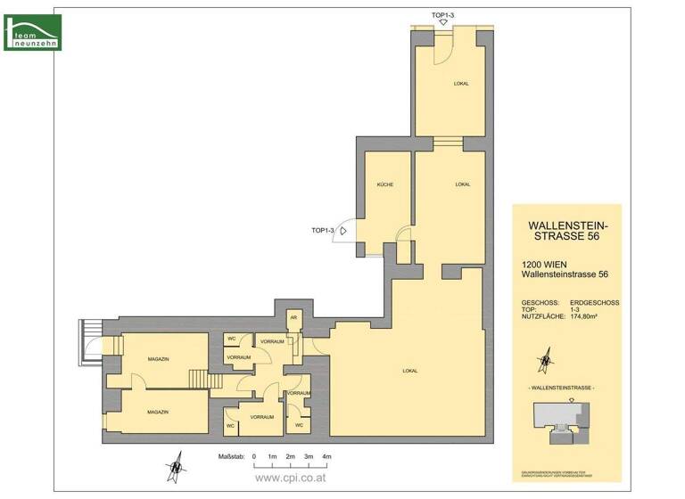
Geschäftslokal/Magazin in der Wallensteinstraße 56, 1200 Wien - 174 m², sofort verfügbar

Zum Verkauf steht ein ca. 174 m² großes Lager oder Werkstatt in der Wallensteinstraße 56, 1200 Wien. Das Objekt ist unbefristet vermietet.

Mit einem Kaufpreis von 429.000€ bietet diese Immobilie eine Möglichkeit, in eine vielseitige Gewerbefläche in einem gut angebundenen Stadtteil zu investieren.

Mieteinnahmen: 

* Nettohauptmietzins aktuell ca. monatlich 1.976,10€
* Betriebskosten aktuell ca. monatlich netto 367,71€

Aktuelle Bruttoanfangsrendite somit rund 5,53% p.a. ! 

Kosten:

Der Kaufpreis beläuft sich auf 429.000 €. 

Verkehrsanbindungen:

Die Lage des Objekts in der Wallensteinstraße 56 überzeugt durch eine ausgezeichnete Anbindung:

* Straßenbahnlinie 5 (Station Wallensteinstraße)
* U-Bahnlinie U6 (Station Jägerstraße)

Durch die zentrale Lage und gute Erreichbarkeit eignet sich das Objekt optimal für Gewerbetreibende oder als Lagerfläche in einer lebendigen Umgebung.

Nebenkosten:

Provision: 3% des Kaufpreises zzgl. 20% USt.

 

Energieausweis:

Heizwärmebedarf: 176,00 kWh/m²a - Klasse E

 

Christoph Kolar freut sich auf Ihre Kontaktaufnahme bei weiteren Fragen oder Wunsch nach einer Besichtigung telefonisch unter +43676 852 243 541, via E-Mail unter kolar@teamneunzehn.at oder über das Anfrage-Feld.

"Leben braucht Raum" * T19-RE Real Estate GmbH & Co KG * www.teamneunzehn.at [https://www.teamneunzehn.at]

Doppelmakler

Wir werden als Immobilienmakler kraft bestehenden Geschäftsgebrauchs als Doppelmakler tätig und haben sohin beide Seiten des Vertrages (Verkäufer-Käufer, Vermieter-Mieter) zu unterstützen.

Wirtschaftliches Naheverhältnis

Es wird bekannt gegeben, dass folgendes wirtschaftliches Naheverhältnis zwischen der teamneunzehn-Gruppe und dem Verkäufer/der vermietenden Partei besteht: ständige und dauerhafte Beauftragung mit der Vermittlung des bestehenden Immobilienportfolios

Haftungserklärung zum Inserat

Irrtum und Änderungen vorbehalten! Sofern es sich bei Bildern um Visualisierungen handelt, können Abänderungen zur tatsächlichen Ausführung resultieren. Wir weisen ausdrücklich darauf hin, dass das auf Fotos oder Visualisierungen ersichtliche Mobiliar bzw. Inventar nicht Bestandteil des inserierten Preises ist.

 

 

Sie sind Anleger und bevorzugen den Erwerb einer Immobilie mit Vorsteuerabzug?

Die teamneunzehn-Gruppe ist besonders auf den Vertrieb von Neubauprojekten spezialisiert. Wir beraten unsere Bauträger/Abgeber bereits im Zuge der Planung der neu zu schaffenden Wohnhausanlagen und berücksichtigen stets die Wünsche/Vorstellungen sämtlicher Mietinteressenten, so dass geringe Leerstandsquoten gehalten und bestmögliche Renditen erzielt werden können. Die Option des Vorsteuerabzuges spielt unseren Anlegern zusätzlich in die Karten! Wir können Ihnen mit sofortiger Wirkung unverbindliche Vorschläge präsentieren, bitte wenden Sie sich an anlegerwohnung@teamneunzehn.at

Sorgenfrei vermieten - Rundum-Servicepakete für Anleger

Sie möchten nach Erwerb Ihrer Immobilie mit der Vermietung sowie den Mietabrechnungen und eventuellen Fragen während des Mietverhältnisses nicht beschäftigt sein? Wir bieten verschiedene und maßgeschneiderte Konzepte rund um unser Dienstleistungsprogramm »sorgenfrei vermieten«. Unsere Mitarbeiter freuen sich auf Ihre unverbindliche Anfrage unter sorgenfreivermieten@teamneunzehn.at

Finanzierungsservice - Ihre Wunschimmobilie optimal finanziert

Um Ihnen bei der Finanzierung Ihrer neuen Wohnung Zeit und Geld zu sparen, stehen Ihnen unsere Finanzierungsprofis mit Rat und Tat zur Seite. Wir führen für Sie unverbindlich und kostenlos einen unabhängigen Vergleich der unterschiedlichen Kreditkonditionen durch und verhelfen Ihnen zum optimalen Angebot. Wir werden sofort nach Ihrer unverbindlichen Kontaktaufnahme unter finanzierung@teamneunzehn.at aktiv.

Infrastruktur / Entfernungen

Gesundheit
Arzt <50m
Apotheke <250m
Klinik <850m
Krankenhaus <975m

Kinder & Schulen
Schule <125m
Kindergarten <225m
Universität <975m
Höhere Schule <775m

Nahversorgung
Supermarkt <75m
Bäckerei <50m
Einkaufszentrum <900m

Sonstige
Geldautomat <200m
Bank <200m
Post <200m
Polizei <125m

Verkehr
Bus <75m
U-Bahn <525m
Straßenbahn <75m
Bahnhof <625m
Autobahnanschluss <1.300m

Angaben Entfernung Luftlinie / Quelle: OpenStreetMap

Merkmale

  • Bezug: ab sofort
  • 1 Geschoss

Grundrisse

Grundrisse
1 / 1

Realisiere Dein Projekt

Bausubstanz und Energie

Heizwärmebedarf (HWB)

E

Gesamtenergieeffizienz (fGEE)

F
  • Baujahr1897
  • Zustand der ImmobilieAltbau (bis 1945), Gepflegt

Preisdetails

Kaufpreis
429000.74 €
Provision für Käufer
3% des Kaufpreises zzgl. 20% USt.

Lage

address-icon
Wallensteinstraße 56Wien (1200)
Rauscherstraße, Wallensteinplatz, Augarten, Nordwestbahnstraße, Brigittenauer Lände

Weitere Informationen

Stichworte Lagerfläche: 174,00 m², Nutzfläche: 174,80 m², Gesamtfläche: 174,00 m², Anzahl der Badezimmer: 1, Anzahl der separaten WCs: 1, Bundesland: Wien, Wohnungsnr.: 1-3 GL

Weitere Services

Lust auf eine Besichtigung?
Eine Frage zur Immobilie?
Nachricht hinzufügen
Mit der Nutzung der oben angegebenen Telefonnummer oder durch Klicken auf „Kontaktieren“ akzeptierst Du die Allgemeinen Nutzungsbedingungen, denen Du jederzeit widersprechen kannst. Weitere Informationen zum Datenschutz

Über den Anbieter

Handelskai 94-96/44. Stock, 1200 BRIGITTENAU
partner badge
Partnerschaft
Herr Christoph KolarDein Kontakt
Online-ID: 2mjrx5q
Referenznummer: OBGC20251216133005724b97849488f
team19 Immobilien GmbH
Bewertung: 4 von 5 Sternen
Nachricht hinzufügen
Mit der Nutzung der oben angegebenen Telefonnummer oder durch Klicken auf „Kontaktieren“ akzeptierst Du die Allgemeinen Nutzungsbedingungen, denen Du jederzeit widersprechen kannst. Weitere Informationen zum Datenschutz
Wie zufrieden bist du mit dieser Seite (nicht mit der Immobilie selbst)?