Version: 8.26.0Navigation überspringen
10 €
40 Zimmer  •  1.212 m² Bürofläche  •  teilbar ab 250 m²
Immowelt logo

Bürofläche zur Miete
10 €
/m²
40 Zimmer  •  1.212 m² Bürofläche  •  teilbar ab 250 m²

Flexibler Firmensitz oder Kapitalanlage

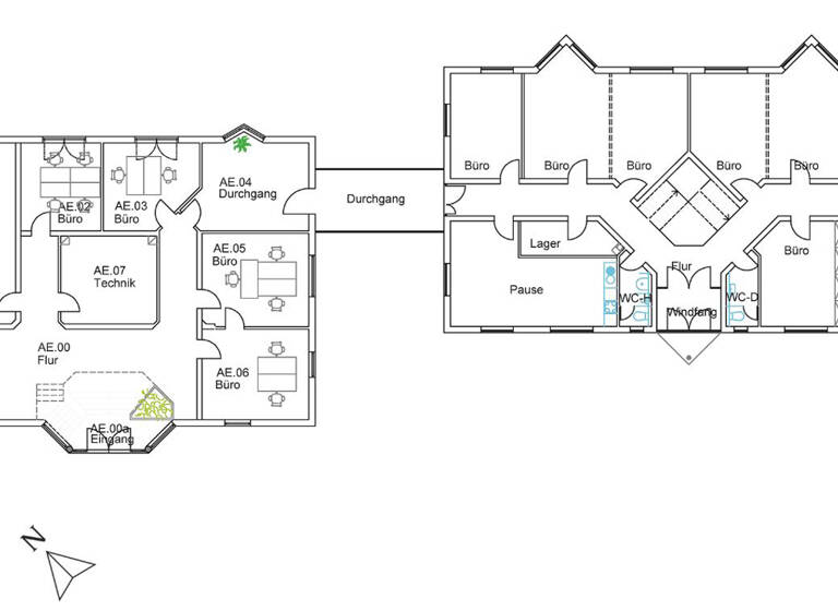
Die beiden Bürogebäude wurden 1994 gebaut und verfügen jeweils über zwei Stockwerke. Das hintere Gebäude besitzt darüber hinaus ein belichtetes Hanggeschoss. Beide Gebäude sind durch eine Verbindungstür miteinander verbunden und können gemeinsam genutzt werden. Auch verschiedene Aufteilungen, bspw. nach Gebäuden oder auch Stockwerken, sind mit einfachen Schritten möglich. Im Inneren der Gebäude befinden sich unterschiedlich große Büros und Besprechungsräume, zwei Küchen, ein Sozialraum sowie mehrere Sanitäreinrichtungen. Aufgrund der Bauweise ist eine Anpassung der Räumlichkeiten einfach umzusetzen. Der gepflasterte Parkplatz bietet ca. 44 Außenstellplätze sowie zwei Einzelgaragen.

Merkmale

  • 46 Stellplätze: 46 Außen-Stellplätze

Grundrisse

Grundrisse
1 / 3

Bausubstanz und Energie

Möchtest du Details zum Energieverbrauch?info_energy_calculation-icon
  • Baujahr1994
  • EnergieträgerGas
Immowelt logo

Mietkosten

Monatliche Miete
10 €/m²
Provision für Mieter
3 Monatsnettokaltmiete zzgl. MwSt., also 3,57 Monatsnettokaltmieten
Kaution
keine Angabe
Weitere Preisinformationen
46 Stellplätze

Lage

address-icon
Markdorf (88677)
Der Anbieter hat die genaue Adresse nicht freigegeben
Das hier angebotene Objekt befindet sich im Industriegebiet der Stadt Markdorf ca. 1,5 Kilometer vom Ortskern sowie dem
Bahnhof entfernt. Hier befinden sich neben Handwerksbetrieben eine Vielzahl von kleinen und großen mittelständische
Unternehmen. Die Infrastruktur vor Ort bietet sämtliche für den Tagesbedarf benötigten Geschäfte. Durch die Bundesstraße 31 und 33 sind die Kreisstädte Friedrichshafen und Ravensburg ca. 20 bis 25 Autominuten entfernt.

Die Autobahnen A96 in Lindau sowie A81 in Stockach sind jeweils ca. 40 Kilometer entfernt. Der nächste Flughafen ist Friedrichshafen (ca. 15 Kilometer)

Weitere Informationen

Stichworte Wohnfläche: 1.212,00 m², Gesamtfläche: 1.212,00 m², Grundstücksfläche: 4.629,00 m², Bundesland: Baden-Württemberg

Weitere Services

Lust auf eine Besichtigung?
Eine Frage zur Immobilie?
Mit einer persönlichen Nachricht hast du bessere Chancen auf eine Antwort.
Mit der Nutzung der oben angegebenen Telefonnummer oder durch Klicken auf „Kontaktieren“ akzeptierst Du die Allgemeinen Nutzungsbedingungen, denen Du jederzeit widersprechen kannst. Weitere Informationen zum Datenschutz

Über den Anbieter

Konzilstraße 3, 78462 Konstanz
partner badge
10 Jahre Partnerschaft
Herr Richard JenneweinDein Kontakt
Online-ID: 256G3SNSX8V2
Referenznummer: UE-ZV257
Wie zufrieden bist du mit dieser Seite (nicht mit der Immobilie selbst)?