

Gehmacher Walter Immobilien Service
Herr Konrad Glock
+49 ···
Nr. anzeigenPreise & Kosten
in Warmmiete enthalten
Kaution
6.300,00
Provision für Mieter
provisionsfrei
Warum sehe ich diese Anzeige? – Du siehst diese Anzeige basierend auf Ihrer Navigation auf unserer Website und den Suchkriterien, die du verwendet hast.
Lage
Top Innenstadtlage zwischen Hauptbahnhof und Königsplatz. Die nördliche, hochwertigere Seite der Bahnhofstraße ist eine der meist frequentierten Geschäftsstraßen Augsburgs. Verkehrsberuhigte Zone und direkte Achse zwischen Fußgängerzone und Hauptbahnhof.
Büro-/Praxisfläche
Geschoss
3. Geschoss
Details
Objektbeschreibung
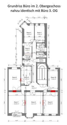
Repräsentative Büro, Praxis oder Kanzleiräume in direkter Inenstadtlage 3. Obergeschoss mit Lift. Impossantes Denkmalgeschütztes Gebäude mit hohen Räumen, großen Fenstern, hohen Türen und dem Flair eines Altbaus - ca. 218,81 m² Nutzfläche mit 8 Räumen, großer Küche mit EBK, einem kleinen 9 Raum für Registratur + Server oder...
Weitere Informationen
Baujahr
1900
Garage/Stellplatz
Öffentliche Parkgarage in der Schaezlerstraße, Halderstraße oder beim Bahnhof
Nutzungsart
Büro - Praxis - Kanzlei
Sonstiges
Ein Glasfaseranschluß ist im Keller vorhanden !
Öffentliche Parkgarage in der Schaezlerstraße (mit direktem Zugang vom Gebäude)...
Anbieter der Immobilie

Online-ID: 2l78y5g
Referenznummer: M 1515 - Büro / 3.OG
Finde Angebote wie dieses
Hier geht es zu unserem Impressum, den Allgemeinen Geschäftsbedingungen, den Hinweisen zum Datenschutz und nutzungsbasierter Online-Werbung.