Repräsentativer, eleganter Laden im Ortszentrum von Bruckmühl - auch als Praxis oder Büro möglich!
Die Räumlichkeit wurde viele Jahre als hochwertiger Friseur-Laden im Zentrum von Bruckmühl inhabergeführt. Die Räumlichkeit wurde von einer Konzeptfirma dem Gewerbe angepasst und steht in der Zukunft architektonisch zurück gebaut für den nächsten Mieter auch als Büro oder Praxis zur Verfügung - die Gewerbefläche kann auf Ihren Bedarf umgestaltet werden.
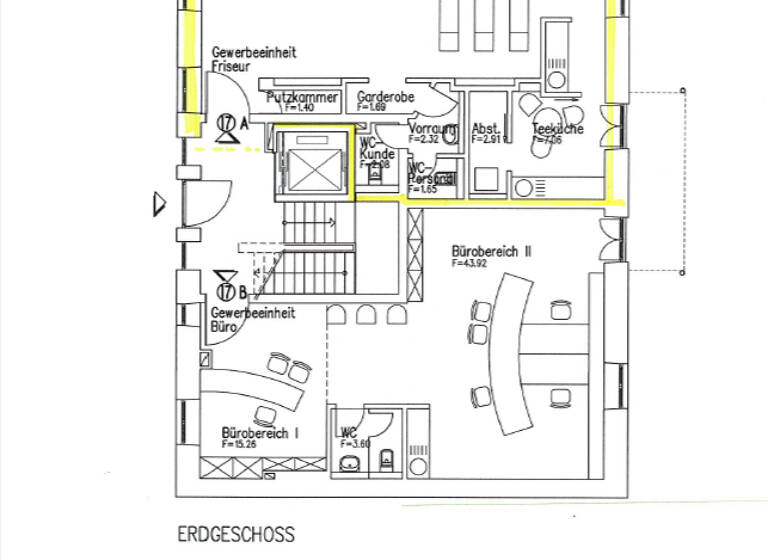
Der Großraum ist durch große, klassische Fenster und hohe Räume von Tageslicht durchflutet. Die Räumlichkeit ist in der Aufteilung sowie Gestaltung gut durchdacht und bietet neben einem Empfang mit Wartebereich, Teeküche mit Aufenthaltsqualität, kleiner Wäscheraum, zwei Toiletten.
Neben zwei Außenstellplätzen (á 40 €/monatlich) direkt vor dem Haus kann ein TG-Stellplatz für 80 €/monatlich sowie ein Kellerraum mit ca. 8 m² für 40 €/monatlich angemietet werden.
Merkmale
Bezug: ab 01.01.2026
2 Stellplätze: 2 Außen-Stellplätze
Bodenbelag: Parkett
Der Gewerberaum ist derzeit mit hygienischem Linoleum als Bodenbelag ausgestattet. Eine Fußbodenheizung sorgt für behagliche Wärme. An einer Wandbreite befinden sich attraktive Regalflächen - die Beleuchtung ist sehr gut ausgelegt.
Die KAT7 und eine 100-Leitung ermöglichen flottes Arbeiten.
Bei Bedarf sind viele WasseranschlĂĽsse vorhanden.
Ein Fahnenmast sowie Werbemöglichkeiten auf einem Pylon stehen als Werbefläche kostenlos zur Verfügung.
Grundrisse
Grundrisse
1 / 1
Realisiere Dein Projekt
Bausubstanz und Energie
Energieausweis
Endenergieverbrauch (Wärme)
Endenergieverbrauch (Strom)
Baujahr2007
Zustand der ImmobilieGepflegt
Mietkosten
Nettomiete
1.130 €
Nebenkosten
290 €
Zusätzliche Kosten
Miete pro Stellplatz
40 €
Provision fĂĽr Mieter
Bitte beachte, das Angebot kann bei Vertragsabschluss die Zahlung einer Provision beinhalten. Weitere Informationen erhältst Du vom Anbieter.
Der Anbieter hat die genaue Adresse nicht freigegeben
BruckmĂĽhl ist mit etwa 16.500 Einwohnern im Mangfalltal direkt vor dem Alpenpanorama gelegen. Die Marktgemeinde BruckmĂĽhl befindet sich im westlichen Landkreis Rosenheim. Die Stadt Rosenheim ist etwa 20 km entfernt.
Der Bahnhof (Linie Holzkirchen - Rosenheim - Salzburg- Innsbruck) ist in Reichweite; die S-Bahnstation ist in Kreuzstraße. Es fährt von Bruckmühl direkt an insgesamt vier Bahnstationen der Meridian-Zug 2x stündlich nach Rosenheim sowie München Hauptbahnhof.
Mit dem Auto erreichen Sie BruckmĂĽhl ĂĽbrigens am schnellsten ĂĽber die Autobahnanschlussstelle Irschenberg - von hier sind es ca. 20 Fahrminuten bis MĂĽnchen-Kreuz-SĂĽd.
Bruckmühl bietet fußläufig viele Einkaufsmöglichkeiten, etwa REWE, EDEKA, NETTO, LIDL, ALDI sowie DM und Rossmann. Das Einzelhandelszentrum "Mangfall-Center" liegt in sehr kurzer Reichweite.
Ein Freibad, Kindergarten, Grund-, Haupt- und Realschule, und ein Gymnasium in Sichtweite machen die Marktgemeinde für Familien äußerst attraktiv.