INSEL PAG, POVLJANA GELEGENHEIT! Neubauwohnung direkt am Meer!
ATTRAKTIVES NEUBAUGEBÄUDE 300 m vom Meer entfernt, Povljana (Insel Pag) Eine moderne Wohnung mit der Bezeichnung Wohnung 10 steht zum Verkauf. Sie befindet sich im 1. Obergeschoss eines exklusiven Neubaus in ruhiger und sonniger Lage in Povljana. Diese Immobilie vereint Funktionalität und mediterranes Lebensgefühl perfekt.
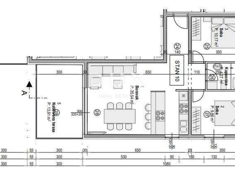
Grundausstattung: Wohnfläche: 60,24 m (maximale Grundrissnutzung) Terrasse: Großzügige, überdachte Terrasse (13,91 m) ideal für laue Sommerabende Parkplatz: Privater Parkplatz (12,15 m) im Preis inbegriffen Lage: Ruhige Straße, nur 300 m vom kristallklaren Meer entfernt
Raumaufteilung: Die Wohnung ist modern und hell gestaltet: Offener Wohn-/Essbereich mit Küche (35,94 m) Komfortables Schlafzimmer (10,17 + 9,86 m) Badezimmer (4,26 m)
Warum Povljana und die Insel Pag?
Povljana liegt im Süden der Insel Pag und ist ein wahres Juwel für alle, die Ruhe, klares Meer und unberührte Natur suchen. Der Ort bietet alle Annehmlichkeiten für Leben und Urlaub von exzellenten Restaurants und Geschäften bis hin zu gepflegten Promenaden. Hervorragende Anbindung:
Straßenanbindung: Die Brücke von Pag ermöglicht eine schnelle Anreise mit dem Auto zu jeder Jahreszeit. Fluganbindung: Der Flughafen Zadar ist nur eine Autostunde entfernt. Schiffsverbindungen: Fährverbindung ZigljenPrizna und Schnellbootverbindungen nach Rijeka, Rab und Losinj. Investitionspotenzial: Aufgrund ihrer Lage und Bauqualität bietet diese Wohnung eine hervorragende Gelegenheit für eine renditestarke Ferienvermietung oder als private Oase für einen Familienurlaub.
Sehr geehrte Kunden, die Vermittlungsprovision wird gemäß den Allgemeinen Geschäftsbedingungen berechnet.