


1 / 12



1 / 12
Restaurant zum Kauf485000 €485.000 €
485000 €485.000 €
Etablierter Gastronomiebetrieb nahe dem Millstätter See - voll ausgestattet.
Zum Verkauf gelangt ein gastronomischer Betrieb in zentraler Lage einer wirtschaftlich und touristisch geprägten Gemeinde im Raum Millstätter See. Das Lokal befindet sich im Untergeschoss eines Wohn- und Geschäftshauses und verfügt über eine Gesamtnutzfläche von rund 234 m². Besonders hervorzuheben sind die vollständige, funktionstüchtige Ausstattung, die bestehende Betriebsgenehmigung sowie die klare Kostenstruktur.
_DIE VORTEILE DIESES BETRIEBES AUF EINEN BLICK:_
*
Zentrale Lage mit hoher Frequenz und etablierter Gastronomieumgebung
*
Untergeschoss-Lokal in massiv errichtetem Wohn- und Geschäftshaus
*
Gesamtnutzfläche Lokal: ca. 234 m²
*
Mehrere Gasträume inkl. Spiel- bzw. Zusatzraum
*
Getrennte Damen- und Herren-WC-Anlagen
*
Umfangreiche Lager-, Kühl- und Vorbereitungsflächen
*
Mechanische Be- und Entlüftung sowie Abluftanlage vorhanden
*
Voll ausgestattete, betriebsbereite Küche
*
Genehmigter Gastronomiebetrieb (Pub / Bar-Betrieb)
*
Betriebskosten transparent und nachvollziehbar
DAS LOKAL
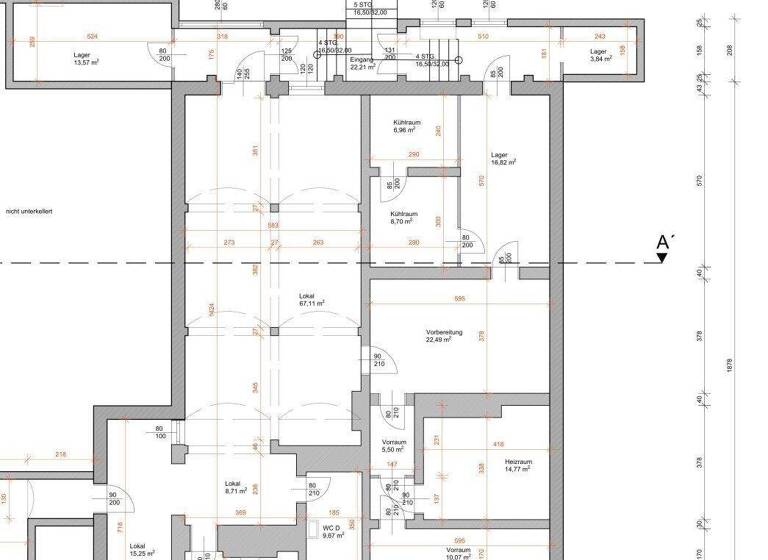
Der gastronomische Betrieb befindet sich im Kellergeschoss des Gebäudes und ist über einen eigenen Zugang erreichbar. Die Nutzfläche von rund 234 m² verteilt sich auf mehrere Gasträume, einen Spiel- bzw. Zusatzraum, Lagerflächen, Kühlräume, Vorbereitungsbereiche sowie Sanitäranlagen.
Die Raumstruktur ermöglicht eine flexible Nutzung als Pub-, Bar- oder Gastronomiebetrieb. Ergänzt wird das Raumangebot durch zugeordnete Lagerflächen innerhalb des Kellergeschosses.
ZUSTAND UND AUSSTATTUNG
Das Gebäude wurde 1996 errichtet und befindet sich insgesamt in einem gepflegten, dem Alter entsprechenden Zustand. Der Gastronomiebereich ist funktional ausgestattet und für den laufenden Betrieb vorbereitet.
Die gesamte Einrichtung und Küchenausstattung wird mit verkauft, eine genaue Inventarliste wird bei Interesse zur Verfügung gestellt.
Die Beheizung erfolgt über Fernwärme, die Wärmeabgabe über Radiatoren. Die Warmwasseraufbereitung erfolgt elektrisch.
DIE LIEGENSCHAFT UND KOSTEN
Das Lokal ist Teil eines voll erschlossenen Wohn- und Geschäftshauses in massiver Bauweise. Die Gebäudeaufschließung umfasst Strom, Wasser, Kanal sowie Telefonanschluss. Für den Gastronomiebetrieb liegt eine entsprechende behördliche Genehmigung vor.
Monatliche Kostenübersicht:
*
Betriebskosten: ca. 190 €
*
Heizkosten: ca. 140 €
*
Reparaturrücklage: 66 €
*
Laufende Kreditverpflichtung: 158 €
Zur Beantwortung weiterer Fragen sowie für Besichtigungstermine stehe ich Ihnen gerne täglich - auch am Wochenende - von 08:00 bis 22:00 Uhr zur Verfügung.
Ich freue mich über Ihre Kontaktaufnahme,
Sabine Trampitsch
+43 664 120 28 18 [tel:+436641202818]
s.trampitsch@aktivit.org
Der Vermittler ist als Doppelmakler tätig.
Erteilen Sie uns ihren Suchauftrag und profitieren Sie von vielen Vorteilen und exklusiven Angeboten!
Ganz einfach und kostenlos unter: Jetzt Suchauftrag eingeben. [https://www.immofindsyou.at/partner-formular/partnerid-1]
Infrastruktur / Entfernungen
Gesundheit
Arzt <500m
Apotheke <500m
Krankenhaus <3.000m
Kinder & Schulen
Schule <500m
Kindergarten <500m
Höhere Schule <3.000m
Nahversorgung
Supermarkt <500m
Bäckerei <500m
Einkaufszentrum <3.000m
Sonstige
Bank <500m
Geldautomat <500m
Post <500m
Polizei <500m
Verkehr
Bus <500m
Autobahnanschluss <1.500m
Bahnhof <3.500m
Flughafen <4.000m
Angaben Entfernung Luftlinie / Quelle: OpenStreetMap
_DIE VORTEILE DIESES BETRIEBES AUF EINEN BLICK:_
*
Zentrale Lage mit hoher Frequenz und etablierter Gastronomieumgebung
*
Untergeschoss-Lokal in massiv errichtetem Wohn- und Geschäftshaus
*
Gesamtnutzfläche Lokal: ca. 234 m²
*
Mehrere Gasträume inkl. Spiel- bzw. Zusatzraum
*
Getrennte Damen- und Herren-WC-Anlagen
*
Umfangreiche Lager-, Kühl- und Vorbereitungsflächen
*
Mechanische Be- und Entlüftung sowie Abluftanlage vorhanden
*
Voll ausgestattete, betriebsbereite Küche
*
Genehmigter Gastronomiebetrieb (Pub / Bar-Betrieb)
*
Betriebskosten transparent und nachvollziehbar
DAS LOKAL
Der gastronomische Betrieb befindet sich im Kellergeschoss des Gebäudes und ist über einen eigenen Zugang erreichbar. Die Nutzfläche von rund 234 m² verteilt sich auf mehrere Gasträume, einen Spiel- bzw. Zusatzraum, Lagerflächen, Kühlräume, Vorbereitungsbereiche sowie Sanitäranlagen.
Die Raumstruktur ermöglicht eine flexible Nutzung als Pub-, Bar- oder Gastronomiebetrieb. Ergänzt wird das Raumangebot durch zugeordnete Lagerflächen innerhalb des Kellergeschosses.
ZUSTAND UND AUSSTATTUNG
Das Gebäude wurde 1996 errichtet und befindet sich insgesamt in einem gepflegten, dem Alter entsprechenden Zustand. Der Gastronomiebereich ist funktional ausgestattet und für den laufenden Betrieb vorbereitet.
Die gesamte Einrichtung und Küchenausstattung wird mit verkauft, eine genaue Inventarliste wird bei Interesse zur Verfügung gestellt.
Die Beheizung erfolgt über Fernwärme, die Wärmeabgabe über Radiatoren. Die Warmwasseraufbereitung erfolgt elektrisch.
DIE LIEGENSCHAFT UND KOSTEN
Das Lokal ist Teil eines voll erschlossenen Wohn- und Geschäftshauses in massiver Bauweise. Die Gebäudeaufschließung umfasst Strom, Wasser, Kanal sowie Telefonanschluss. Für den Gastronomiebetrieb liegt eine entsprechende behördliche Genehmigung vor.
Monatliche Kostenübersicht:
*
Betriebskosten: ca. 190 €
*
Heizkosten: ca. 140 €
*
Reparaturrücklage: 66 €
*
Laufende Kreditverpflichtung: 158 €
Zur Beantwortung weiterer Fragen sowie für Besichtigungstermine stehe ich Ihnen gerne täglich - auch am Wochenende - von 08:00 bis 22:00 Uhr zur Verfügung.
Ich freue mich über Ihre Kontaktaufnahme,
Sabine Trampitsch
+43 664 120 28 18 [tel:+436641202818]
s.trampitsch@aktivit.org
Der Vermittler ist als Doppelmakler tätig.
Erteilen Sie uns ihren Suchauftrag und profitieren Sie von vielen Vorteilen und exklusiven Angeboten!
Ganz einfach und kostenlos unter: Jetzt Suchauftrag eingeben. [https://www.immofindsyou.at/partner-formular/partnerid-1]
Infrastruktur / Entfernungen
Gesundheit
Arzt <500m
Apotheke <500m
Krankenhaus <3.000m
Kinder & Schulen
Schule <500m
Kindergarten <500m
Höhere Schule <3.000m
Nahversorgung
Supermarkt <500m
Bäckerei <500m
Einkaufszentrum <3.000m
Sonstige
Bank <500m
Geldautomat <500m
Post <500m
Polizei <500m
Verkehr
Bus <500m
Autobahnanschluss <1.500m
Bahnhof <3.500m
Flughafen <4.000m
Angaben Entfernung Luftlinie / Quelle: OpenStreetMap
Merkmale
- frei ab sofort
- 1 Geschoss
- Einbauküche
- möbliert
- Bodenbelag: Fliesen, Holzdielen, Stein
- voll erschlossen
Grundrisse
Grundrisse
1 / 1
Realisiere Dein Projekt
Bausubstanz und Energie
Heizwärmebedarf (HWB)
C
Gesamtenergieeffizienz (fGEE)
D
- Baujahr1996
- Zustand der ImmobilieNeubau, Massivhaus, Gepflegt
- HeizungsartZentralheizung
- EnergieträgerFernwärme
Preisdetails
Kaufpreis
485000 €485.000 €
Provision für Käufer
3% des Kaufpreises zzgl. 20% USt.
Lage

Seeboden am Millstätter See (9871)
Der Standort befindet sich in zentraler Lage von Seeboden am Millstätter See, einer wirtschaftlich stabilen Gemeinde mit ausgeprägter Dienstleistungs- und Tourismusstruktur. Die Kombination aus hoher Besucherfrequenz, starker Gastronomiedichte und regionaler Anziehungskraft bietet sehr gute Voraussetzungen für einen erfolgreichen Gastronomiebetrieb.
WIRTSCHAFTLICHES UMFELD UND KUNDENPOTENZIAL
Seeboden weist eine sehr hohe Beschäftigungsquote von rund 95 % bei gleichzeitig moderater Arbeitslosenquote von etwa 4,6 % auf. Dies deutet auf eine solide Kaufkraft und eine wirtschaftlich aktive Bevölkerung hin. Besonders relevant für die Gastronomie ist der hohe Anteil an Erwerbstätigen im Dienstleistungssektor (rund 89 %), was auf konsumorientierte Strukturen und eine entsprechende Ausgeh- und Gastronomiekultur schließen lässt.
Mit rund 6.600 Einwohnern ist Seeboden zwar überschaubar, fungiert jedoch gemeinsam mit der nahegelegenen Bezirksstadt Spittal an der Drau als regionales Zentrum. Die hohe Auspendlerquote (über 68 %) spricht für ein starkes Tagesrand- und Abendpotenzial, insbesondere für After-Work-, Abend- und Wochenendgastronomie.
Zusätzlich profitiert der Standort von der touristischen Bedeutung des Millstätter Sees. Saisonale Besucher, Tagesgäste sowie Urlauber sorgen - insbesondere in den Sommermonaten - für eine deutlich erhöhte Frequenz und erweitern das Einzugsgebiet weit über die Wohnbevölkerung hinaus.
GASTRONOMISCHES UMFELD UND MARKTPOSITIONIERUNG
Das unmittelbare Umfeld ist geprägt von zahlreichen Gastronomiebetrieben, Cafés und Bars, was auf eine etablierte Ausgehzone mit entsprechender Kundenfrequenz hinweist. Diese Konzentration wirkt einerseits wettbewerbsintensiv, bietet andererseits jedoch den Vorteil eines bewährten Gastronomiestandorts, der von Gästen gezielt angesteuert wird.
Durch die zentrale Lage im Ortsgebiet ist eine sehr gute Sichtbarkeit und spontane Laufkundschaft gegeben. Besonders Konzepte mit klarer Positionierung (z. B. Szenegastronomie, regionale Küche, Bar- oder Cafébetrieb mit Alleinstellungsmerkmal) können hier von der bestehenden Frequenz profitieren.
VERKEHR, ERREICHBARKEIT UND FREQUENZ
Die Gemeinde ist verkehrstechnisch gut an die umliegenden Orte sowie an Spittal an der Drau angebunden. Innerhalb von Seeboden sind viele Wege kurz, was die fußläufige Erreichbarkeit des Lokals für Gäste und Mitarbeiter begünstigt. Der hohe Anteil an Personen mit kurzen Arbeitswegen (über 60 % unter 15 Minuten) unterstützt zusätzlich das Potenzial für regelmäßige Stammkundschaft.
WIRTSCHAFTLICHES UMFELD UND KUNDENPOTENZIAL
Seeboden weist eine sehr hohe Beschäftigungsquote von rund 95 % bei gleichzeitig moderater Arbeitslosenquote von etwa 4,6 % auf. Dies deutet auf eine solide Kaufkraft und eine wirtschaftlich aktive Bevölkerung hin. Besonders relevant für die Gastronomie ist der hohe Anteil an Erwerbstätigen im Dienstleistungssektor (rund 89 %), was auf konsumorientierte Strukturen und eine entsprechende Ausgeh- und Gastronomiekultur schließen lässt.
Mit rund 6.600 Einwohnern ist Seeboden zwar überschaubar, fungiert jedoch gemeinsam mit der nahegelegenen Bezirksstadt Spittal an der Drau als regionales Zentrum. Die hohe Auspendlerquote (über 68 %) spricht für ein starkes Tagesrand- und Abendpotenzial, insbesondere für After-Work-, Abend- und Wochenendgastronomie.
Zusätzlich profitiert der Standort von der touristischen Bedeutung des Millstätter Sees. Saisonale Besucher, Tagesgäste sowie Urlauber sorgen - insbesondere in den Sommermonaten - für eine deutlich erhöhte Frequenz und erweitern das Einzugsgebiet weit über die Wohnbevölkerung hinaus.
GASTRONOMISCHES UMFELD UND MARKTPOSITIONIERUNG
Das unmittelbare Umfeld ist geprägt von zahlreichen Gastronomiebetrieben, Cafés und Bars, was auf eine etablierte Ausgehzone mit entsprechender Kundenfrequenz hinweist. Diese Konzentration wirkt einerseits wettbewerbsintensiv, bietet andererseits jedoch den Vorteil eines bewährten Gastronomiestandorts, der von Gästen gezielt angesteuert wird.
Durch die zentrale Lage im Ortsgebiet ist eine sehr gute Sichtbarkeit und spontane Laufkundschaft gegeben. Besonders Konzepte mit klarer Positionierung (z. B. Szenegastronomie, regionale Küche, Bar- oder Cafébetrieb mit Alleinstellungsmerkmal) können hier von der bestehenden Frequenz profitieren.
VERKEHR, ERREICHBARKEIT UND FREQUENZ
Die Gemeinde ist verkehrstechnisch gut an die umliegenden Orte sowie an Spittal an der Drau angebunden. Innerhalb von Seeboden sind viele Wege kurz, was die fußläufige Erreichbarkeit des Lokals für Gäste und Mitarbeiter begünstigt. Der hohe Anteil an Personen mit kurzen Arbeitswegen (über 60 % unter 15 Minuten) unterstützt zusätzlich das Potenzial für regelmäßige Stammkundschaft.
Weitere Informationen
Sonstiges
ALLGEMEINER HINWEIS ZU IMMOBILIEN-ANGEBOTEN.
Die "Future in Living - Immobilien GmbH" stellt die Informationen über die präsentierten Immobilien mit größtmöglicher Sorgfalt zusammen und aktualisiert die Inhalte laufend. Eine Haftung oder Garantie für die Aktualität, die Richtigkeit und die Vollständigkeit der zur Verfügung gestellten Informationen kann jedoch nicht übernommen werden.
Wir benötigen folgende Daten für die Beantwortung ihrer Objektanfrage: Ihren Namen, ihre Telefonnummer sowie ihre E-Mail-Adresse. Wir verweisen ausdrücklich auf unsere Allgemeinen Geschäftsbedingungen und unsere Kundeninformationen unter: www.AKTIVIT.org/impressum. Durch weitere Inanspruchnahme unserer Leistungen erklären Sie deren Kenntnisnahme und Ihr ausdrückliches Einverständnis.
Bei etwaigen Fragen oder Unklarheiten, ersuchen wir um Kontaktaufnahme per E-Mail, telefonisch oder postalisch. Bei speziellen Fragestellungen, wie zu anfallenden Kaufnebenkosten, Finanzierungskosten, Förderungen, Immobilien-Ertragsteuer etc., empfehlen wir zusätzlich eine rechtsverbindliche Auskunft bei einem Steuerberater, Rechtsanwalt oder Notar vor Unterzeichnung eines Vertrags oder Angebots einzuholen.
WIR SUCHEN VERSTÄRKUNG IM TEAM.
Die Welt der Immobilien bietet laufend neue und spannende Herausforderungen. Wir arbeiten zielorientiert an innovativen Lösungen und Wegen, um unseren Kunden stets die beste Erfahrung zu bieten. Wenn auch Sie sich in der Welt der Immobilien zuhause fühlen und Interesse haben, Teil unseres Teams zu werden, freuen wir uns, Sie kennenlernen zu dürfen. Wir suchen laufend Verstärkung in gesamt Österreich und freuen uns auch über motivierte Quereinsteiger.
Mehr Infos unter: www.aktivit.org/karriere [https://www.aktivit.org/karriere] | oder via E-Mail an: karriere@AKTIVIT.org Stichworte Stellplatz vorhanden, Lagerfläche: 61,00 m², Nutzfläche: 234,00 m², Gesamtfläche: 234,00 m², Verkaufsfläche: 91,00 m², Anzahl der separaten WCs: 4, Bundesland: Kärnten, 1 Etagen
Die "Future in Living - Immobilien GmbH" stellt die Informationen über die präsentierten Immobilien mit größtmöglicher Sorgfalt zusammen und aktualisiert die Inhalte laufend. Eine Haftung oder Garantie für die Aktualität, die Richtigkeit und die Vollständigkeit der zur Verfügung gestellten Informationen kann jedoch nicht übernommen werden.
Wir benötigen folgende Daten für die Beantwortung ihrer Objektanfrage: Ihren Namen, ihre Telefonnummer sowie ihre E-Mail-Adresse. Wir verweisen ausdrücklich auf unsere Allgemeinen Geschäftsbedingungen und unsere Kundeninformationen unter: www.AKTIVIT.org/impressum. Durch weitere Inanspruchnahme unserer Leistungen erklären Sie deren Kenntnisnahme und Ihr ausdrückliches Einverständnis.
Bei etwaigen Fragen oder Unklarheiten, ersuchen wir um Kontaktaufnahme per E-Mail, telefonisch oder postalisch. Bei speziellen Fragestellungen, wie zu anfallenden Kaufnebenkosten, Finanzierungskosten, Förderungen, Immobilien-Ertragsteuer etc., empfehlen wir zusätzlich eine rechtsverbindliche Auskunft bei einem Steuerberater, Rechtsanwalt oder Notar vor Unterzeichnung eines Vertrags oder Angebots einzuholen.
WIR SUCHEN VERSTÄRKUNG IM TEAM.
Die Welt der Immobilien bietet laufend neue und spannende Herausforderungen. Wir arbeiten zielorientiert an innovativen Lösungen und Wegen, um unseren Kunden stets die beste Erfahrung zu bieten. Wenn auch Sie sich in der Welt der Immobilien zuhause fühlen und Interesse haben, Teil unseres Teams zu werden, freuen wir uns, Sie kennenlernen zu dürfen. Wir suchen laufend Verstärkung in gesamt Österreich und freuen uns auch über motivierte Quereinsteiger.
Mehr Infos unter: www.aktivit.org/karriere [https://www.aktivit.org/karriere] | oder via E-Mail an: karriere@AKTIVIT.org Stichworte Stellplatz vorhanden, Lagerfläche: 61,00 m², Nutzfläche: 234,00 m², Gesamtfläche: 234,00 m², Verkaufsfläche: 91,00 m², Anzahl der separaten WCs: 4, Bundesland: Kärnten, 1 Etagen
Weitere Services
Lust auf eine Besichtigung?
Eine Frage zur Immobilie?
Über den Anbieter
Future in Living - Immobilien GmbHMaklerbüro
Maiffredygasse 2, 8010 GRAZ
Partnerschaft
Frau Sabine TrampitschDein Kontakt
Online-ID: 26IFNQJAF3DH
Referenznummer: OBGC20260202185402482257b28b9b2

Future in Living - Immobilien GmbH
Wie zufrieden bist du mit dieser Seite (nicht mit der Immobilie selbst)?