Version: 8.25.1Navigation überspringen
Faust + Partner Immobilien oHG
475.000 €
4 Zimmer  •  160 m²  •  964 m² Grundstück

Einfamilienhaus zum Kauf
475000 €
2.969 €/m²
4 Zimmer  •  160 m²  •  964 m² Grundstück

Familiengerechtes Einfamilienhaus mit viel Platzangebot in Feldrandlage!

Dieses charmante Zuhause präsentiert sich in einem gepflegten Zustand und vereint großzügiges Wohnen mit einer attraktiven, ruhigen Lage. Mit seinen vielfältigen Rückzugsmöglichkeiten, dem weitläufigen Grundstück und der durchdachten Raumaufteilung bietet dieses Haus ideale Voraussetzungen für Familien und alle, die Wert auf Komfort und Wohnqualität legen. Das voll unterkellerte Haus verfügt über wohnlich ausgebaute Räume im Untergeschoss, die dank großer Fensterflächen von sehr gutem Lichteinfall profitieren. Einer der Räume bietet sogar Zugang zu einer Terrasse. Die Immobilie wurde 1985 in solider Bauweise errichtet. Das Haus verfügt über dreifach-verglaste Holzfenster sowie eine effiziente Ölzentralheizung aus 2012, mit Solarthermie und Feststoffkessel sowie komfortabler Fußbodenheizung im Erdgeschoss. Alle Zimmer sind großzügig geschnitten und mit Kabelanschluss ausgestattet.

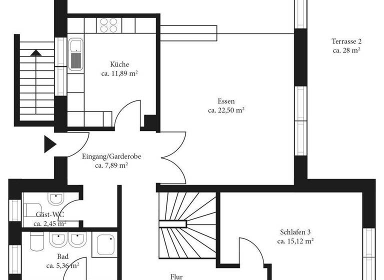
Im Erdgeschoss stehen ca. 160 m² Wohnfläche zur Verfügung. Das Herzstück ist der helle Wohn-/ Essbereich mit Kamin und zwei Zugängen auf die Terrassen. Ergänzt wird das Raumangebot durch eine moderne, hochwertige Küche aus 2017 mit Bosch-Geräten auf gehobenem Niveau (90 cm Induktionsfeld, Einbaumikrowelle, Backofen, Wärmeschublade, Kühl-/Gefrierkombination, Geschirrspüler). Drei Schlafzimmer, zwei Badezimmer, ein Gäste-WC sowie eine großzügige Diele mit Platz für eine Garderobe bieten zusätzlichen Komfort. Das rund 964 m² große, liebevoll angelegte Grundstück ist ein echtes Highlight: Drei sonnige Terrassen laden zum Entspannen, Grillen oder Sonnenbaden ein. Eine Garage sowie ein Außenstellplatz stehen für Ihre Fahrzeuge zur Verfügung. Das Grundstück befindet sich abseits der Straße und bietet somit Ruhe und Privatsphäre.

Merkmale

  • Bezug: Ab sofort möglich
  • 964 m² Grundstück
  • Einbauküche
  • Keller
  • 2 Stellplätze: Garage, Außen-Stellplatz
  • Gäste-WC
  • Garten
  • Terrasse

Grundrisse

Grundrisse
1 / 2

Realisiere Dein Projekt

Bausubstanz und Energie

Energieausweis

D
  • Baujahr1985
  • Zustand der ImmobilieGepflegt
  • HeizungsartFußbodenheizung
  • EnergieträgerÖl, Solar
MediumRectangleTop

Preisdetails

Kaufpreis
475000 €
2.968,75 €/m²
Provision für Käufer
3,57 % inkl. MwSt. vom Kaufpreis
Geschätzte Gesamtkosten
532.332 €1
Kaufpreis
475.000 €
Notarkosten (1,5%)
7.125 €
Grunderwerbsteuer (6,5%)
30.875 €
Provision für Käufer (3,57%)
16.957 €
Grundbucheintrag (0,5%)
2.375 €
1Der angezeigte Wert ist eine automatisch berechnete Schätzung von immowelt.
2Bei den Angaben handelt es sich um ortsübliche Werte. Individuelle Kosten können abweichen.

Lage

address-icon
Fahrenkrug (23795)
Der Anbieter hat die genaue Adresse nicht freigegeben
Der malerische Ort Fahrenkrug liegt zwischen der Kreisstadt Bad Segeberg und Wahlstedt und vereint ländliche Idylle mit einer hervorragenden städtischen Infrastruktur. Hier genießen Familien, Paare und Erholungssuchende eine hohe Lebensqualität, die besonders durch die unberührte Natur und die enge Gemeinschaft geprägt ist. Fahrenkrug bietet eine sehr gute Anbindung an öffentliche Verkehrsmittel und ist an den HVV angebunden. Die Regionalbahn ist in wenigen Minuten zu Fuß erreichbar und fährt in Richtung Neumünster, Bad Oldesloe sowie weiter bis zum Hamburger Hauptbahnhof. Der Ort gehört zum Kreis Segeberg und liegt verkehrsgünstig im Städtedreieck Kiel - Lübeck - Hamburg. Auch die Nähe zur Ostsee erfreut die Einwohner. Zum Timmendorfer Strand benötigen Sie nur etwa 40 Autominuten. Der nächste größere Ort, Bad Segeberg, ist in ca. 8 Autominuten erreichbar.

Fahrenkrug zeigt sich als typisches, ruhiges Dorf mit einer hohen Lebensqualität. Eine traditionsreiche Grundschule sowie ein Kindergarten und zahlreiche familienfreundliche Einrichtungen prägen das Dorfbild. Aktuell plant die Gemeinde, die Bedingungen für Radreisende zu verbessern. Dazu gehören Rastplätze mit Sitzgelegenheiten, Fahrrad-Reparaturstationen sowie Lademöglichkeiten für E-Bikes. Bauaktivitäten und Modernisierungen im Verkehrswesen verdeutlichen die klare Ausrichtung auf die Zukunft. Die perfekte Balance zwischen Erholung, einer intakten Dorfgemeinschaft und der Nähe zu den urbanen Angeboten von Bad Segeberg und Hamburg macht Fahrenkrug zu einem idealen Wohnort für Familien, Berufspendler und Naturliebhaber.

Weitere Informationen

Sonstiges Die Courtage in Höhe von 3,57 % inkl. der gesetzlichen Mehrwertsteuer auf den Kaufpreis trägt der Käufer und ist mit dem Zustandekommen des Kaufvertrages (notarieller Vertragsabschluss) verdient und fällig. Die Faust + Partner Immobilien oHG hat mit dem Verkäufer eine schriftliche Provisionsvereinbarung in gleicher Höhe geschlossen. Die Firma Faust + Partner Immobilien oHG erhält einen unmittelbaren Zahlungsanspruch gegenüber dem Käufer (Vertrag zugunsten Dritter, § 328 BGB). Alle Angaben sind ohne Gewähr und basieren ausschließlich auf Informationen, die uns von unserem Auftraggeber zur Verfügung gestellt wurden. Wir übernehmen keine Gewähr für die Vollständigkeit, Richtigkeit und Aktualität dieser Angaben. Die Grunderwerbsteuer, Notar- und Grundbuchkosten sind vom Käufer zu tragen. Im Übrigen gelten unsere Allgemeinen Geschäftsbedingungen. Irrtum und Zwischenverkauf vorbehalten. Stichworte Sonstiges: Keller als Wohnraum nutzbar

Weitere Services

Lust auf eine Besichtigung?
Eine Frage zur Immobilie?
Nachricht hinzufügen
Mit der Nutzung der oben angegebenen Telefonnummer oder durch Klicken auf „Kontaktieren“ akzeptierst Du die Allgemeinen Nutzungsbedingungen, denen Du jederzeit widersprechen kannst. Weitere Informationen zum Datenschutz

Über den Anbieter

Schwanenwik 14, 22087 Hamburg
partner badge
6 Jahre Partnerschaft
Frau Ginger Rapp
Frau Ginger RappDein Kontakt
Online-ID: 262ZZ4IBI4ER
Referenznummer: 5489
Faust + Partner Immobilien oHG
title
Faust + Partner Immobilien oHG
Bewertung: 4,9 von 5 Sternen
Nachricht hinzufügen
Mit der Nutzung der oben angegebenen Telefonnummer oder durch Klicken auf „Kontaktieren“ akzeptierst Du die Allgemeinen Nutzungsbedingungen, denen Du jederzeit widersprechen kannst. Weitere Informationen zum Datenschutz
MediumRectangleTop
MediumRectangleBottom
MediumRectangleTop
Wie zufrieden bist du mit dieser Seite (nicht mit der Immobilie selbst)?