Version: 8.24.0Navigation überspringen
197.220 €
3 Zimmer  •  52 m²  •  1. Geschoss
Immowelt logo

Wohnung zum Kauf
197220 €
3.793 €/m²
3 Zimmer  •  52 m²  •  1. Geschoss

Zagreb, Dubrava, Wohnung im Neubau 52m2, zum Verkauf

Modernes Leben im Wohnzentrum Dubrava

In einem attraktiven Teil von Unter-Dubrava, innerhalb des Wohnzentrums Dubrava und direkt in der Straßenbahnzone, befindet sich diese hochwertige Wohnung im Neubau, ideal für einen zeitgemäßen Lebensstil. Die Lage bietet außergewöhnliche Praktikabilität, da alle wichtigen Einrichtungen innerhalb von 100 Metern liegen - Grundschule, Kindergarten, Geschäfte und komplette kommunale Infrastruktur, was diese Imilie zu einer ausgezeichneten Wahl für den Alltag oder eine sichere Investition macht.

Qualitativ hochwertiger Neubau und moderne Standards

Die Wohnung befindet sich im Hochparterre einer urbanen Villa mit insgesamt zwei Wohnungen, was Ruhe, Privatsphäre und eine angenehme Wohnatmosphäre gewährleistet. Das Gebäude ist in Stahlbetonbauweise errichtet, während die Fassade aus einer Kombination von EPS und Mineralwolle besteht, was eine hohe Energieeffizienz garantiert. Eingebaut sind dreifach verglaste PVC-Fenster in Anthrazitfarbe, Sicherheitstüren, hochwertige Keramik und Parkett, Gas-Zentralheizung, Klimaanlage und Vorbereitung für eine Ladestation für Elektrofahrzeuge. Die Energieklasse des Objekts ist A+.

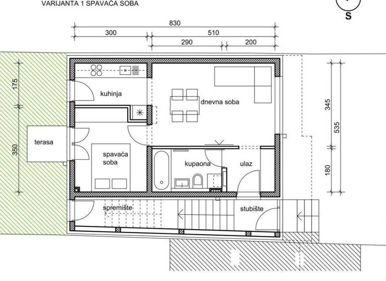
Funktionaler Grundriss mit Anpassungsmöglichkeiten

Die Wohnung mit einer Gesamtfläche von 51,90 m² ist sehr funktional gestaltet und an die Bedürfnisse des zukünftigen Eigentümers anpassbar. Sie besteht aus einem Eingangsbereich, Badezimmer, Wohnzimmer verbunden mit Küche und einem Schlafzimmer, mit der Möglichkeit, eine Variante mit zwei Schlafzimmern zu erstellen. Ein Käufer in einer früheren Bauphase hat die Möglichkeit, den Grundriss sowie Innenraumänderungen und Endmaterialien zu wählen, wodurch die Wohnung vollständig an persönliche Wünsche angepasst werden kann.

Außenbereich und zusätzliche Annehmlichkeiten

Zur Wohnung gehören ein Außenparkplatz, Terrasse, eigener Hof oder Garten sowie ein Abstellraum, was die Wohnqualität und Funktionalität zusätzlich erhöht. Die Kombination aus privatem Außenbereich und ruhiger Lage macht diese Imilie zu einer seltenen Gelegenheit auf dem Neubau-Markt in diesem Teil Zagrebs.
Diese Wohnung in Unter-Dubrava ist eine ideale Wahl für diejenigen, die eine moderne, qualitativ hochwertig gebaute Imilie an hervorragender Lage suchen, mit der Möglichkeit zur Personalisierung und hohem Wohnstandard.

Baubeginn ist im Oktober 2025, Fertigstellung ist für Ende 2026 vorgesehen.

Wenn für diese Imilie auf einer anderen Website ein niedrigerer Preis veröffentlicht wird, gilt dies auch bei uns.
Für alle zusätzlichen Fragen und Besichtigungen stehen wir Ihnen zur Verfügung.
Im Falle einer Vermittlung durch unsere Agentur besteht die Verpflichtung zur Zahlung einer Maklerprovision.
Hier geht's zum "Wohnen am MEER" - www.k3-immo.eu

Merkmale

  • 1. Geschoss
  • voll klimatisiert

Grundrisse

Grundrisse
1 / 4

Realisiere Dein Projekt

Bausubstanz und Energie

Der Anbieter hat keine Informationen zum Energieverbrauch bereit gestellt.
  • Baujahr0
Immowelt logo

Preisdetails

Kaufpreis
197220 €
3.792,69 €/m²
Provision für Käufer
Bitte beachte, das Angebot kann bei Vertragsabschluss die Zahlung einer Provision beinhalten. Weitere Informationen erhältst Du vom Anbieter.

Lage

address-icon
Donja Dubrava (0)
Der Anbieter hat die genaue Adresse nicht freigegeben

Weitere Informationen

Stichworte Distanz vom Zentrum: 0, Distanz zum Meer: 0

Weitere Services

Lust auf eine Besichtigung?
Eine Frage zur Immobilie?
Nachricht hinzufügen
Mit der Nutzung der oben angegebenen Telefonnummer oder durch Klicken auf „Kontaktieren“ akzeptierst Du die Allgemeinen Nutzungsbedingungen, denen Du jederzeit widersprechen kannst. Weitere Informationen zum Datenschutz

Über den Anbieter

Josef-Schwer-Gasse 9, 5020 Salzburg
partner badge
Partnerschaft
Herr Anel MemicDein Kontakt
Online-ID: 2ngbg56
Referenznummer: 15803
K3 Immobilien Austria GmbH
K3 Immobilien Austria GmbH
Nachricht hinzufügen
Mit der Nutzung der oben angegebenen Telefonnummer oder durch Klicken auf „Kontaktieren“ akzeptierst Du die Allgemeinen Nutzungsbedingungen, denen Du jederzeit widersprechen kannst. Weitere Informationen zum Datenschutz
Wie zufrieden bist du mit dieser Seite (nicht mit der Immobilie selbst)?