Version: 8.25.1Navigation überspringen
4.457 €
500 m² Bürofläche
Immowelt logo

Bürofläche zur Miete
4.457 €
500 m² Bürofläche

Erfolgreiches Arbeiten auf 500m² moderner Bürofläche "mitten im Dritten"

MODERNE BÜROFLÄCHE AB SOFORT ZUR VERMIETUNG
TOLLE LAGE - HELL - TOP AUSSTATTUNG
Tolle, top ausgestattete Bürofläche in sehr guter Lage in der Erdbergstraße, nahe dem Rochusmarkt im 3. Bezirk im Wohnpark Erdberg.


INFRASTRUKTUR + HIGHLIGHTS AUF EINEN BLICK
. moderne Ausstattung
. Teeküche
. Damen WC, Herren WC
. große Auswahl an Gastronomie-Einrichtungen in der nahen Umgebung
. ausgezeichnete Nahversorgung (sämtliche Geschäfte und Ämter in unmittelbarer Nähe)
. sehr gute, öffentliche Verkehrsanbindung
. U3 Rochusmarkt



KONTAKT
Robert Fried, robert.fried@hubner-immobilien.com, +43 664 88 296 010

Für Rückfragen stehe ich Ihnen selbstverständlich gerne zur Verfügung!


___
Angaben gemäß gesetzlichem Erfordernis:
Miete 4457,46 zzgl 20% USt.
Betriebskosten 1379,57 zzgl 20% USt.
Umsatzsteuer 1167,4
------------------------------------------------------------------
Gesamtbetrag 7004,43
------------------------------------------------------------------
Heizwärmebedarf:41.0 kWh/(m²a)
Klasse Heizwärmebedarf:B
Faktor Gesamtenergieeffizienz:0.96
Klasse Faktor Gesamtenergieeffizienz:B

Merkmale

  • Bezug: sofort
  • Teeküche
  • Personenaufzug
  • voll klimatisiert

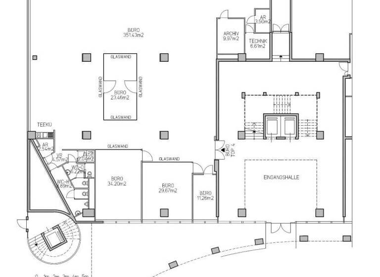
Grundrisse

Grundrisse
1 / 1

Realisiere Dein Projekt

Bausubstanz und Energie

Heizwärmebedarf (HWB)

B

Gesamtenergieeffizienz (fGEE)

B
  • Zustand der ImmobilieNeubau, Gepflegt
  • HeizungsartZentralheizung
  • EnergieträgerFernwärme
Immowelt logo

Mietkosten

Gesamtmiete
7.004,43 €
Nettokaltmiete
4.457,46 €
Betriebskosten
1.655,48 €
Provision für Mieter
Bitte beachte, das Angebot kann bei Vertragsabschluss die Zahlung einer Provision beinhalten. Weitere Informationen erhältst Du vom Anbieter.
Kaution
keine Angabe
Weitere Preisinformationen
Nettokaltmiete: 4.457,46 EUR

Lage

address-icon
Wien (1030)
Der Anbieter hat die genaue Adresse nicht freigegeben

Weitere Informationen

Stichworte Nutzfläche: 500,00 m², Anzahl der separaten WCs: 3, Bundesland: Wien

Weitere Services

Lust auf eine Besichtigung?
Eine Frage zur Immobilie?
Mit einer persönlichen Nachricht hast du bessere Chancen auf eine Antwort.
Mit der Nutzung der oben angegebenen Telefonnummer oder durch Klicken auf „Kontaktieren“ akzeptierst Du die Allgemeinen Nutzungsbedingungen, denen Du jederzeit widersprechen kannst. Weitere Informationen zum Datenschutz

Über den Anbieter

Fred-Zinnemann-Platz 4/Top 3.2, 1030 WIEN
partner badge
Partnerschaft
Herr Robert FriedDein Kontakt
Online-ID: 26MQ3AKBZYX8
Referenznummer: 3610/4629
Hubner Immobilien GmbH
Hubner Immobilien GmbH
Bewertung: 4,6 von 5 Sternen
Mit einer persönlichen Nachricht hast du bessere Chancen auf eine Antwort.
Mit der Nutzung der oben angegebenen Telefonnummer oder durch Klicken auf „Kontaktieren“ akzeptierst Du die Allgemeinen Nutzungsbedingungen, denen Du jederzeit widersprechen kannst. Weitere Informationen zum Datenschutz
Wie zufrieden bist du mit dieser Seite (nicht mit der Immobilie selbst)?