Bürofläche zur Miete • provisionsfrei8,50 €/m²3.388 m² Bürofläche • teilbar ab 322 m²
8,50 €
/m²
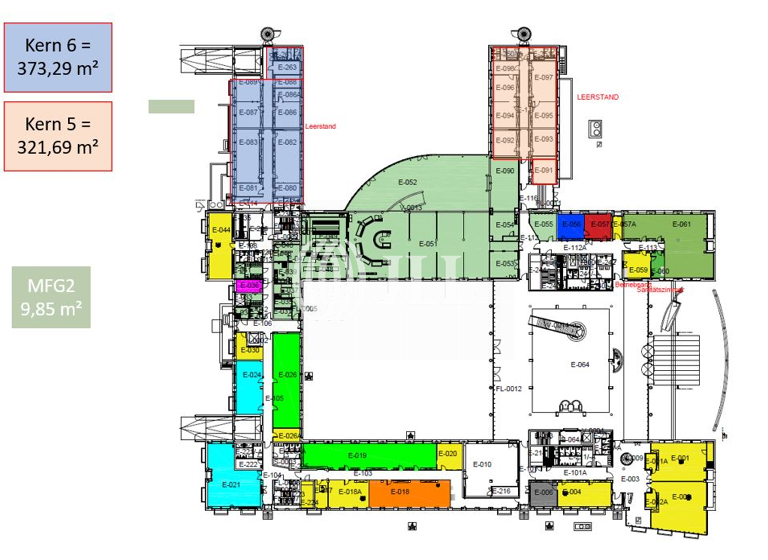
3.388 m² Bürofläche • teilbar ab 322 m²
Moderne Büroflächen in attraktiver Lage in Karlsruhe - JLL
Merkmale
- Bezug: Auf Anfrage
- Personenaufzug
- Teeküche
- 440 Stellplätze: 440 Außen-Stellplätze
- Kantine
Grundrisse
Grundrisse
1 / 8
Bausubstanz und Energie
Energieausweis
Endenergieverbrauch (Wärme)
Endenergieverbrauch (Strom)
- Baujahr1993
Mietkosten
Monatliche Miete
8,50 €/m²
Provision für Mieter
provisionsfrei; provisionsfrei für den Mieter/Käufer
Kaution
keine Angabe
Weitere Preisinformationen
440 Stellplätze
Lage

Oberreut, Karlsruhe (76189)
Der Anbieter hat die genaue Adresse nicht freigegeben
Weitere Informationen
Weitere Services
Lust auf eine Besichtigung?
Eine Frage zur Immobilie?
Über den Anbieter
Kleiner Schloßplatz 13, 70173 Stuttgart
Partnerschaft
Herr Peter GentDein Kontakt
Online-ID: 23HD4YW2E4HA
Referenznummer: 4@of84578@14@0
Wie zufrieden bist du mit dieser Seite (nicht mit der Immobilie selbst)?
