Version: 8.24.0Navigation ĂĽberspringen
475.000 €
834 m² Grundstück
Immowelt logo

GrundstĂĽck zum Kauf
475000 €
570 €/m²
834 m² Grundstück

HH-Bramfeld - Doppelhaus-Bauplatz (Baubindung) in ruhiger, rückwärtiger Lage mit schöner S/W-Ausrichtung

Merkmale

  • 834 m² GrundstĂĽck
  • voll erschlossen

Grundrisse

Grundrisse
1 / 1

Realisiere Dein Projekt

Bausubstanz und Energie

Der Anbieter hat keine Informationen zu Energieverbrauch oder Zustand der Immobilie bereit gestellt.
Immowelt logo

Preisdetails

Kaufpreis
475000 €
569,54 €/m²
Provision für Käufer
Der genannte Preis beinhaltet die Kosten für das Grundstück (WE1+2) inkl. Gemeinschaftsfläche zzgl. Courtage in Höhe von 3 % inkl. MwSt.
Geschätzte Gesamtkosten
489.250 €1
Kaufpreis
475.000 €
Provision für Käufer (3%)
14.250 €
1Der angezeigte Wert ist eine automatisch berechnete Schätzung von immowelt.
2Bei den Angaben handelt es sich um ortsübliche Werte. Individuelle Kosten können abweichen.

Lage

address-icon
Bramfeld, Hamburg (22175)
Der Anbieter hat die genaue Adresse nicht freigegeben
Hamburg-Bramfeld zählt zu den vielseitigsten und lebendigsten Stadtteilen im Nordosten Hamburgs. Charakteristisch sind die ruhigen Wohnstraßen, zahlreiche Grünbereiche wie z.B. die fußläufig erreichbare Grünanlage „Am Stühm Süd“ sowie eine sehr gute Nahversorgung. Wer urbanes Leben mit einer angenehmen, entspannten Wohnatmosphäre verbinden möchte, findet hier ideale Voraussetzungen. Das Grundstück liegt angenehm zurückgezogen und dennoch zentral – perfekt für Familien, Paare und alle, die ein gut angebundenes Wohnumfeld schätzen.

Verkehrsanbindung
Vom GrundstĂĽck aus bestehen gute Anbindungen in alle Richtungen.
Mehrere Buslinien sind in fußläufiger Entfernung erreichbar und ermög-lichen die schnelle Verbindung zu den umliegenden Stadtteilen sowie zu den nächstgelegenen S- und U-Bahn-Stationen, wie z.B. S-Bahn-Station Wellingsbülttel (S1) oder U-Bahn-Station Farmsen (U1). Die in Realisierung befindliche neue U-Bahn-Linie U5 wird Bramfeld künftig direkt an das Hamburger Schnellbahnnetz anbinden und so die Erreichbarkeit der Innenstadt weiter verbessern.

Über die Bramfelder Chaussee, den Ring 3 sowie die City-Nord ergeben sich gute Anschlussmöglichkeiten für den Autoverkehr.

Kitas und Schulen:
Für Familien bietet die Umgebung eine Vielzahl an Betreuungs- und Bildungseinrichtungen. In unmittelbarer Nähe befinden sich mehrere Kindertagesstätten unterschiedlicher Träger. Die Stadtteilschule Bramfeld sowie das Johannes-Brahms-Gymnasium sind gut erreichbar und decken die schulische Ausbildung bis zum Abitur ab. Weitere Grundschulen und weiterführende Schulen liegen in den angrenzenden Stadtteilen Steilshoop, Farmsen-Berne und Barmbek. Damit sind kurze Wege für Kinder aller Altersgruppen gewährleistet.

Einkaufsmöglichkeiten:
Bramfeld ist für seine hervorragende Nahversorgung bekannt. Entlang der Bramfelder Chaussee finden sich zahlreiche Supermärkte, Drogerien, Bäcker, Ärztehäuser und Dienstleister. Das modernisierte Bramfelder Dorfzentrum bietet weitere Geschäfte, Gastronomie und Wochenmarktangebote. Größere Shoppingmöglichkeiten befinden sich in der Nahe gelegenen Marktplatz Galerie sowie im nur wenige Minuten entfernten Alstertal-Einkaufszentrum (AEZ).

Mitten in der Natur
Die Freizeitmöglichkeiten in Bramfeld und Umgebung sind vielfältig. Der Bramfelder SV bietet ein breites sportliches Angebot für alle Altersgruppen — von Fußball und Handball über Fitnessprogramme bis zu Rehasport. Für Naturliebhaber bieten der Bramfelder See, der Osterbekkanal und mehrere Parkanlagen zahlreiche Möglichkeiten zum Spazierengehen, Joggen oder Radfahren. Verschiedene Fitnessstudios, Sporthallen und Freizeitvereine runden das Angebot ab. Ob Sport, Natur oder Erholung – alles ist schnell erreichbar.


Weitere Informationen

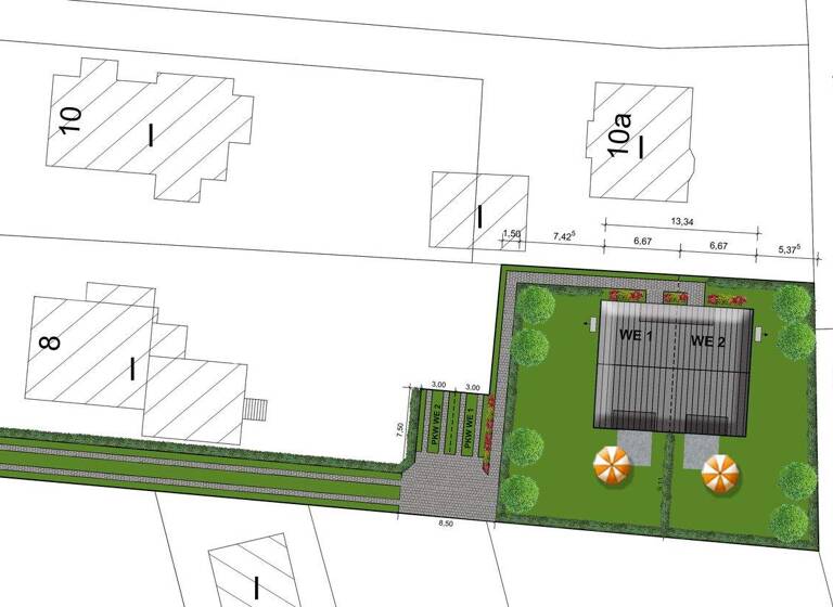
Das Grundstück Das Grundstück befindet sich in einer ruhigen Wohnstraße im beliebten Hamburger Stadtteil Bramfeld. Der Doppelhausbauplatz wird real aus dem Gesamtgrundstück abgeteilt. Durch die rückwärtige Lage (ca. 60 m) bietet sich ein besonders geschütztes Wohnambiente – fernab vom Straßenverkehr mit hoher Privatsphäre.

Die geplante Bebauung fügt sich harmonisch in die bestehende Nachbarschaft ein. Die Terrassen und Gartenflächen sind optimal nach Süden ausgerichtet, sodass Sie den ganzen Tag von einer hervorragenden Sonneneinstrahlung profitieren.

Der groĂźzĂĽgige Garten bietet viel Raum fĂĽr Erholung, Spiel und gemeinsames Familienleben im GrĂĽnen.
Bebauung FĂĽr die Bebauung des GrundstĂĽckes wurde bereits ein Bauantrag eingereicht.

Es darf ein Doppelhaus mit einer bebauten Fläche von ca. 149 m² geplant werden. Somit ergeben sich pro Doppelhaushälfte eine mögliche Wohn-/Nutzfläche von ca. 145 m² = 5 Zimmer.

Mit Anforderung des Exposes erhalten Sie selbstverständlich ausführliche Unterlagen für das vorab genannte Haus inkl. der bereits ermittelten Bauneben- und Hausanschlusskosten.

Wir weisen daraufhin, dass dieses Grundstück nur mit Baubindung veräußert wird.
Besichtigungstermine Zwecks Besichtigung des Grundstückes vereinbaren Sie einen Besichtigungstermin mit Herrn Thomas Behrens unter 040-600 99 125. Überzeugen Sie sich persönlich von der traumhaften Lage des Grundstückes.

Weitere Services

Lust auf eine Besichtigung?
Eine Frage zur Immobilie?
Nachricht hinzufĂĽgen
Mit der Nutzung der oben angegebenen Telefonnummer oder durch Klicken auf „Kontaktieren“ akzeptierst Du die Allgemeinen Nutzungsbedingungen, denen Du jederzeit widersprechen kannst. Weitere Informationen zum Datenschutz

Ăśber den Anbieter

Bergstedter Chaussee 63, 22395 Hamburg
partner badge
Partnerschaft
Herr FeddersenDein Kontakt
Online-ID: 2n5l55g
Referenznummer: 22175_Grdst_1+2
PRO-HAUS GmbH Hamburg
PRO-HAUS GmbH Hamburg
Bewertung: 4,8 von 5 Sternen
Nachricht hinzufĂĽgen
Mit der Nutzung der oben angegebenen Telefonnummer oder durch Klicken auf „Kontaktieren“ akzeptierst Du die Allgemeinen Nutzungsbedingungen, denen Du jederzeit widersprechen kannst. Weitere Informationen zum Datenschutz
Wie zufrieden bist du mit dieser Seite (nicht mit der Immobilie selbst)?