Vollständig renoviertes Duplex-Penthouse in Palma mit zwei Terrassen
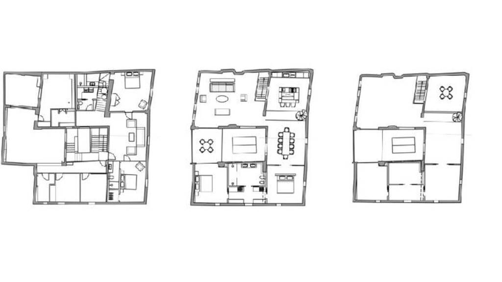
Dieses vollständig renovierte Duplex-Penthouse erstreckt sich über mehr als 300 m2 auf drei Etagen und befindet sich in der Altstadt von Palma. Die Immobilie verfügt über vier Schlafzimmer mit Einbauschränken, zwei Badezimmer en suite sowie ein Gemeinschaftsbad und zwei großzügige Terrassen.
Die erste Ebene umfasst die Eingangshalle, zwei Schlafzimmer mit eigenen Badezimmern en suite, eine Gästetoilette und einen Wirtschaftsraum. Auf der zweiten Ebene finden Sie das Wohnzimmer mit einer angrenzenden Terrasse, die Küche, das Esszimmer und zwei Schlafzimmer mit begehbaren Kleiderschränken und Badezimmern. Die dritte Ebene bietet eine Dachterrasse mit Blick über die Dächer von Palma. Das Penthouse befindet sich im dritten Stock des Gebäudes ohne Aufzug.
Die Renovierung dieses Penthouses wurde sorgfältig mit hochwertigen Materialien durchgeführt. Dabei wurden Türen und Böden wiederhergestellt und Surco-Parkett verlegt. Die Einbauschränke bieten praktischen Stauraum und die Küche verfügt über eine Arbeitsplatte aus Zement sowie moderne Geräte, darunter ein Steinwaschbecken.
Die Immobilie ist zudem mit einer Klimaanlage für warme und kalte Tage ausgestattet und bietet somit eine äußerst komfortable und zeitgemäße Wohnatmosphäre.
Im gleichen Gebäude stehen noch zwei weitere Wohnungen zur Verfügung: ein Apartment mit drei Schlafzimmern für 895.000 € (Ref 5333) sowie ein Apartment mit zwei Schlafzimmern für 599.000 € (Ref 5334). #ref:5332
Merkmale
Terrasse
voll klimatisiert
Grundrisse
Verschaffe dir einen genauen Überblick über die Raumaufteilung.
Realisiere Dein Projekt
Bausubstanz und Energie
Möchtest du Details zum Energieverbrauch?
Baujahr0
Preisdetails
Kaufpreis
2500000 €2.500.000 €
8.090,61 €/m²
Provision für Käufer
Bitte beachte, das Angebot kann bei Vertragsabschluss die Zahlung einer Provision beinhalten. Weitere Informationen erhältst Du vom Anbieter.
Lage
Palma de Mallorca (07002)
Der Anbieter hat die genaue Adresse nicht freigegeben
Weitere Informationen
Stichworte
Anzahl der Schlafzimmer: 4, Anzahl der Badezimmer: 3, Anzahl Terrassen: 1, Bundesland: Mallorca