Version: 8.22.5Navigation überspringen
14,50 €
667,8 m² Bürofläche
Immowelt logo

Bürofläche zur Miete
14,50 Euro pro Quadratmeter
667,8 m² Bürofläche

New way of work im EURO PLAZA

Das EURO PLAZA ist Wiens erster Office Park. Heute ist es das größte und erfolgreichste Projekt seiner Art. Seine vielfältige Infrastruktur, sein maßgeschneidertes Serviceangebot und nicht zuletzt seine optimale Lage schaffen ein Umfeld für Business auf höchstem Niveau.

· Ein zentrales Office Park Management betreut alle Mieter und bietet eine Vielzahl von Dienstleistungen an.
· Die Gebäudeleitzentrale steht rund um die Uhr zur Verfügung.
· Für Besucher und Gäste wurden eigene Parkmöglichkeiten mit ausreichend Stellplätzen errichtet.
· Im EURO PLAZA befinden sich zwei moderne Selbstbedienungsrestaurants sowie eine Bäckerei, ein Billa-Supermarkt, das Restaurant dean&david sowie Tuk Tuk und eine Bankfiliale.
· Das EURO PLAZA verfügt über ein eigenes Conference Center.
· Eine Druckerei / Copy Shop mit breitem Leistungsportfolio vom Kopierservice über Digital- bis hin zum Offsetdruck ergänzt das Angebot.

In den Untergeschoßen sind ausreichend Parkplätze sowie Lager- und Archivflächen vorhanden. Sonderzonen für Kundenveranstaltungen, bestimmte Technikräume, EDV-Räume, etc. sind je nach Wunsch entweder in den Untergeschoßen oder in den Erdgeschoßen der Gebäude darstellbar.

Hervorzuheben ist ebenfalls die ÖGNI Zertifizierung in Gold.
Besonderes Augenmerk gelegt wurde dabei auf Behaglichkeit und Komfort, ein Maximum an Sicherheit, gesicherte Stellplätze für Radfahrer, flexible Möblierung sowie Bepflanzung mit ausschließlich einheimischen Arten.

Verfügbare Büroflächen:
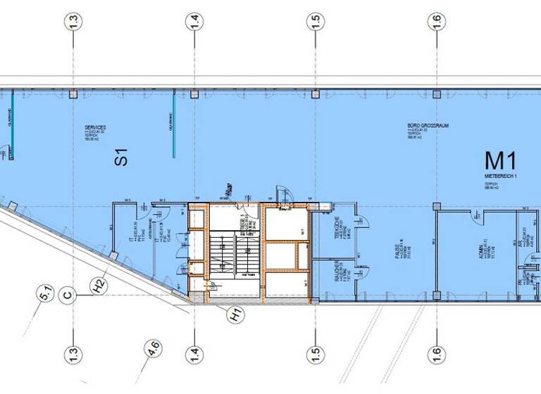
2.OG, Top M1, ca. 668 m²
4.OG, Top M3a, ca. 589 m²
4.OG, Top M8, ca. 890 m²
4.OG, Top M3a+8, ca. 1.479 m²
5.OG, Top M1, ca. 684 m²
6.OG, Top M1, ca. 684 m²
Nettomiete/m²/Monat: EUR 14,50 - EUR 15,50

Verfügbare Geschäftsfläche:
EG, ca. 156 m²
Nettomiete/m²/Monat: EUR 18,00 - EUR 20,00

Betriebskostenakonto/m²/Monat: dzt. ca. EUR 5,70 (inkl. Heizung & Kühlung)

Zusätzlich können Lagerflächen in diversen Größen zu monatlich EUR 7,00 /m² angemietet werden.
Betriebskostenakonto netto/m²/Monat Lager: dzt. ca. EUR 2,85

In der hauseigenen Parkgarage können Stellplätze um je monatlich EUR 130,00 netto angemietet werden.

Merkmale

  • Bezug: Nach Vereinbarung
  • 2. Geschoss
  • Personenaufzug
  • voll klimatisiert
- Außenliegender Sonnenschutz
- Zugluftfreie Kühlung mittels Kühlbalken
- Mechanische Be- und Entlüftung aller Räume
- 2-facher Luftwechsel Büroräumen
- 6-facher Luftwechsel Meetingräumen
- Doppelboden, abgehängte Decke
- Computergerechte Arbeitsplatzbeleuchtung
- Größtmögliche Flexibilität im Innenausbau
- Einzel-, Kombi- oder Gruppenbüros möglich
- Zutrittskontrolle, Videoüberwachung
- Garage
- Inhouse Kantine und Cafeteria

Grundrisse

Grundrisse
1 / 2

Realisiere Dein Projekt

Bausubstanz und Energie

Heizwärmebedarf (HWB)

B

Gesamtenergieeffizienz (fGEE)

Der Anbieter hat keine Daten zum Energieausweis hinterlegt.
  • Baujahr2008
  • Zustand der Immobilieneuwertig
  • EnergieträgerFernwärme
Immowelt logo

Mietkosten

Monatliche Miete
14,50 €/m²
Provision für Mieter
3 BMM zzgl. 20 % USt.
Kaution
3-6 BMM (bonitätsabhängig)

Lage

address-icon
Wien (1120)
Der Anbieter hat die genaue Adresse nicht freigegeben
Die "Erste Adresse" für einen Office Standort im Süden von Wien mit einem bereits sehr etablierten und stark expandierenden Business Zentrum.
Weitläufige Grünlage am Wienerberg, ausgezeichnete Anbindung an den öffentlichen und Individualverkehr sowie die große Auswahl von Freizeit- und Sportangebot vervollständigen diesen Standort.

Weitere Informationen

Sonstiges Lagerflächen und Tiefgaragenplätze sind im Untergeschoß vorhanden. Stichworte Nutzfläche: 667,81 m², Bundesland: Wien, Mindestmietdauer: 5 Jahre

Weitere Services

Lust auf eine Besichtigung?
Eine Frage zur Immobilie?
Nachricht hinzufügen
Mit der Nutzung der oben angegebenen Telefonnummer oder durch Klicken auf „Kontaktieren“ akzeptierst Du die Allgemeinen Nutzungsbedingungen, denen Du jederzeit widersprechen kannst. Weitere Informationen zum Datenschutz

Über den Anbieter

OTTO Immobilien
OTTO ImmobilienMaklerbüro
Riemergasse 8, 1010 WIEN
Herr Philipp Granabetter, BSc (WU) MADein Kontakt
Online-ID: 2f7e25c
Referenznummer: IVG-O-10855/2.M1
OTTO Immobilien
OTTO Immobilien
Bewertung: 4,8 von 5 Sternen
Nachricht hinzufügen
Mit der Nutzung der oben angegebenen Telefonnummer oder durch Klicken auf „Kontaktieren“ akzeptierst Du die Allgemeinen Nutzungsbedingungen, denen Du jederzeit widersprechen kannst. Weitere Informationen zum Datenschutz
Wie zufrieden bist du mit dieser Seite (nicht mit der Immobilie selbst)?